Évaluation sauvegardée !
Vous serrez le seul/la seule à le voir
Commentaire sauvegardé !
Ajoutez votre évaluation et/ou un commentaire pour cette annonce. Vous seul(e) le verrez

Appartement avec chauffage parking dans Platja Gran Palamós

Passeig del Mar

  • 104 m2
  • 3 hab.
  • 2 salles de bain
  • 5.865 €/m2

Tu refugio azul en Palamós

El lujo de escuchar las olas cada día: vivir aquí es tener el mar como escenario cotidiano.

Este exclusivo apartamento en primera línea de mar, situado en el paseo marítimo —renovado este año—, ofrece una combinación perfecta entre confort y emoción.

La vivienda cuenta con 3 dormitorios (uno de ellos en suite) y 2 baños completos, además de un lavadero independiente que aporta comodidad en el día a día. El salón comedor, con grandes ventanales, se abre a una espectacular terraza frente al mar, el lugar ideal para desayunar con el sonido de las olas de fondo o cenar disfrutando de las puestas de sol.

Además, dispone de plaza de aparcamiento, diferentes accesos a la comunidad y varios ascensores, que garantizan comodidad y practicidad en todo momento.

Este apartamento es mucho más que una vivienda: es un estilo de vida mediterráneo, donde cada detalle invita a relajarse y a disfrutar del privilegio de estar junto a la playa, con restaurantes y servicios a solo unos pasos.

Una oportunidad única para vivir o invertir en uno de los lugares más especiales de la Costa Brava.














dernière modification

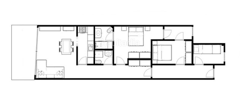
Distribution

  • 3 Chambres
  • Surface 104 m2
  • Terrasse 12 m2
  • 2 salles de bain
  • Cuisine Type Office: No

Caractéristiques Générales

  • Chauffage
  • Place parking
  • meublé
  • Sans climatisation
  • Année de construction 2004
  • Certificat énergétique :
    Consumo:
    G
    999 kW h m2 / año
    Emisiones:
    G
    999 kg CO2 m2 / año

Équipement communautaire

  • Ascenseur
Annonce: 13103004032587

Lieu

Platja Gran Passeig del Mar

Naviguez sur la carte en cliquant dessus
610.000 € Prix de l´annonce
3.642 €/m2€/m2 población
5.865 €/m2€/m2 de l´annonce
Voir évolution €/m2 dans Palamós
Nous vous prévenons lorsque nous aurons une annonce comme celle-ci ? Créez votre alerte et nous vous préviendrons par courrier électronique dès qu´il y aura de nouvelles annonces ou lorsqu´elles seront modifiées
 

Contacter CORREDOR MATÓ

Référence de l´annonce habitaclia/2650:

Vous verrez le numéro de téléphone après que vous ayez envoyé vos coordonnées à l´annonceur pour qu´il puisse vous répondre.
Le numéro de téléphone s´affichera après avoir contacté
Envoi en cours…