Visite virtuelle
Évaluation sauvegardée !
Vous serrez le seul/la seule à le voir
Commentaire sauvegardé !
Ajoutez votre évaluation et/ou un commentaire pour cette annonce. Vous seul(e) le verrez

Appartement dans antich 40 dans Santa Catalina Palma de Mallorca

  • 137 m2
  • 4 hab.
  • 2 salles de bain
  • 4.307 €/m2

SANTA CATALINA PISO AMPLIO A REFORMAR.

Venta en exclusiva – Piso de 123 m² útiles en Santa Catalina, Palma de Mallorca

Se ofrece en exclusiva este amplio piso a reformar de 123 m² situado en una de las zonas más demandadas de Palma, el barrio de Santa Catalina. Una ubicación privilegiada, cerca de todos los servicios y a tan solo cinco minutos a pie del renovado Paseo Marítimo, ideal para quienes desean disfrutar de la ciudad desde su corazón.

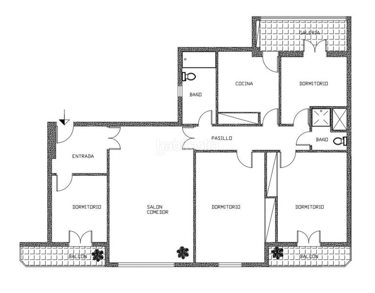
La vivienda, situada en una sexta planta con ascensor, ofrece un gran potencial de reforma gracias a la excelente distribución y amplitud del mismo. Actualmente dispone de cuatro dormitorios dobles, dos baños completos, salón-comedor, cocina independiente con amplia galería y dos balcones que aportan luminosidad y ventilación natural.

Se trata de una excelente oportunidad de inversión para crear una vivienda a medida en una de las zonas con mayor proyección de Palma, rodeada de comercios, restaurantes, transporte público y todo tipo de servicios.

Agentes Inmobiliarios Registrados en ROAIIBE GOIBE65280/2024

dernière modification

Distribution

  • 4 Chambres
  • Surface 137 m2
  • Balcon / Terrasse 8 m2
  • 2 salles de bain

Caractéristiques Générales

  • Année de construction 1965
  • À proximité des transports en commun
  • Certificat énergétique :
    Consumo:
    E
    157 kW h m2 / año
    Emisiones:
    E
    42 kg CO2 m2 / año

Équipement communautaire

  • Ascenseur
Annonce: 51869000000312

Lieu

Santa Catalina ANTICH 40

Naviguez sur la carte en cliquant dessus
590.000 € Prix de l´annonce
6.671 €/m2€/m2 distrito
4.307 €/m2€/m2 de l´annonce
35% moins cher que la moyenne*
Voir évolution €/m2 dans Palma de Mallorca (Ponent)
Nous vous prévenons lorsque nous aurons une annonce comme celle-ci ? Créez votre alerte et nous vous préviendrons par courrier électronique dès qu´il y aura de nouvelles annonces ou lorsqu´elles seront modifiées
 

Contacter Gestpropiedad Avenidas

Référence de l´annonce habitaclia/16MNGR001:

Vous verrez le numéro de téléphone après que vous ayez envoyé vos coordonnées à l´annonceur pour qu´il puisse vous répondre.
Le numéro de téléphone s´affichera après avoir contacté
Envoi en cours…