Évaluation sauvegardée !
Vous serrez le seul/la seule à le voir
Commentaire sauvegardé !
Ajoutez votre évaluation et/ou un commentaire pour cette annonce. Vous seul(e) le verrez
274.400 € Prévenez-moi si le prix baisse
a baissé 24.100 €

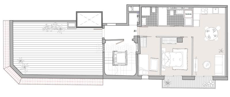
Appartement avec chauffage dans Eixample Tarragona

  • 84 m2
  • 2 hab.
  • 2 salles de bain
  • 3.267 €/m2

OBRA NUEVA EN EL CORAZÓN DE TARRAGONA

Promoción única de 14 viviendas de alto standing en un edificio histórico completamente rehabilitado, situado en la estratégica esquina de Calle López Peláez con María Cristina, en pleno corazón de Tarragona.

Una ubicación inmejorable que combina la vida urbana más cómoda con una excelente conexión a toda la ciudad.

Vivir aquí significa tener colegios, hospitales, comercios y servicios esenciales a solo unos pasos, disfrutando de la comodidad y dinamismo del centro sin renunciar a la tranquilidad de un hogar de calidad.

Cada vivienda está diseñada para estrenar y disfrutar del lujo en cada detalle, con acabados de primera categoría de la mano de Porcelanosa. Compra tu piso sobre plano y recíbelo llave en mano a finales de 2026, listo para vivir o invertir con total tranquilidad.

Características principales:

• Amplio salón-comedor con cocina abierta y salida a balcón
• 2 dormitorios (uno tipo suite)
• 2 baños completos
• Edificio con ascensor
• Certificación energética C ? hasta un 80% de ahorro energético

Un proyecto único que combina la esencia de un edificio histórico con el confort de la obra nueva y los mejores acabados del mercado.

Memoria de acabados:

• Cocina Porcelanosa
• Electrodomésticos Balay
• Armarios empotrados lacados blancos en todas las habitaciones
• Carpintería exterior Cortizo con cristales antirreflectantes
• Suelo acrílico Porcelanosa en todo el piso
• Sanitarios y griferías Porcelanosa
• Componentes eléctricos Niessen
• Aire acondicionado Panasonic
• Sistema ACS por aerotermia

Además, te ayudamos con la financiación de tu hipoteca.

dernière modification

Distribution

  • 2 Chambres
  • Surface 84 m2
  • 2 salles de bain
  • Cuisine Type Office: No

Caractéristiques Générales

  • Chauffage
  • Sans place parking
  • meublé
  • Climatisation
  • Certificat énergétique :
    Consumo:
    G
    999 kW h m2 / año
    Emisiones:
    G
    999 kg CO2 m2 / año

Équipement communautaire

  • Ascenseur
Annonce: 2827002998396

Lieu

Eixample LOPEZ PELAEZ

Naviguez sur la carte en cliquant dessus
274.400 € Prix de l´annonce
1.832 €/m2€/m2 población
3.267 €/m2€/m2 de l´annonce
Voir évolution €/m2 dans Tarragona
Nous vous prévenons lorsque nous aurons une annonce comme celle-ci ? Créez votre alerte et nous vous préviendrons par courrier électronique dès qu´il y aura de nouvelles annonces ou lorsqu´elles seront modifiées
 

Contacter MAREBENS

Référence de l´annonce habitaclia/LP-004:

Vous verrez le numéro de téléphone après que vous ayez envoyé vos coordonnées à l´annonceur pour qu´il puisse vous répondre.
Le numéro de téléphone s´affichera après avoir contacté
Envoi en cours…