Évaluation sauvegardée !
Vous serrez le seul/la seule à le voir
Commentaire sauvegardé !
Ajoutez votre évaluation et/ou un commentaire pour cette annonce. Vous seul(e) le verrez

Appartement avec chauffage dans Centre-Estació Gavà

  • 101 m2
  • 3 hab.
  • 2 salles de bain
  • 3.416 €/m2

Planta baja de obra nueva en Av. Mas Sellares 5 de Gava

Estupenda PLANTA BAJA de Obra Nueva en pleno centro de Gavá!!!

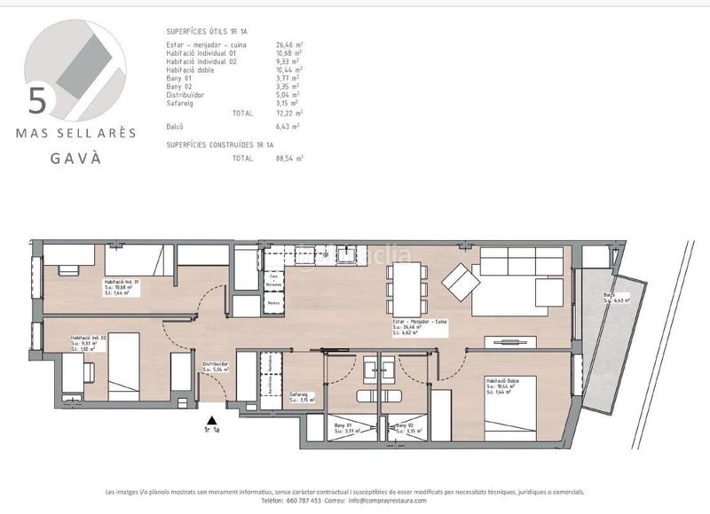
Dispone de 1 habitación doble con el baño en suite y dos individuales que comparten otro baño completo. Un patio de 14,88-m² y porche de 12,72-m².
Cocina integrada al Salón comedor de 29,14-m² y un balcón de 4,59-m².
Precio de plaza de parking y trastero a consultar.
________________________

Promoción en Av. Mas Sellarés 5, de 9 viviendas de 2 y 3 habitaciones de 2 baños, distribuidas en PB, 1ª, 2ª y 3ª Planta.
Superficies construidas entre los 73-m² a 120-m².
Precio de las viviendas de 323.500€ a 469.800€.
Edifico de alta eficiencia energética (A).

En la Planta Subterránea dispone de 12 Plazas de Aparcamiento y 9 Trasteros.
Apartamentos con balcones, Plantas Bajas y Áticos-Dúplex con Terrazas.

Cocinas equipadas con muebles bajos y altos, de gran capacidad con tiradores integrados y muebles lacados. Encimera de SILESTONE o similar de alta resistencia. Fregadero de acero inoxidable. Cocina equipada con campana extractora, placa de vitrocerámica y horno multifunción.

Baños principal y secundario equipados, inodoro compacto y plato de ducha de resina enrasado a nivel del pavimento según tipología y dimensiones de la vivienda. Baño principal con lavabo integrado, espejo. Grifería cromada monomando de bajo caudal.

La instalación térmica individual es mediante sistema de aerotermia o similar de alta eficiencia energética, para la climatización, se realiza por suelo radiante para la calefacción, y por conducto el frío.

Excelente ubicación, en pleno centro de gavá, en la Rambla principal.

Memoria de calidades y mediciones orientativa, podrían ser modificadas por necesidades de ejecución de la obra o por suministro. Imágenes y planos informativos sin caracter contractual y susceptibles de ser modificados por necesidades técnicas, jurídicas o comerciales.


dernière modification

Distribution

  • 3 Chambres
  • Surface 101 m2
  • 2 salles de bain

Caractéristiques Générales

  • Chauffage
  • Année de construction 2025
  • À proximité des transports en commun
  • Certificat énergétique :
    Consumo:
    G
    999 kW h m2 / año
    Emisiones:
    G
    999 kg CO2 m2 / año

Équipement communautaire

  • Ascenseur
Annonce: 33798000000349

Lieu

Centre-Estació Avenida Avinguda del Mas Sellarès, 5

Naviguez sur la carte en cliquant dessus
345.000 € Prix de l´annonce
3.446 €/m2€/m2 población
3.416 €/m2€/m2 de l´annonce
1% moins cher que la moyenne*
Voir évolution €/m2 dans Gavà
Nous vous prévenons lorsque nous aurons une annonce comme celle-ci ? Créez votre alerte et nous vous préviendrons par courrier électronique dès qu´il y aura de nouvelles annonces ou lorsqu´elles seront modifiées
 

Contacter INMO RIBES

Référence de l´annonce habitaclia/1827-302V:

Vous verrez le numéro de téléphone après que vous ayez envoyé vos coordonnées à l´annonceur pour qu´il puisse vous répondre.
Le numéro de téléphone s´affichera après avoir contacté
Envoi en cours…