Évaluation sauvegardée !
Vous serrez le seul/la seule à le voir
Commentaire sauvegardé !
Ajoutez votre évaluation et/ou un commentaire pour cette annonce. Vous seul(e) le verrez
362.000 € Prévenez-moi si le prix baisse
a baissé 90.539 €

Appartement avec chauffage parking piscine dans Zona Levante - Playa Fossa Calp

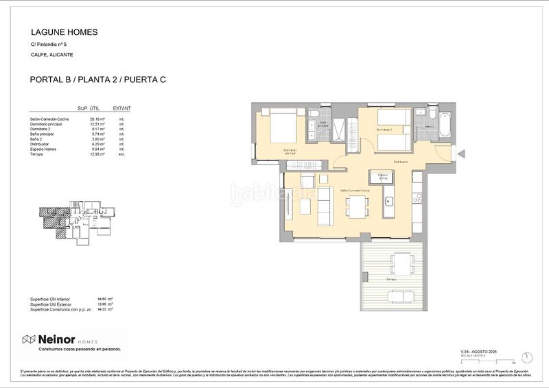
  • 84 m2
  • 2 hab.
  • 2 salles de bain
  • 4.310 €/m2

VIVIENDAS DE OBRA NUEVA EN CALPE

OBRAS INICIADAS. VIVIENDAS DE OBRA NUEVA EN CALPE- COSTA BLANCA

Lagune Homes se ubica en Calpe, junto al paraje natural de Las Salinas y a tan sólo unos minutos a pie de la conocida playa de la Fossa y a 10 de la playa del Arenal.

Con una arquitectura singular, dos edificios de 10 plantas de altura albergarán pisos de obra nueva de 2 y 3 dormitorios, en cuyas terrazas podrá deleitarse del buen clima y las vistas de Calpe.

Lagune Homes se enmarca en urbanización cerrada, dotada con elegantes y espaciosas instalaciones comunes concebidas para el relax y la práctica deportiva. Piscina de adultos con zona infantil, solárium, pista de pádel, sala gourmet y zonas verdes e infantiles, componen las modernas instalaciones del residencial.

Las viviendas cuentan con garaje y trastero incluido en el precio.

Lagune Homes reúne todo lo necesario para disfrutar de una vida puramente mediterránea, al enmarcarse en un entorno privilegiado entre mar y naturaleza, rodeado de una amplia variedad de servicios, tales como el puerto deportivo de Calpe, centros educativos, sanitarios, campos de golf..

Las zonas comunitarias disponen de piscina, piscina infantil, Sala Gourmet (Sala con cocina para la comunidad), pista de pádel, parque infantil y zona de ping-pong. Muy cerca de supermercados (Mercadona al lado a 1'), restaurantes, paradas de autobús y la playa más cercana a solo 6' a pie

dernière modification

Distribution

  • 2 Chambres
  • Surface 84 m2
  • Terrasse 11 m2
  • 2 salles de bain
  • débarras

Caractéristiques Générales

  • Chauffage
  • Place parking
  • Climatisation
  • Année de construction 2025
  • À proximité des transports en commun
  • Certificat énergétique :
    Consumo:
    G
    999 kW h m2 / año
    Emisiones:
    G
    999 kg CO2 m2 / año

Équipement communautaire

  • Ascenseur
  • Piscine Communautaire
Annonce: 8812001812906

Lieu

Zona Levante - Playa Fossa

Naviguez sur la carte en cliquant dessus
362.000 € Prix de l´annonce
4.325 €/m2€/m2 población
4.310 €/m2€/m2 de l´annonce
Combien seriez-vous disposé à payer?
Voir évolution €/m2 dans Calp
Nous vous prévenons lorsque nous aurons une annonce comme celle-ci ? Créez votre alerte et nous vous préviendrons par courrier électronique dès qu´il y aura de nouvelles annonces ou lorsqu´elles seront modifiées
 

Contacter ABARCA SERVICIOS INMOBILIARIOS S.L.

Référence de l´annonce habitaclia/ABAD05284:

Vous verrez le numéro de téléphone après que vous ayez envoyé vos coordonnées à l´annonceur pour qu´il puisse vous répondre.
Le numéro de téléphone s´affichera après avoir contacté
Envoi en cours…