Évaluation sauvegardée !
Vous serrez le seul/la seule à le voir
Commentaire sauvegardé !
Ajoutez votre évaluation et/ou un commentaire pour cette annonce. Vous seul(e) le verrez
Occasion 358.000 € Prévenez-moi si le prix baisse
a baissé 40.000 €

Appartement avec chauffage dans Egia Donostia - San Sebastián

  • 73 m2
  • 3 hab.
  • 1 salle de bain
  • 4.904 €/m2

Venta de piso en Egia.

¡¡¡¡BIENVENIDOS A INMOBILIARIA JAIZKIBEL!!!!!
Inmueble EN EXCLUSIVA. Esta propiedad se comercializa bajo el mandato de VENTA EN EXCLUSIVA otorgado a Inmobiliaria JAIZKIBEL.
*El emplazamiento:
Egia. Calle Egia
*Características del edificio:
Edificio de carácter residencial. Edificio plurifamiliar que consta de siete plantas de viviendas, del año 1922, sin barreras, ascensor a cota cero y adaptado a la normativa de accesibilidad.
Descripción de la vivienda:
Vivienda de: 73 m2 construidos; 64 m2 útiles.
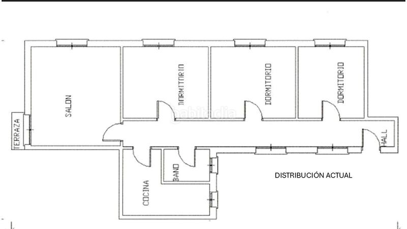
Distribuido en: la vivienda cuenta con una espaciosa sala-comedor, cocina independiente, 3 dormitorios y baño. La vivienda está orientada al Sur/Oeste.
Estado de la vivienda: la vivienda se encuentra para reformar. Ofrece un gran potencial de personalización, ya que puede quedar moderna y actual, adaptada a tus gustos y necesidades.
En el reportaje fotográfico adjuntamos plano del estado actual y plano de propuesta de distribución.
Destacar de la vivienda: La vivienda se encuentra en una excelente ubicación, al comienzo de la Calle Egia, próxima al parque de Cristina Enea y Duque de Mandas (nuevas estaciones de tren y autobús). También cuenta con muy buena orientación, la sala-comedor es muy luminosa y además ofrece un gran potencial de distribución, ya que es posible diseñar un espacio muy actual, práctico y perfectamente aireado.
Ref: J4871
Si desea más información, no dude en ponerse en contacto con nosotros, le atenderemos gustosamente, y le informaremos detalladamente, ya que queremos que tenga una magnifica experiencia con inmobiliaria JAIZKIBEL, darle seguridad y tranquilidad porque somos API (Agentes de la Propiedad Inmobiliaria) y somos CRS. Los Agentes CRS se adhieren a los estándares más exigentes de CALIDAD y HONESTIDAD, suponen una garantía y distinguen a los mejores profesionales del sector Inmobiliario, son aquellos agentes que cuentan con la experiencia necesaria y la formación acreditada para prestar a sus clientes un servicio completo, humano, ético y de calidad.

dernière modification

Distribution

  • 3 Chambres
  • Surface 73 m2
  • 1 salle de bain

Caractéristiques Générales

  • Chauffage
  • Certificat énergétique :
    Consumo:
    F
    310 kW h m2 / año
    Emisiones:
    E
    60 kg CO2 m2 / año

Équipement communautaire

  • Ascenseur
Annonce: 30707000000196

Lieu

Egia

Naviguez sur la carte en cliquant dessus
358.000 € Prix de l´annonce
5.154 €/m2€/m2 distrito
4.904 €/m2€/m2 de l´annonce
5% moins cher que la moyenne*
Voir évolution €/m2 dans Donostia - San Sebastián (Egia)
Nous vous prévenons lorsque nous aurons une annonce comme celle-ci ? Créez votre alerte et nous vous préviendrons par courrier électronique dès qu´il y aura de nouvelles annonces ou lorsqu´elles seront modifiées
 

Contacter JAIZKIBEL INMOBILIARIA

Référence de l´annonce habitaclia/J4872:

Vous verrez le numéro de téléphone après que vous ayez envoyé vos coordonnées à l´annonceur pour qu´il puisse vous répondre.
Le numéro de téléphone s´affichera après avoir contacté
Envoi en cours…