Évaluation sauvegardée !
Vous serrez le seul/la seule à le voir
Commentaire sauvegardé !
Ajoutez votre évaluation et/ou un commentaire pour cette annonce. Vous seul(e) le verrez
140.000 € Prévenez-moi si le prix baisse
a baissé 5.000 €

Appartement dans Centro Ferrol

  • 84 m2
  • 4 hab.
  • 1 salle de bain
  • 1.667 €/m2

Descubre esta magnífica propiedad ubicada en el emblemático barrio de la Magdalena, en pleno centro de Ferrol. Situada en un edificio histórico diseñado por el renombrado ingeniero Andrés Comerma, esta propiedad combina tradición, historia y potencial ilimitado. Comerma, conocido por llevar la modernidad a Galicia, dejó su sello en esta construcción única, destacada por su impresionante cantería en dinteles y sus espectaculares galerías, reflejo de un estilo arquitectónico inigualable.

A pesar de su valor histórico, el edificio no está sujeto a restricciones de protección, lo que brinda total libertad para acondicionarlo según tus necesidades y preferencias.

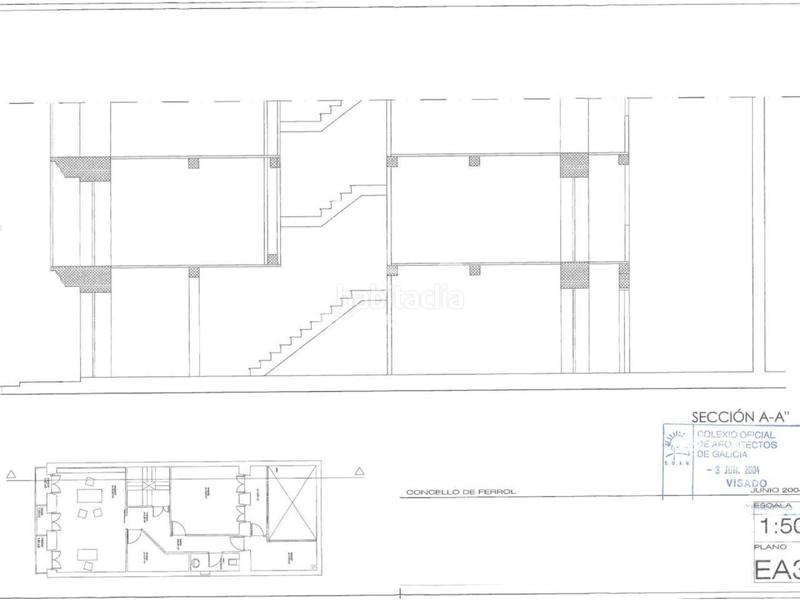
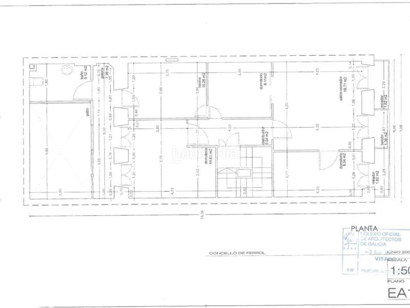
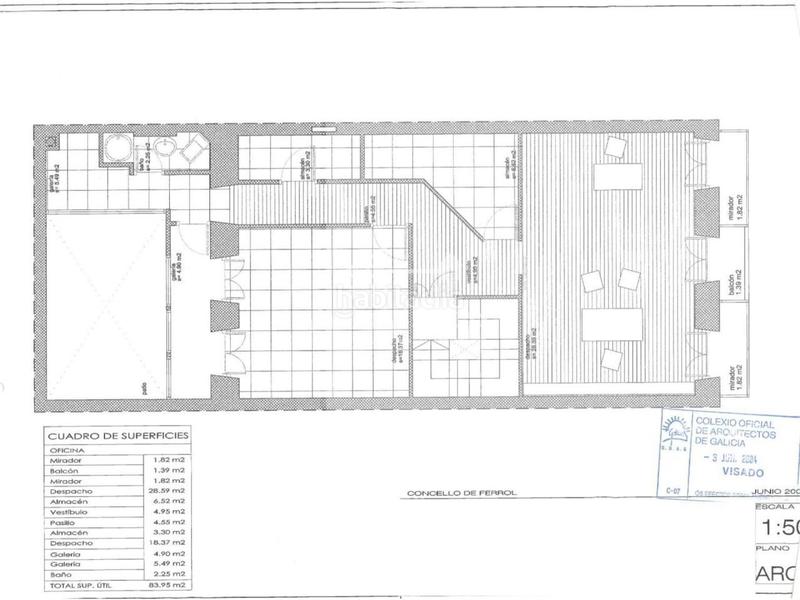
Actualmente preparado como oficinas y despachos, este espacio ofrece la flexibilidad de ser transformado fácilmente en una vivienda elegante y funcional. Con planos disponibles para explorar distintas configuraciones, esta propiedad se adapta a diversos estilos de vida.

Ubicado en una zona céntrica, con acceso inmediato a servicios, comercios y transporte, esta es una oportunidad única para adquirir una propiedad singular, donde historia y modernidad se fusionan en un lugar con infinitas posibilidades.

¿Listo para dar el siguiente paso? ¡No dejes pasar esta oportunidad de convertir este espacio histórico en tu nuevo hogar o inversión ideal!

dernière modification

Distribution

  • 4 Chambres
  • Surface 84 m2
  • 1 salle de bain

Caractéristiques Générales

  • Sans place parking
  • Certificat énergétique :
    Consumo:
    G
    999 kW h m2 / año
    Emisiones:
    G
    999 kg CO2 m2 / año

Équipement communautaire

  • Sans ascenseur
Annonce: 37450000001197

Lieu

Centro

Naviguez sur la carte en cliquant dessus
140.000 € Prix de l´annonce
1.354 €/m2€/m2 población
1.667 €/m2€/m2 de l´annonce
Voir évolution €/m2 dans Ferrol
Nous vous prévenons lorsque nous aurons une annonce comme celle-ci ? Créez votre alerte et nous vous préviendrons par courrier électronique dès qu´il y aura de nouvelles annonces ou lorsqu´elles seront modifiées
 

Contacter HOUSEFULNESS Servicios Inmobiliarios

Référence de l´annonce habitaclia/P001522:

Vous verrez le numéro de téléphone après que vous ayez envoyé vos coordonnées à l´annonceur pour qu´il puisse vous répondre.
Le numéro de téléphone s´affichera après avoir contacté
Envoi en cours…