Évaluation sauvegardée !
Vous serrez le seul/la seule à le voir
Commentaire sauvegardé !
Ajoutez votre évaluation et/ou un commentaire pour cette annonce. Vous seul(e) le verrez
Occasion 2.750.000 € Prévenez-moi si le prix baisse

Appartement dans Lista Madrid

  • 200 m2
  • 3 hab.
  • 3 salles de bain
  • 13.750 €/m2

en Madrid

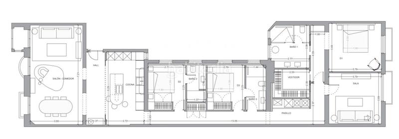
Vivienda de 208 m², ubicada en una quinta planta de una finca clásica madrileña con plaza de garaje, trastero, portero físico, portal señorial y ascensor de época en plena calle General Oráa, en el corazón del barrio de Salamanca. Actualmente en fase de reforma integral a cargo del estudio de arquitectura de Mónica Diago, el proyecto propone una reinterpretación contemporánea del piso clásico madrileño, cuidando la proporción, la luz y la elegancia sobria de cada estancia.


La vivienda se organiza en torno a una zona social amplia y fluida, compuesta por salón y comedor en un mismo espacio, con dos balcones y un mirador a la calle General Oráa que aportan vistas despejadas y una luz excepcional, acentuada por la altura de la planta. La orientación norte-sur y la posición en esquina maximizan la entrada de luz natural durante todo el día en el inmueble. El salón conecta con la cocina mediante embocaduras de madera estriada, y ambas estancias cuentan con techos de hasta 2,80 metros y unas elegantes balconeras de 2,60 metros de alto, lo que refuerza la sensación de amplitud y verticalidad.


La cocina, con isla central, se integra con naturalidad en el conjunto gracias a un diseño sobrio y funcional. Estará equipada con electrodomésticos Siemens de alta gama e incluirá una placa de inducción con sistema de extracción integrado en la propia isla. La zona de lavandería queda separada, con un espacio específico en el pasillo reservado para lavadora y secadora.


La zona privada cuenta con tres dormitorios dobles, todos con baño en suite con luz natural y armarios empotrados hechos a medida. El dormitorio principal se completa con un amplio vestidor, un cabecero de diseño propio, y una sala privada que se abre a un amplio patio de manzana con orientación sur, lo que garantiza luz y tranquilidad. Esta sala puede funcionar como salón privado, rincón de lectura o incluso existe la posibilidad de habilitarlo como cuarta habitación si se desea.


Como es habitual en los proyectos firmados por el estudio de Mónica Diago, la reforma contempla materiales nobles y elementos de autor: suelos de roble natural en punta Hungría, ventanas de madera que replican el diseño original, contraventanas restauradas, lavabo de diseño propio en el baño principal, carpintería a medida en puertas y armarios, así como molduras en pared, cornisas y plafones de escayola, y una cuidada iluminación en toda la vivienda.


La propiedad incluye además un trastero en la misma finca, y plaza de garaje en finca colindante incluida en el precio, en completando así una propuesta residencial que combina carácter, diseño y funcionalidad.


Situada en uno de los tramos más residenciales de General Oráa, esta vivienda ofrece una ubicación privilegiada dentro del barrio de Salamanca, a escasos pasos de las calles Príncipe de Vergara y Diego de León. Un entorno consolidado, elegante y bien conectado, donde conviven comercio local, gastronomía de calidad y tradición arquitectónica. Un enclave perfecto para quienes buscan una experiencia residencial de alto nivel en el centro de Madrid.

dernière modification

Distribution

  • 3 Chambres
  • Surface 200 m2
  • 3 salles de bain
  • Cuisine Type Office

Caractéristiques Générales

  • Sans place parking
  • Sans climatisation
  • Année de construction 1920
  • Certificat énergétique :
    Consumo:
    G
    999 kW h m2 / año
    Emisiones:
    G
    999 kg CO2 m2 / año

Équipement communautaire

  • Ascenseur
Annonce: 48408000000903

Lieu

Lista

Naviguez sur la carte en cliquant dessus
2.750.000 € Prix de l´annonce
11.460 €/m2€/m2 distrito
13.750 €/m2€/m2 de l´annonce
Combien seriez-vous disposé à payer?
Voir évolution €/m2 dans Madrid (Barrio de Salamanca)
Nous vous prévenons lorsque nous aurons une annonce comme celle-ci ? Créez votre alerte et nous vous préviendrons par courrier électronique dès qu´il y aura de nouvelles annonces ou lorsqu´elles seront modifiées
 

Contacter THE WELL COME HOME

Référence de l´annonce habitaclia/3457:

Vous verrez le numéro de téléphone après que vous ayez envoyé vos coordonnées à l´annonceur pour qu´il puisse vous répondre.
Le numéro de téléphone s´affichera après avoir contacté
Envoi en cours…