Visite virtuelle
Évaluation sauvegardée !
Vous serrez le seul/la seule à le voir
Commentaire sauvegardé !
Ajoutez votre évaluation et/ou un commentaire pour cette annonce. Vous seul(e) le verrez

Appartement avec chauffage dans Ametllers - Poble Sec Sitges

  • 67 m2
  • 3 hab.
  • 1 salle de bain
  • 4.284 €/m2

A cinco minutos de la estación de tren y del centro.

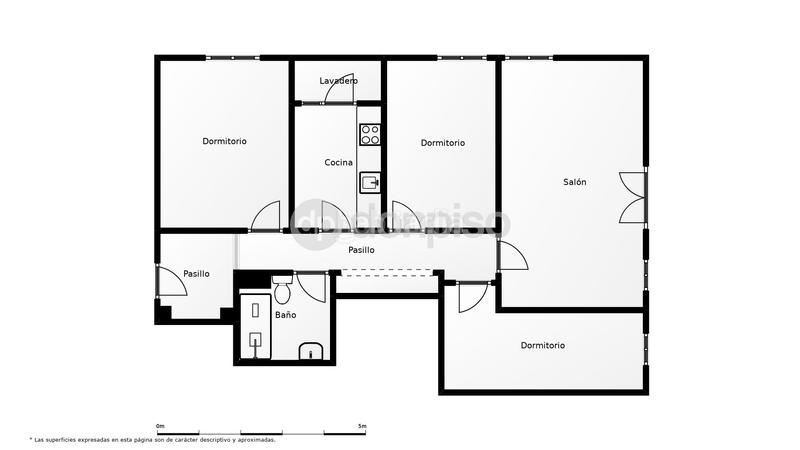
AMETLLERS-POBLE SEC - SITGES (BARCELONA). Este encantador piso se presenta como una oportunidad única para aquellos que buscan calidad de vida en una de las localidades más deseadas de la Costa Dorada. Con una distribución óptima, el inmueble cuenta con tres habitaciones dobles, todas exteriores, lo que aporta una luminosidad excepcional en cada rincón. Dos de las habitaciones tienen vistas a la tranquila calle, mientras que la tercera ofrece un ambiente sereno, perfecto para el descanso. El amplio comedor, también exterior, se convierte en el corazón del hogar, ideal para disfrutar de momentos en familia o con amigos. La cocina con acceso al lavadero exterior, es un espacio funcional y acogedor donde preparar tus platos favoritos se convierte en un verdadero placer. Además, el baño ha sido renovado y presenta un diseño moderno y práctico, asegurando comodidad en el día a día. El vestíbulo y el pasillo distribuidor conectan las distintas estancias de forma fluida, creando un ambiente armonioso y accesible, los propietarios de dichas viviendas disponen de aparcamiento municipal gratuito en la zona..

El piso se encuentra en una localización privilegiada, en el barrio de Ametllers-Poble Sec, donde la tranquilidad y la cercanía al mar se fusionan. El entorno es familiar y amable, perfecto para disfrutar del ambiente mediterráneo que caracteriza a Sitges. La zona está bien equipada con mercados locales, donde podrás abastecerte de productos frescos y de calidad, así como con colegios que garantizan una educación de excelencia para los más pequeños. Para los amantes del ocio, la oferta es variada, con bares, restaurantes y espacios culturales que enriquecen la vida comunitaria.

En cuanto a los medios de transporte, la ubicación es inmejorable. A tan solo unos minutos a pie, encontrarás paradas de autobús que conectan con el centro de Sitges y otras localidades cercanas. Además, la estación de tren se encuentra a poco más de 1 km, facilitando así el acceso a Barcelona y otras ciudades de interés. Sin duda, este piso no solo es una oportunidad de adquirir un inmueble, sino también de invertir en un estilo de vida pleno y enriquecedor en una de las zonas más emblemáticas de la costa catalana. ( El PVP indicado no incluye impuestos ni gastos de Escritura ).
PARA PROPIETARIOS:
¿Necesitas vender para comprar? te ayudamos coordinándolo todo y con hipoteca cambio de casa.
¿Tienes prisa en vender? te ofrecemos una venta rápida con todas las garantías.
¿Necesitas una hipoteca? en donpiso la encuentras y en condiciones preferentes.
¿Herencias?, ¿Divorcios?, te ayudamos y coordinamos todo.
Infórmate: -

dernière modification

Distribution

  • 3 Chambres
  • Surface 67 m2
  • 1 salle de bain

Caractéristiques Générales

  • Chauffage
  • Climatisation
  • Année de construction 1975
  • Certificat énergétique :
    Consumo:
    F
    230 kW h m2 / año
    Emisiones:
    E
    48 kg CO2 m2 / año

Équipement communautaire

  • Ascenseur
Annonce: 49734000000062

Lieu

Ametllers - Poble Sec

Naviguez sur la carte en cliquant dessus
287.000 € Prix de l´annonce
5.950 €/m2€/m2 población
4.284 €/m2€/m2 de l´annonce
28% moins cher que la moyenne*
Voir évolution €/m2 dans Sitges
Nous vous prévenons lorsque nous aurons une annonce comme celle-ci ? Créez votre alerte et nous vous préviendrons par courrier électronique dès qu´il y aura de nouvelles annonces ou lorsqu´elles seront modifiées
 

Contacter Don Piso Sitges

Référence de l´annonce habitaclia/0297325:

Vous verrez le numéro de téléphone après que vous ayez envoyé vos coordonnées à l´annonceur pour qu´il puisse vous répondre.
Le numéro de téléphone s´affichera après avoir contacté
Envoi en cours…