Évaluation sauvegardée !
Vous serrez le seul/la seule à le voir
Commentaire sauvegardé !
Ajoutez votre évaluation et/ou un commentaire pour cette annonce. Vous seul(e) le verrez
720.000 € Prévenez-moi si le prix baisse
a baissé 17.000 €

Attique avec chauffage piscine dans Doña Julia Golf Casares

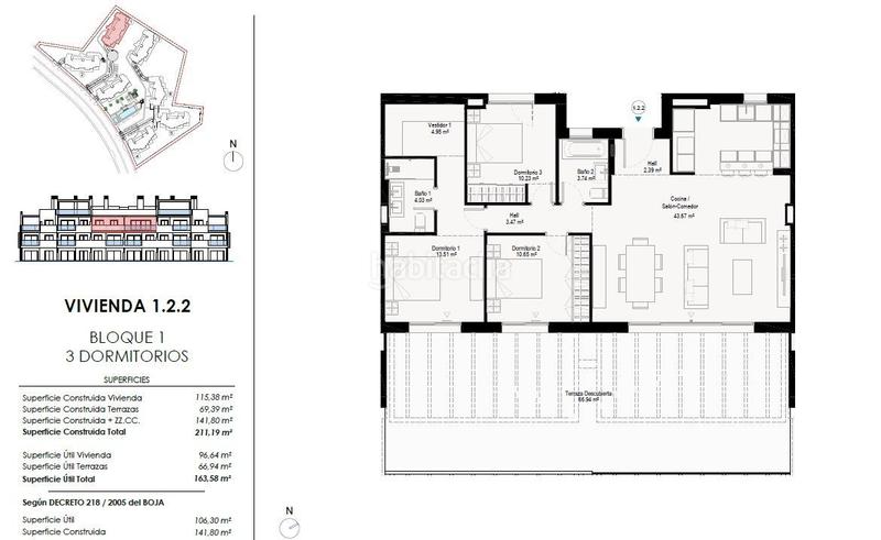
  • 184 m2
  • 3 hab.
  • 2 salles de bain
  • 3.913 €/m2

Ático de tres dormitorios en venta en Casares, Casares Costa, Málaga

Blue Sea Homes presenta un exclusivo complejo cerrado de 99 apartamentos y áticos, de 2 & 3 dormitorios ubicado al lado de Doña Julia Golf, en Casares Costa. Amplias terrazas, vistas al mar, zonas para socializar con sofisticadas instalaciones. Ofrece viviendas diseñadas para disfrutar al máximo de su tiempo libre.

Tipología de los áticos, son pisos de 3 dormitorios desde 184m² construidos hasta 277m² construidos. Dos de los áticos tiene un solarium de 166m².

Se encuentra un elegante vestíbulo de entrada, una moderna cocina de concepto abierto, totalmente amueblada y equipada, que se integra con el amplio salón comedor bañado por luz natural, el cual da acceso directo a una agradable terraza abierta desde 66 m² a perfecta para disfrutar del aire libre.

El dormitorio principal cuenta con un baño en suite y vestidor privado y acceso directo a la terraza. Los dos dormitorios amplios adicionales cuentan con un baño completo.

Las viviendas se entregan con acabados de alta calidad que incluyen suelos de tarima flotante, armarios empotrados, carpintería exterior de aluminio con doble acristalamiento, puerta de entrada blindada, aire acondicionado, sistema de aerotermia y videoportero. Hay posibilidad de personalizar el ático y los bajos con mini-piscina privada y añadir barbacoa para áticos y un punto de carga para vehículos eléctricos y suelos radiantes en los baños. *Las características opcionales no están incluidas en el precio de la propiedad y sujeto a cambio.

Sauna y hammam. Gimnasio totalmente equipado. Circuitos de calistenia. Zona de estar. Simulador de golf. Chill Out y barbacoa. Y un App para ayudarle con el proceso de la compra y le permitirá realizar reservas en restaurantes cercanos, campos de golf, alquileres de coches, etc., así como reservar los espacios compartidos de Alura.

Las zonas comunes disponen de dos atractivas piscinas comunitarias rodeada de jardines cuidadosamente diseñados, ideales para relajarse en un entorno natural y exclusivo.

La ubicación es excelente, cercana a comercios, restaurantes y otros servicios, a tan solo unos minutos de la playa y a 30 minutos del Aeropuerto Internacional de Málaga, con buenas conexiones por carretera. Situado en un entorno consolidado, con excelente acceso a las principales localidades de la Costa del Sol (Estepona, Sotogrande, Marbella) y rodeado de los principales campos de golf de la zona.

La fecha prevista de entrega es para 2027. Una oportunidad única de vivir en uno de los entornos más valorados de la Costa del Sol.

Se informa a los clientes que el 10% IVA por vivienda de nueva construcción, no se encuentra incluido en el precio. Le recordamos que como consumidor tiene derecho a que se le informe y entregue la documentación informativa que corresponda, según el caso, en base a lo dispuesto en el Decreto 218/05 de 11 de octubre que regula el Reglamento de Información al Consumidor en la compra-venta y arrendamiento de viviendas en Andalucía. La información facilitada es orientativa, no tiene carácter vinculante y carece de valor contractual. Dicha información puede haber sufrido modificaciones que aún no han sido incorporadas. Le sugerimos se ponga en contacto con la empresa para obtener los últimos datos y/o confirmar los aquí expuestos. TW [IW]

dernière modification

Distribution

  • 3 Chambres
  • Surface 184 m2
  • Terrasse 69 m2
  • 2 salles de bain
  • Cuisine Type Office
  • débarras

Caractéristiques Générales

  • Chauffage
  • Climatisation
  • Certificat énergétique :
    Consumo:
    G
    999 kW h m2 / año
    Emisiones:
    G
    999 kg CO2 m2 / año

Équipement communautaire

  • Ascenseur
  • Piscine Communautaire
Annonce: 22628000008826

Lieu

Doña Julia Golf Doña Julia ALURA LIVING

Naviguez sur la carte en cliquant dessus
720.000 € Prix de l´annonce
4.396 €/m2€/m2 población
3.913 €/m2€/m2 de l´annonce
11% moins cher que la moyenne*
Voir évolution €/m2 dans Casares
Nous vous prévenons lorsque nous aurons une annonce comme celle-ci ? Créez votre alerte et nous vous préviendrons par courrier électronique dès qu´il y aura de nouvelles annonces ou lorsqu´elles seront modifiées
 

Contacter BLUE SEA HOMES

Référence de l´annonce habitaclia/BS4046:

Vous verrez le numéro de téléphone après que vous ayez envoyé vos coordonnées à l´annonceur pour qu´il puisse vous répondre.
Le numéro de téléphone s´affichera après avoir contacté
Envoi en cours…