Favorito y comentario
Attique avec chauffage parking piscine dans Encinar de los Reyes La Moraleja
Caractéristiques principales
- 233 m2
- 3 hab.
- 3 salles de bain
- 5.129 €/m2
Informations détaillées
Ático en El Encinar de los Reyes
ÁTICO EN URBANIZACIÓN CON PISCINA Y PISTAS DE PÁDEL EN LA MORALEJA
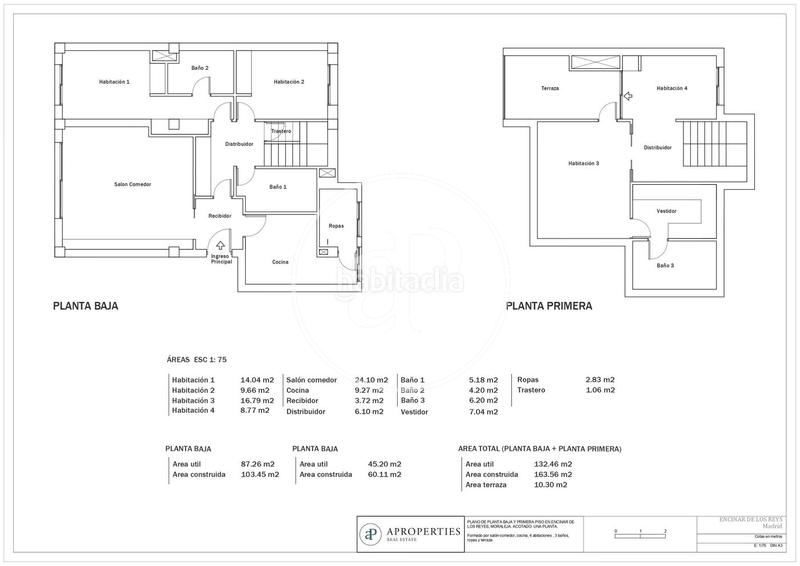
Descubre este ático dúplex muy luminoso en una de las mejores urbanizaciones de EL Encinar de los Reyes con piscina, pistas de pádel y parque infantil. El ático cuenta con tres dormitorios y un despacho que podría ser el cuarto dormitorio y tres baños completos. La vivienda cuenta con 233 m² según catastro y se distribuye de la siguiente manera.
En la planta baja encontramos un amplio recibidor, 2 habitaciones, uno de ellos con baño en suite y otro baño completo, salón comedor con una magnífica luz y cocina totalmente amueblada con office y zona de lavado independiente.
En la planta superior encontramos el dormitorio principal con baño en suite y vestidor y un despacho que tiene salida a la terraza.
El aire acondicionado es por conductos y la calefacción individual por radiadores de gas natural.
La urbanización cuenta con seguridad 24 h, piscina de adultos, piscina infantil, parque infantil, dos pistas de pádel, sala de comunidad y amplias zonas verdes.
Seguridad las 24 horas y dos entradas a la urbanización, una peatonal y otra vehicular
En el precio están incluidas dos amplias plazas de garaje y un trastero.
¿Te imaginas vivir aquí?
Ref. VMN2406001
dernière modification
Distribution
- 3 Chambres
- Surface 233 m2
- 3 salles de bain
- débarras
Caractéristiques Générales
- Chauffage
- Place parking
- Climatisation
- Année de construction 2004
Équipement communautaire
- Ascenseur
- Piscine Communautaire
Galerie
Lieu
Encinar de los Reyes