Visite virtuelle
Évaluation sauvegardée !
Vous serrez le seul/la seule à le voir
Commentaire sauvegardé !
Ajoutez votre évaluation et/ou un commentaire pour cette annonce. Vous seul(e) le verrez

Attique avec chauffage dans Valdeacederas Madrid

  • 131 m2
  • 3 hab.
  • 2 salles de bain
  • 4.160 €/m2


EXCLUSIVO ÁTICO DÚPLEX CON TERRAZA Y TRASTERO

¡Y SIN HONORARIOS PARA EL COMPRADOR!

iad presenta este espectacular ático dúplex de 131 m² y 3 habitaciones, una vivienda que destaca por su gran luminosidad y la sensación de independencia y tranquilidad que ofrece.?Un hogar donde disfrutar de la calma desde las alturas, sin renunciar a todas las ventajas de vivir en la ciudad.

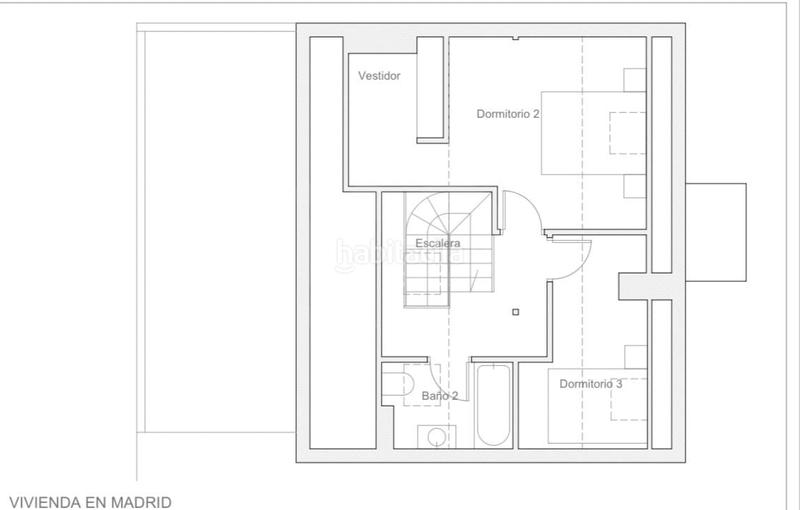
Distribución:
Planta Principal:?Acceso a un amplio salón-comedor con salida directa a la terraza de 20 m², un espacio exterior privilegiado con toma de agua y televisión, perfecto para reuniones y relax.?Cocina independiente completamente equipada, con zona de lavadero.?Un dormitorio con armario empotrado y un baño completo con ducha.
Planta Superior:?Dedicada al descanso, con un gran dormitorio principal con vestidor y un segundo dormitorio.?Dispone además de un segundo baño completo con bañera.

Ventajas Únicas:
* Luz y Orientación: Todas las estancias son exteriores y, gracias a su orientación Sur-Este y la ausencia de edificios cercanos, la luz directa es constante durante todo el día.
* Silencio y Privacidad: Última planta con tejado a dos aguas y sin vecinos colindantes: tranquilidad total.
* Confort: Aire acondicionado y calefacción individual.
* Valor Añadido: Trastero de 10 m² incluido en el precio, un plus fundamental en Madrid.

Sobre la Zona: Valdeacederas:
Ubicación privilegiada en el distrito de Tetuán, una zona consolidada que combina vida de barrio, servicios, y excelentes conexiones.

Transporte y Conexión:
* Metro: A pocos minutos de la estación Valdeacederas (Línea 1), con conexión directa a Plaza de Castilla y al centro (Puerta del Sol).
* Autobuses: Líneas 66, 124 y 49 muy próximas, con conexión rápida a Cuatro Caminos, La Vaguada y Pitis.
* Coche: Acceso directo al Paseo de la Castellana y la M-30.
Servicios y Calidad de Vida:
* Educación: Amplia oferta de colegios e institutos públicos y concertados. Destaca el IES La Paloma.
* Comercio y Ocio: Bares, cafeterías, comercios locales y grandes supermercados (Mercadona, Ahorramás).
* Zonas Verdes: Cercanía al Parque Rodríguez Sahagún y Dehesa de la Villa.

Información adicional:
La vivienda dispone de tasación profesional, facilitando los trámites de financiación y garantizando total transparencia sobre el valor de mercado.

?? Este ático dúplex le ofrece el privilegio de vivir en la tranquilidad de un refugio privado con una terraza perfecta para disfrutar, sin renunciar a la conexión inmediata con el corazón de Madrid.?Exclusividad, luz y ubicación en una inversión tan segura como excepcional.

??? Y recuerde: ¡No cobramos honorarios al comprador!

Contacta con tu asesora profesional:?
María Moreno – iad España

dernière modification

Distribution

  • 3 Chambres
  • Surface 131 m2
  • 2 salles de bain

Caractéristiques Générales

  • Chauffage
  • Climatisation
  • Étage numéro 3
  • Année de construction 2002
  • Certificat énergétique :
    Consumo:
    E
    49 kW h m2 / año
    Emisiones:
    E
    235 kg CO2 m2 / año
Annonce: 15471000068461

Lieu

Valdeacederas

Naviguez sur la carte en cliquant dessus
545.000 € Prix de l´annonce
6.364 €/m2€/m2 distrito
4.160 €/m2€/m2 de l´annonce
35% moins cher que la moyenne*
Combien seriez-vous disposé à payer?
Voir évolution €/m2 dans Madrid (Tetuán)
Nous vous prévenons lorsque nous aurons une annonce comme celle-ci ? Créez votre alerte et nous vous préviendrons par courrier électronique dès qu´il y aura de nouvelles annonces ou lorsqu´elles seront modifiées
 

Contacter iad ESPAÑA

Référence de l´annonce habitaclia/738416:

Vous verrez le numéro de téléphone après que vous ayez envoyé vos coordonnées à l´annonceur pour qu´il puisse vous répondre.
Le numéro de téléphone s´affichera après avoir contacté
Envoi en cours…