Visite virtuelle
Évaluation sauvegardée !
Vous serrez le seul/la seule à le voir
Commentaire sauvegardé !
Ajoutez votre évaluation et/ou un commentaire pour cette annonce. Vous seul(e) le verrez

Attique avec chauffage dans Murallas Ávila

  • 152 m2
  • 2 hab.
  • 2 salles de bain
  • 2.368 €/m2

EXCLUSIVO PISO DE ALTO STANDING frente a la CATEDRAL

? EXCLUSIVO PISO DE ALTO STANDING EN EL CORAZÓN DE ÁVILA, FRENTE A LA CATEDRAL
Vivir en un enclave único, en un edificio moderno con ascensor, justo enfrente de la majestuosa Catedral de Ávila y rodeado por las históricas murallas, ahora es posible. Esta vivienda combina elegancia, amplitud y personalidad en un espacio privilegiado.

?? ¿DÓNDE ESTÁ UBICADO? ??
Situado en la Plaza de la Catedral, en la zona más emblemática y codiciada de la ciudad, este piso ofrece la oportunidad de residir en pleno centro histórico de Ávila, con todos los servicios y el encanto monumental a la puerta de tu casa. Una ubicación inmejorable y única en la ciudad.

???? ¿CÓMO SE DISTRIBUYE? ????
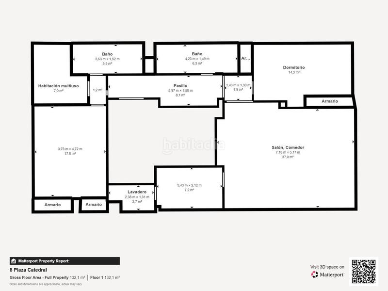
La vivienda cuenta con 156m² construidos y 106m² útiles, distribuidos en espacios amplios y muy bien aprovechados:

- 2 dormitorios, ambos con armarios empotrados mas una estancia abierta al salón a doble altura actualmente utilizada como despacho/librería, que aporta versatilidad y gran carácter al piso.
- 2 baños completos: uno con plato de ducha, mampara y ventana Velux para ventilación natural, y otro con bañera y ventana.

Salón de 35m², muy luminoso gracias a sus grandes ventanales, diferenciado en zona de comedor y zona de estar, con salida a una terraza interior a doble altura que lo convierte en un espacio único.

Cocina independiente, junto al salón, con zona extra de almacenaje y lavandería. Y una habitación bajocubierta de unos 7m2 que sirve actualmente como almacén/trastero.

?? ¿CUÁL ES SU PUNTO FUERTE? ??
Sin duda, su gran salón con doble altura y terraza interior que aporta luz, amplitud y un carácter exclusivo por su ubicación dentro de la Muralla. Además, su enclave frente a la Catedral lo convierte en una vivienda de auténtico prestigio.

???? ¿PARA QUIÉN PUEDE SER PERFECTO? ????
Ideal para aquellos que buscan una vivienda representativa, céntrica y que tenga estilo propio, perfecta tanto como residencia habitual de alto nivel como para quienes deseen invertir en una propiedad unica y exclusiva en el corazón de Ávila.

?? OTRAS CARACTERÍSTICAS ??
Pintura lisa en perfecto estado.
- Suelos de parquet moderno.
- Ventanas con acristalamiento Climalit.
- Calefacción de gasoil, con tanques ubicados en la zona baja del edificio.
- No dispone de garaje propio, pero cuenta con una plaza de garaje en alquiler a tan solo 25 metros, reservada en exclusiva para el comprador.
- Año de construcción: 2003, edificio moderno con ascensor que llega hasta la segunda planta, luego dispone de dos tramos cortos de escalera hasta la vivienda con rellano de entrada único para la vivienda.

? ¡No pierdas la oportunidad de vivir en un lugar ÚNICO y ven a visitarlo sin compromiso!?

dernière modification

Distribution

  • 2 Chambres
  • Surface 152 m2
  • 2 salles de bain
  • débarras

Caractéristiques Générales

  • Chauffage
  • Sans place parking
  • Sans climatisation
  • Année de construction 2003
  • Certificat énergétique :
    Consumo:
    G
    999 kW h m2 / año
    Emisiones:
    G
    999 kg CO2 m2 / año

Équipement communautaire

  • Ascenseur
Annonce: 34271000000967

Lieu

Murallas De La Catedral

Naviguez sur la carte en cliquant dessus
360.000 € Prix de l´annonce
1.459 €/m2€/m2 población
2.368 €/m2€/m2 de l´annonce
Voir évolution €/m2 dans Ávila
Nous vous prévenons lorsque nous aurons une annonce comme celle-ci ? Créez votre alerte et nous vous préviendrons par courrier électronique dès qu´il y aura de nouvelles annonces ou lorsqu´elles seront modifiées
 

Contacter GRUPO LEONSA

Référence de l´annonce habitaclia/3113:

Vous verrez le numéro de téléphone après que vous ayez envoyé vos coordonnées à l´annonceur pour qu´il puisse vous répondre.
Le numéro de téléphone s´affichera après avoir contacté
Envoi en cours…