Favorito y comentario
Bâtiment à usage industriel dans Casarrubuelos
Caractéristiques principales
- 797 m2
- 669 €/m2
Informations détaillées
Nave en Venta en P.I. Puerta de Madrid en Casarrubuelos
Nave industrial en venta en Casarrubuelos (Madrid)
?? Superficie construida: 797 m²
?? Parcela compartida de 2.581 m² (participación del 41,47%)
?? Año de construcción: 2006
?? Excelente estado | Fácil acceso | Potencial logístico
Todo el mobiliario que aparece en el reportaje entraría en el precio salvo la cámara frigorífica que podrás adquirirla por 5.000€.
¿Buscas una nave versátil, con excelente ubicación y lista para operar?
Te presentamos esta magnífica oportunidad en el Polígono Industrial Puerta de Madrid, de Casarrubuelos, una zona consolidada al sur de Madrid con acceso directo a la A-42, A-5 y R-5. Perfecta para logística, almacenamiento o actividad industrial.
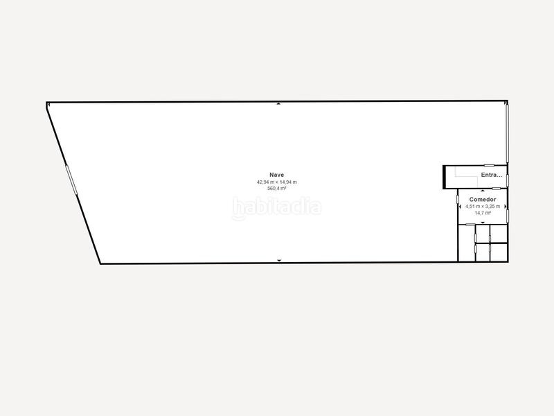
La nave se distribuye en dos plantas:
? Planta baja de 610 m² con gran altura libre, ideal para almacenaje y maniobra de vehículos.
? Planta superior de 88 m² acondicionada para oficina, gestión o archivo.
? Dispone de elementos comunes de 99 m² y excelente distribución de espacios.
?? Fácil acceso para camiones
?? Instalaciones en perfecto estado: suelos cuidados, iluminación instalada, acceso peatonal y rodado independiente.
?? Construcción sólida y reciente (2006), cumpliendo normativa.
?? Ideal para empresas que buscan operatividad inmediata sin necesidad de reformas.
Ubicada en Casarrubuelos, a tan solo 30 minutos de Madrid capital, en un entorno seguro, ordenado y con otros negocios consolidados. El emplazamiento ofrece potencial de crecimiento y conexión logística con todo el sur de la Comunidad.
No dejes pasar esta oportunidad.
Contáctanos y programa tu visita.
Tu próxima inversión o centro de operaciones te espera en Casarrubuelos.
dernière modification
Distribution
- Surface 797 m2
Caractéristiques Générales
- Année de construction 2006
Galerie
Lieu
Praga
