Évaluation sauvegardée !
Vous serrez le seul/la seule à le voir
Commentaire sauvegardé !
Ajoutez votre évaluation et/ou un commentaire pour cette annonce. Vous seul(e) le verrez
545.000 € Prévenez-moi si le prix baisse
a baissé 55.000 €

Bâtiment à usage industriel dans Pisa Mairena del Aljarafe

  • 1.080 m2
  • 505 €/m2

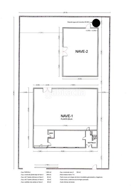
DOS NAVES INDUSTRIALES construidas en una misma parcela en una superficie de 1.080 m2 en el Polg. Ind. PISA, en Mairena del Aljarafe de Sevilla. La parcela cuenta con un edificio de 3 plantas más azotea y otra nave independiente de 138 m2 en el fondo de la parcela. La planta baja del edificio consta de: nave de 296 m2, la cual incluye, 1aseo, y un compartimento de 80 m2 usado actualmente como laboratorio y vestíbulo con acceso a nave y plantas superiores. Ambas naves tienen una altura hasta el techo de 7 m.

La primera y segunda planta constan de oficinas compartimentadas y aseos de 80 m2 cada una y en la última planta un castillete con azotea visitable.. (ver plano adjunto).
. Alimentación de corriente eléctrica monofásica y trifásica.
. Puertas acceso para carga y descarga en ambas naves más otras puertas de servicio.
. Suelo de hormigón prensado en toda la parcela y naves.
. Techo mediante placas metálicas de hierro galvanizado y tragaluces.
. Sistema de antincendios mediante mangueras y depósito de agua de 50.000 L.
. Aire acondicionado y aseos en las tres plantas.
. Plazas de aparcamiento techado al fondo de la parcela.

Informamos a nuestros clientes compradores que el precio de venta no incluye lo siguiente: Honorarios de la agencia inmobiliaria, Impuestos (I.T.P., I.V.A. o A.J.D., en su caso) ni otros gastos de la compraventa (gastos de Registro de la Propiedad, Notaría, Gestoría ni de posible Financiación). Documento F.I.S. a disposición del consumidor según Decreto 218/2005 Junta de Andalucía.

dernière modification

Distribution

  • Surface 1080 m2

Caractéristiques Générales

  • Année de construction 1996
Annonce: 22134000005692

Lieu

Pisa

Naviguez sur la carte en cliquant dessus
Nous vous prévenons lorsque nous aurons une annonce comme celle-ci ? Créez votre alerte et nous vous préviendrons par courrier électronique dès qu´il y aura de nouvelles annonces ou lorsqu´elles seront modifiées
 

Contacter INMOBILIARIA SEVILLA 2000

Référence de l´annonce habitaclia/MA80963:

Vous verrez le numéro de téléphone après que vous ayez envoyé vos coordonnées à l´annonceur pour qu´il puisse vous répondre.
Le numéro de téléphone s´affichera après avoir contacté
Envoi en cours…