Favorito y comentario
Bureau avec chauffage dans Área Romántica Donostia - San Sebastián
Caractéristiques principales
- 100 m2
- 7.300 €/m2
Informations détaillées
Venta de oficina en Donostia Centro Calle Arrasate
Venta de oficina en Calle Arrasate - centro, Donostia San Sebastián
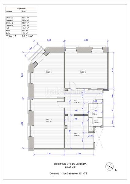
En estos momentos la oficina está arrendada, finalizando el contrato en Septiembre de 2025, con posibilidad de renovar el contrato de arrendamiento.Actualmente su uso es de oficina y con posibilidad de cambio a viviendaOficina-Piso de 95,60 m² útiles en 1ª altura en pleno centro Donostiarra en calle peatonal.-Ubicado en esquina con 5 balcones y un gran mirador.-Tres grandes despachos exteriores y una habitación interior. -1 WC.-Ventanas de PVC - climalit.-Techos Amstrong, suelo enmoquetado etc.- Hay una derrama en curso, 492€/mes, hasta Abril de 2026.
El EdificioEdificio tiene fachada de piedra de sillería.Calefacción y agua caliente individual de gas.El edificio dispone de ascensor en plantas intermedias. No tiene parada en el piso primero.
El EntornoCalle peatonal a un paso del Centro San Martín y el Buen Pastor.A escasos metros de la Avenida de la Libertad.Proximo a los parkings del Buen Pastor y de La ConchaEn pleno centro comercial.
dernière modification
Distribution
- Surface 100 m2
Caractéristiques Générales
- Chauffage
Galerie
Lieu
Área Romántica Arrasate Kalea
