Évaluation sauvegardée !
Vous serrez le seul/la seule à le voir
Commentaire sauvegardé !
Ajoutez votre évaluation et/ou un commentaire pour cette annonce. Vous seul(e) le verrez

Chalet avec piscine dans Altea hills Altea

  • 430 m2
  • 4 hab.
  • 3 salles de bain
  • 4.649 €/m2

Exclusiva villa nueva y moderna en venta en la emblemática Altea Hills

Oportunidad única de inversión con vistas al mar y a la montaña en la prestigiosa urbanización de Altea Hills, Alicante.

Precio : €
A terminar listo para entrega aproximadamente Septiembre 2026.

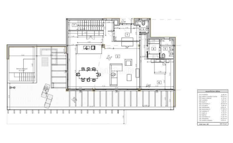
4 dormitorios, 3 baños, cada dormitorio tiene grandes armarios empotrados con puertas de armario de vidrio de derivación.

-240m construidos interiores
-430m totales construidos
-70m salón abierto con acceso a uno de los dormitorios principales / baños en el mismo piso, así como la calle / plaza de aparcamiento para 2 coches y una motocicleta. No hay necesidad de acceder a las escaleras para las personas que quieren vivir en un nivel de piso y utilizar el segundo piso inferior sólo para las invitaciones.


Parcela privada de 970m con posibilidad de crear un jardín personalizado muy grande ya que el resto de la parcela es llana una vez que se sale de las habitaciones de la planta inferior. Junto a la parcela se encuentra la naturaleza perteneciente a Altea Hills que nunca se puede construir, uno de los muy pocos lugares disponibles para tener alta privacidad dentro de esta exclusiva comunidad cerrada con guardias de seguridad propios.

10 años de garantía, nuevo sistema de construcción con estructura de acero + acabado artesanal con piedra real.
Ventanas de triple capa de gas de alta calidad con protección solar y acústica de suelo a techo que se pueden abrir para extender las habitaciones al exterior de la villa. Gran terraza de 25m de longitud total con grandes porches para crear la máxima sombra para el cálido sol del verano.

Cocina equipada con todos los aparatos de cocina de alta gama incluyendo nevera americana y gran isla de cocina que tiene una placa de vitrocerámica invisible escondida en la tabla de piedra y extracción de aire incorporada en el techo con mando a distancia.

Muy bajo consumo de electricidad como el nuevo sistema de construcción proporciona un nivel muy alto de aislamiento, además de que la villa cuenta con una instalación de paneles solares de 10 kW, que no se puede ver estéticamente y que proporcionará más electricidad de la necesaria para mantener la villa completa climatizada en todo momento. Cada planta viene con un potente sistema de aire acondicionado de bajo consumo de 12.000fr de una marca de alta calidad.
Sistema de caldera especial que recoge el calor del sol, que se puede conectar a la piscina como dispositivo de calentamiento para el agua en caso deseado. Casi ningún consumo eléctrico para el agua caliente en general para toda la villa.

Único en su clase de alta calidad oportunidad de inversión, tiene un montón de espacio para la plusvalía, así como oportunidades de alquiler.

dernière modification

Distribution

  • 4 Chambres
  • Surface 430 m2
  • Terrain 970 m2
  • 3 salles de bain

Caractéristiques Générales

  • Piscine particulière
  • Climatisation
  • Certificat énergétique :
    Consumo:
    G
    999 kW h m2 / año
    Emisiones:
    G
    999 kg CO2 m2 / año
Annonce: 11079004142126

Lieu

Altea Hills

Naviguez sur la carte en cliquant dessus
1.999.000 € Prix de l´annonce
3.454 €/m2€/m2 población
4.649 €/m2€/m2 de l´annonce
Combien seriez-vous disposé à payer?
Voir évolution €/m2 dans Altea
Nous vous prévenons lorsque nous aurons une annonce comme celle-ci ? Créez votre alerte et nous vous préviendrons par courrier électronique dès qu´il y aura de nouvelles annonces ou lorsqu´elles seront modifiées
 

Contacter Luxinmo Real Estate

Référence de l´annonce habitaclia/7470:

Vous verrez le numéro de téléphone après que vous ayez envoyé vos coordonnées à l´annonceur pour qu´il puisse vous répondre.
Le numéro de téléphone s´affichera après avoir contacté
Envoi en cours…