Évaluation sauvegardée !
Vous serrez le seul/la seule à le voir
Commentaire sauvegardé !
Ajoutez votre évaluation et/ou un commentaire pour cette annonce. Vous seul(e) le verrez

Chalet avec parking piscine dans El Alamillo Mazarrón

  • 118 m2
  • 4 hab.
  • 3 salles de bain
  • 3.178 €/m2

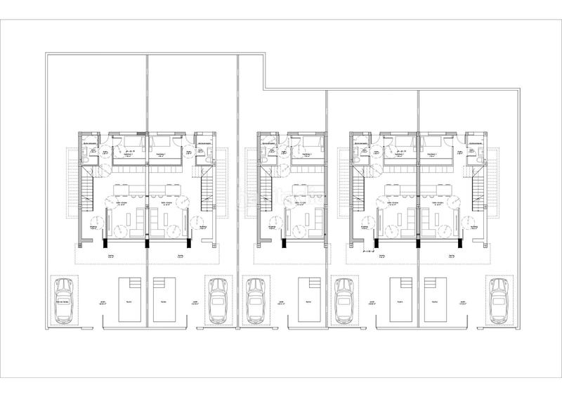
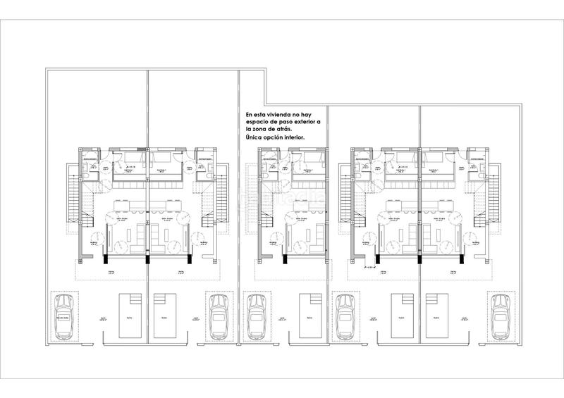
PROMOCIÓN EXCLUSIVA DE 5 VILLAS DE OBRA NUEVA EN PUERTO DE MAZARRÓN, A 400 METROS DE LA PLAYA!

Descubre con BLUE MED INVEST esta exclusiva promoción VILLAS ANTINAS; 5 viviendas pareadas situadas en Mar de Plata, una de las zonas más privilegiadas de Puerto de Mazarrón. A solo 400 metros del mar, estas villas de diseño moderno se distribuyen en dos plantas más una espectacular terraza solárium de 60,60 m² con vistas despejadas.

En la planta baja encontrarás un elegante recibidor, amplio salón con cocina americana, un dormitorio y un baño completo. La primera planta cuenta con un dormitorio principal con baño en suite y terraza privada de 11,45 m², además de dos dormitorios dobles y otro baño completo. En la última planta, el solárium ofrece un espacio ideal para relajarse y disfrutar del entorno. ¡Ahora con sótano de 58.75m2!

Cada parcela incluye aparcamiento privado, piscina propia y zona ajardinada. Las viviendas están construidas con primeras calidades: carpintería exterior de aluminio con climalit, interior en madera lacada en blanco y suelos de gres porcelánico. Orientación este-oeste, lo que garantiza una excelente luminosidad durante todo el día.

VIVIENDA A: 118.65m2 sobre parcela de 232.70m2 420.000€
VIVIENDA B: RESERVADA
VIVIENDA C: RESERVADA
VIVIENDA D: 118.65m2 sobre parcela de 181.00m2 375.000€
VIVIENDA E: 118.65m2 sobre parcela de 202.80m2 410.000€

¡Una oportunidad única para vivir o invertir en la zona más exclusiva del Puerto de Mazarrón!

Llámanos y concertamos una visita:
BLUE MED INVEST
+

REF: VILLASANTINAS

dernière modification

Distribution

  • 4 Chambres
  • Surface 118 m2
  • Terrasse 60 m2
  • Terrain 181 m2
  • 3 salles de bain

Caractéristiques Générales

  • Piscine particulière
  • Place parking
  • Année de construction 2025
  • Certificat énergétique :
    Exempter
Annonce: 29552000003338

Lieu

El Alamillo Calle Embarcación Antina II

Naviguez sur la carte en cliquant dessus
375.000 € Prix de l´annonce
1.842 €/m2€/m2 distrito
3.178 €/m2€/m2 de l´annonce
Combien seriez-vous disposé à payer?
Voir évolution €/m2 dans Mazarrón (Puerto de Mazarrón)
Nous vous prévenons lorsque nous aurons une annonce comme celle-ci ? Créez votre alerte et nous vous préviendrons par courrier électronique dès qu´il y aura de nouvelles annonces ou lorsqu´elles seront modifiées
 

Contacter BLUE MED INVEST

Référence de l´annonce habitaclia/VILLASANTINAS:

Vous verrez le numéro de téléphone après que vous ayez envoyé vos coordonnées à l´annonceur pour qu´il puisse vous répondre.
Le numéro de téléphone s´affichera après avoir contacté
Envoi en cours…