Visite virtuelle
Évaluation sauvegardée !
Vous serrez le seul/la seule à le voir
Commentaire sauvegardé !
Ajoutez votre évaluation et/ou un commentaire pour cette annonce. Vous seul(e) le verrez

Chalet avec chauffage parking piscine dans Montañar-El Arenal Xàbia

  • 400 m2
  • 5 hab.
  • 6 salles de bain
  • 6.250 €/m2

Un enclave de lujo junto al mar descubra Villa Arenal, una joya contemporánea en la Playa del Arenal de Jávea

Un enclave de lujo junto al mar: descubra Villa Arenal, una joya contemporánea en la Playa del Arenal de Jávea

Presentamos Villa Arenal, una exclusiva villa de reciente construcción con vistas al mar, ubicada a escasos metros de la prestigiosa Playa del Arenal, en Jávea. Situada en una urbanización de alto nivel, con todos los servicios en funcionamiento, esta propiedad ofrece una combinación perfecta entre privacidad, confort, amplitud y una luminosidad excepcional en todas sus estancias, además de vistas privilegiadas al mar Mediterráneo y al majestuoso Montgó.

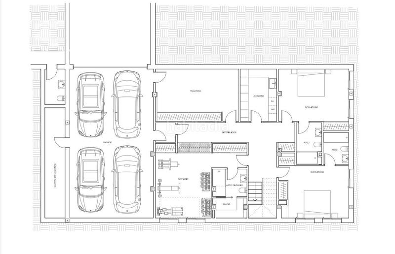
Distribuida en tres plantas y con dos accesos desde diferentes niveles de calle, Villa Arenal ha sido diseñada pensando en la comodidad y el estilo de vida moderno. En la planta inferior se encuentra un amplio garaje con capacidad para varios vehículos y acceso mediante puerta eléctrica, cuarto técnico, aseo de cortesía, además de dos dormitorios con baños en suite, gimnasio con baño completo, zona de lavadero y trastero.

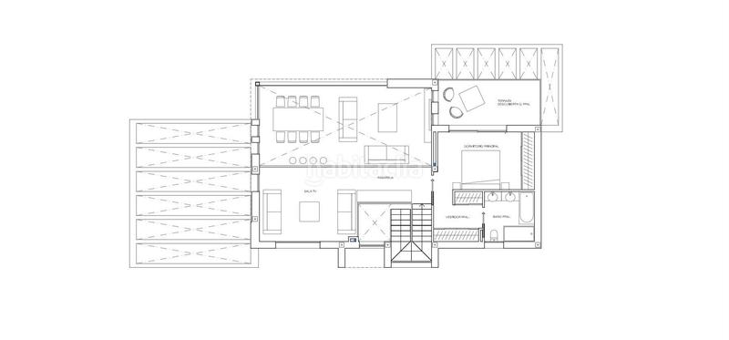
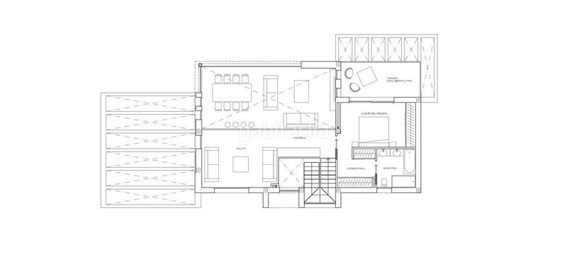
La planta principal alberga un amplio salón-comedor con cocina americana totalmente equipada, que se abre a una elegante terraza junto a la piscina y a un cuidado jardín con sistema de riego automático. En esta planta también se ubican dos dormitorios dobles con baños en suite, un aseo de cortesía y, en el exterior, una zona de aparcamiento con capacidad para dos vehículos junto al acceso principal.

En la planta superior se encuentra el dormitorio principal, que dispone de vestidor, baño en suite y un salón independiente con impresionantes vistas al mar, ideal como espacio privado de relajación.

Las calidades de construcción son excelentes y están orientadas a la eficiencia energética: calefacción por suelo radiante, aire acondicionado por conductos, carpintería de alta gama y suelos de gres porcelánico que combinan diseño y funcionalidad.

ATINA • Luxury Real Estate | Inmobiliaria en Jávea, Spain
Especialistas en propiedades de lujo en la Costa Blanca: villas exclusivas, chalets, adosados, apartamentos en primera línea de playa.
JÁVEA • Costa Blanca










dernière modification

Distribution

  • 5 Chambres
  • Surface 400 m2
  • Terrasse 100 m2
  • Terrain 1001 m2
  • 6 salles de bain
  • débarras

Caractéristiques Générales

  • Chauffage
  • Piscine particulière
  • Place parking
  • Climatisation
  • Année de construction 2022
  • À proximité des transports en commun
  • Certificat énergétique :
    Consumo:
    G
    999 kW h m2 / año
    Emisiones:
    G
    999 kg CO2 m2 / año
Annonce: 8946002550372

Lieu

Montañar-El Arenal Calle Arenal

Naviguez sur la carte en cliquant dessus
2.500.000 € Prix de l´annonce
3.676 €/m2€/m2 población
6.250 €/m2€/m2 de l´annonce
Combien seriez-vous disposé à payer?
Voir évolution €/m2 dans Xàbia
Nous vous prévenons lorsque nous aurons une annonce comme celle-ci ? Créez votre alerte et nous vous préviendrons par courrier électronique dès qu´il y aura de nouvelles annonces ou lorsqu´elles seront modifiées
 

Contacter ATINA INMOBILIARIA

Référence de l´annonce habitaclia/CH-2931:

Vous verrez le numéro de téléphone après que vous ayez envoyé vos coordonnées à l´annonceur pour qu´il puisse vous répondre.
Le numéro de téléphone s´affichera après avoir contacté
Envoi en cours…