Visite virtuelle
Évaluation sauvegardée !
Vous serrez le seul/la seule à le voir
Commentaire sauvegardé !
Ajoutez votre évaluation et/ou un commentaire pour cette annonce. Vous seul(e) le verrez

Duplex avec chauffage dans Casco Antiguo Majadahonda

  • 215 m2
  • 5 hab.
  • 4 salles de bain
  • 3.535 €/m2

IMPRESIONANTE DUPLEX CON 5 DORMITORIOS

InmoElite presenta en exclusiva un IMPRESIONANTE DUPLEX CON 5 DORMITORIOS
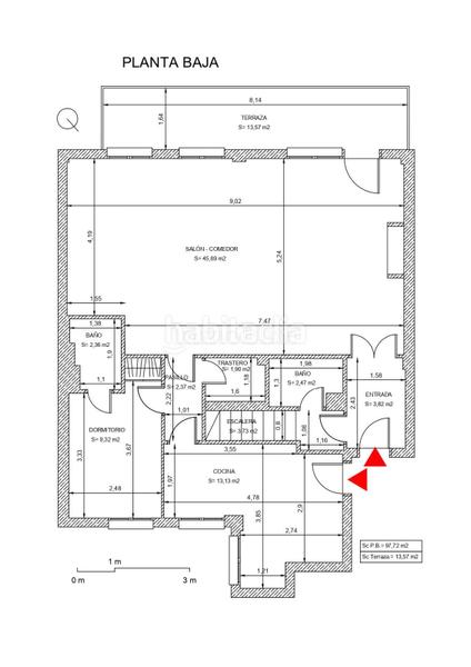
Ubicado en la zona Centro, con 215 m² construidos, dispone de cinco habitaciones, tres cuartos de baño y un aseo, en un edificio de tres plantas con ascensor. La vivienda incorpora calefacción de gas natural, armarios empotrados, cocina amueblada y chimenea, además de alarma interior con videovigilancia. Con su distribución en dos plantas, se consigue una separación óptima entre áreas sociales y dormitorios, optimizando privacidad y convivencia.
La planta baja presenta un gran salón-comedor con chimenea y amplios ventanales que permiten la entrada de luz natural. Desde el salón se accede a una terraza equipada con toldos motorizados, ideal para disfrutar de zonas exteriores sin perder intimidad. La cocina, de diseño moderno, cuenta con mobiliario contemporáneo y una cocina de inducción, optimizando los espacios para la convivencia diaria. En esta planta se ubica además un aseo de cortesía y una suite con cuarto de baño con plato de ducha, aportando comodidad adicional en áreas de uso frecuente. Los acabados equilibran funcionalidad y estética, con pavimentos y carpintería en tono madera que aportan calidez y continuidad.
La planta alta alberga una amplia suite principal con cuarto de baño con bañera y aire acondicionado, creando un refugio privado para los propietarios. Completan la distribución tres dormitorios de buen tamaño, uno de ellos con vestidor, y un segundo cuarto de baño de uso común para estos dormitorios. El diseño aprovecha al máximo la luz natural y ofrece distribución clara entre zonas de descanso y de uso diario. Cada habitación cuenta con soluciones de almacenamiento y acabados consistentes para mantener el orden sin sacrificar estilo.
La vivienda se acompaña de calefacción central con contador individual que facilita un uso diario eficiente y agradable.
Tambien es posible adquirir dos plazas de garaje en venta o alquiler.
La ubicación en la zona Centro de Majadahonda ofrece servicios cercanos, comercios y acceso a transporte público, facilitando la movilidad y la vida diaria. Con conserje y puerta blindada, la seguridad y el confort se unen para una experiencia de uso práctico y fiable. Si buscas un inmueble amplio, bien conservado y preparado para familias o para quienes requieren múltiples estancias de trabajo y ocio, esta opción merece una visita. Contáctanos para coordinar una visita y conocer de cerca cada detalle de esta oportunidad.

dernière modification

Distribution

  • 5 Chambres
  • Surface 215 m2
  • 4 salles de bain
  • Cuisine Type Office: No

Caractéristiques Générales

  • Chauffage
  • Sans place parking
  • Climatisation
  • Étage numéro 3
  • Année de construction 1977
  • Certificat énergétique :
    Consumo:
    G
    999 kW h m2 / año
    Emisiones:
    G
    999 kg CO2 m2 / año

Équipement communautaire

  • Ascenseur
Annonce: 15483000001138

Lieu

Casco Antiguo San Isidro

Naviguez sur la carte en cliquant dessus
760.000 € Prix de l´annonce
4.591 €/m2€/m2 población
3.535 €/m2€/m2 de l´annonce
23% moins cher que la moyenne*
Combien seriez-vous disposé à payer?
Voir évolution €/m2 dans Majadahonda
Nous vous prévenons lorsque nous aurons une annonce comme celle-ci ? Créez votre alerte et nous vous préviendrons par courrier électronique dès qu´il y aura de nouvelles annonces ou lorsqu´elles seront modifiées
 

Contacter INMOELITE

Référence de l´annonce habitaclia/2937:

Vous verrez le numéro de téléphone après que vous ayez envoyé vos coordonnées à l´annonceur pour qu´il puisse vous répondre.
Le numéro de téléphone s´affichera après avoir contacté
Envoi en cours…