Évaluation sauvegardée !
Vous serrez le seul/la seule à le voir
Commentaire sauvegardé !
Ajoutez votre évaluation et/ou un commentaire pour cette annonce. Vous seul(e) le verrez

Duplex avec chauffage parking piscine dans Cabopino - Artola Marbella

  • 197 m2
  • 4 hab.
  • 3 salles de bain
  • 4.310 €/m2

Dúplex de 4 dormitorios en Artola

Bienvenido a este impresionante apartamento en planta baja en el prestigioso complejo Artola Homes, que ofrece cuatro dormitorios, tres baños y una extraordinaria sensación de amplitud distribuida en dos niveles. Perfectamente situado junto al campo de golf, la vivienda disfruta de vistas abiertas a los fairways, creando un entorno sereno y pintoresco para el día a día. La planta principal cuenta con un luminoso y amplio salón-comedor de concepto abierto, donde los grandes ventanales correderos se abren directamente a la terraza privada: el lugar ideal para relajarse y disfrutar de las espectaculares vistas al golf. La elegante cocina, totalmente equipada, combina estilo moderno con funcionalidad práctica, convirtiéndose en el corazón natural de la vivienda. En esta planta también se encuentra el elegante dormitorio principal con baño en suite y acceso directo a la terraza, además de otro dormitorio bien proporcionado con salida a un jardín privado, así como un segundo baño para invitados y familiares. La planta inferior se abre a una gran sala multifuncional, actualmente utilizada como sala de estar, pero con infinitas posibilidades: desde sala de juegos o cine en casa hasta un espacio de reunión familiar. En este nivel se ubican además dos dormitorios adicionales, junto con una tercera estancia que actualmente se usa como trastero, pero que fácilmente podría adaptarse como gimnasio, despacho o sala de aficiones. Un trastero más pequeño añade practicidad y mantiene los espacios de vida ordenados y funcionales. Diseñada con atención al detalle y acabada con materiales de alta calidad, esta propiedad combina la comodidad de vivir en planta baja con las generosas dimensiones de una verdadera vivienda familiar. Como parte de Artola Homes, los residentes disfrutan de magníficas zonas comunes que incluyen jardines paisajísticos, una gran piscina tipo infinity con piscina infantil independiente, parque infantil y aparcamiento seguro. Para el bienestar, el complejo también ofrece piscina cubierta, gimnasio moderno y spa, lo que convierte a la comunidad en un lugar tan relajante como práctico. Todo ello dentro de un entorno cerrado que garantiza tranquilidad y seguridad. Ubicada en una zona ideal, cerca de playas doradas, campos de golf, tiendas y restaurantes, Artola Homes también goza de la proximidad al encantador puerto de Cabopino, con su animado ambiente, excelentes restaurantes y uno de los puertos deportivos más pintorescos de la Costa del Sol. Ya sea como residencia permanente, refugio vacacional o inversión inteligente, este apartamento es una propiedad que realmente destaca.

dernière modification

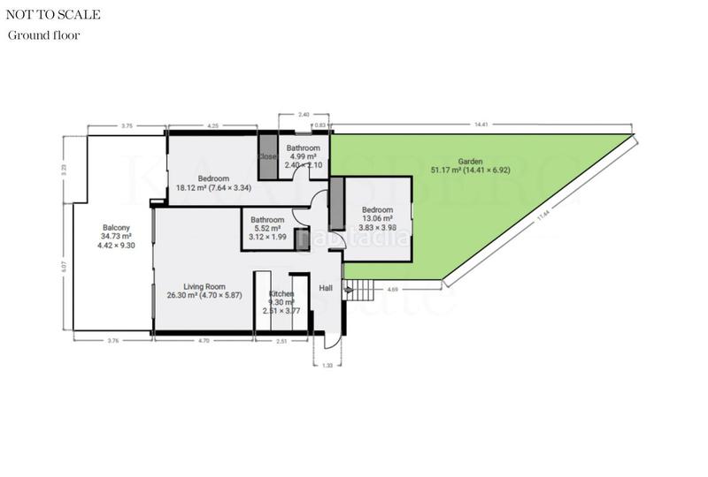
Distribution

  • 4 Chambres
  • Surface 197 m2
  • Terrasse 31 m2
  • 3 salles de bain

Caractéristiques Générales

  • Chauffage
  • Place parking
  • meublé
  • Climatisation
  • Certificat énergétique :
    Consumo:
    G
    999 kW h m2 / año
    Emisiones:
    G
    999 kg CO2 m2 / año

Équipement communautaire

  • Ascenseur
  • Piscine Communautaire
Annonce: 21938000012523

Lieu

Cabopino - Artola

Naviguez sur la carte en cliquant dessus
849.000 € Prix de l´annonce
4.578 €/m2€/m2 distrito
4.310 €/m2€/m2 de l´annonce
6% moins cher que la moyenne*
Voir évolution €/m2 dans Marbella (Elviria - Cabopino)
Nous vous prévenons lorsque nous aurons une annonce comme celle-ci ? Créez votre alerte et nous vous préviendrons par courrier électronique dès qu´il y aura de nouvelles annonces ou lorsqu´elles seront modifiées
 

Contacter ORANGESTATE FUENGIROLA

Référence de l´annonce habitaclia/R5164534:

Vous verrez le numéro de téléphone après que vous ayez envoyé vos coordonnées à l´annonceur pour qu´il puisse vous répondre.
Le numéro de téléphone s´affichera après avoir contacté
Envoi en cours…