Favorito y comentario
Édifice dans Gòtic Barcelona
Caractéristiques principales
- 768 m2
- 2.408 €/m2
Informations détaillées
EDIFICIO EN VENTA EN BARCELONA
PARA REHABILITAR CON DERECHO A VUELO
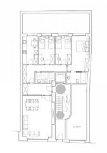
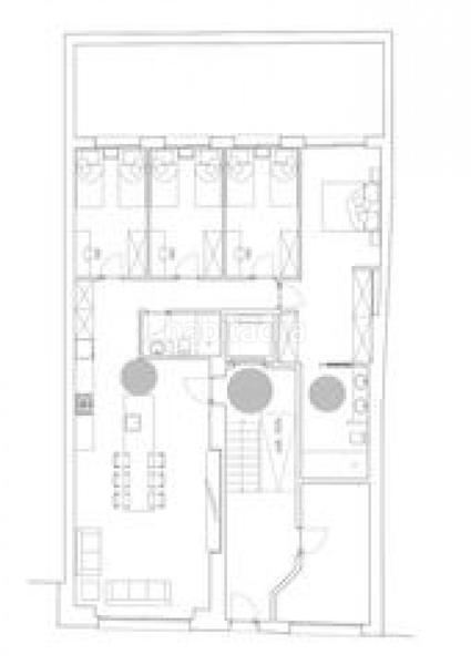
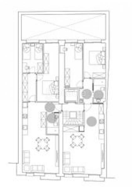
Edificio construido en 1900, que se compone de Planta Baja + Principal + 3 plantas piso.
Está hecha la división horizontal.
Presupuesto rehabilitación de 4 viviendas y una oficina, colocación ascensor, zonas comunes, fachada : 240.000€ + IVA
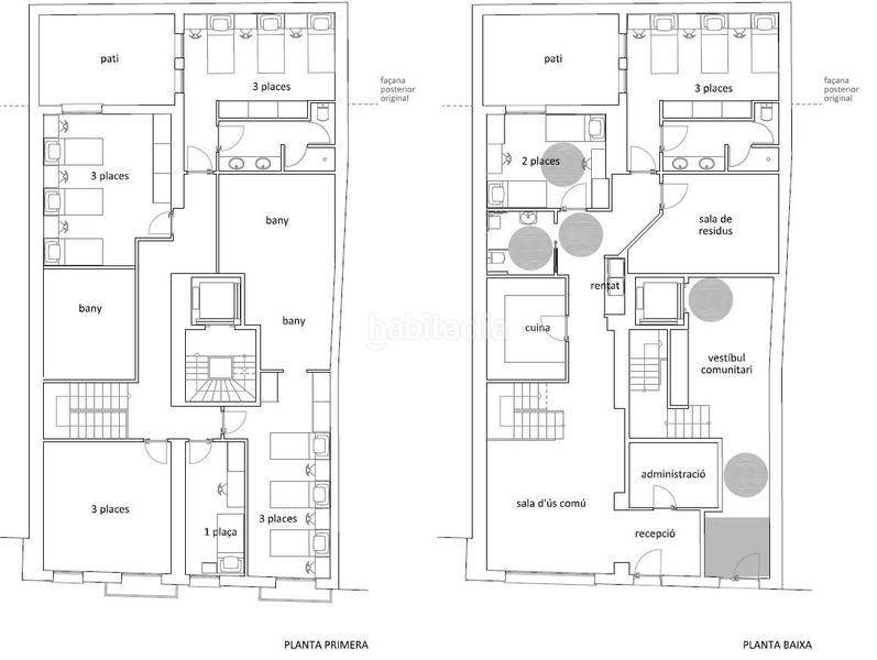
- REHABILITACION 1º
PLANTA BAJA + PLANTA ALTILLO + PLANTA PRIMERA - albergue social + 2 pisos, uno de ellos indefinido + remonta de 2 pisos.
- REHABILITACION 2º
PLANTA BAJA – locales + 4 pisos, uno de ellos indefinido + remonta de 2 pisos
La estructura es de muros de carga y forjados unidireccionales y la cubierta es plana transitable.
Está hecha la división horizontal
Anteproyecto presentado en el ayuntamiento a espera de licencia para cambio de uso de la planta baja, instalación de ascensor, fachada y portería.
Del Edificio hay 2 viviendas vendidas y 1 vivienda alquilada..
CONTACTAR PARA AMPLIAR INFORMACIÓN
dernière modification
Distribution
- Surface 768 m2
Caractéristiques Générales
- Année de construction 1969
Galerie
Lieu
Gòtic