Favorito y comentario
Vous serrez le seul/la seule à le voir
Local commercial dans calle nueve de octubre 5 dans Almoradí
Caractéristiques principales
- 116 m2
- 905 €/m2
Informations détaillées
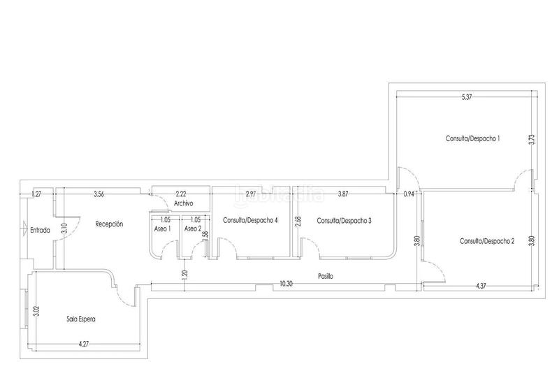
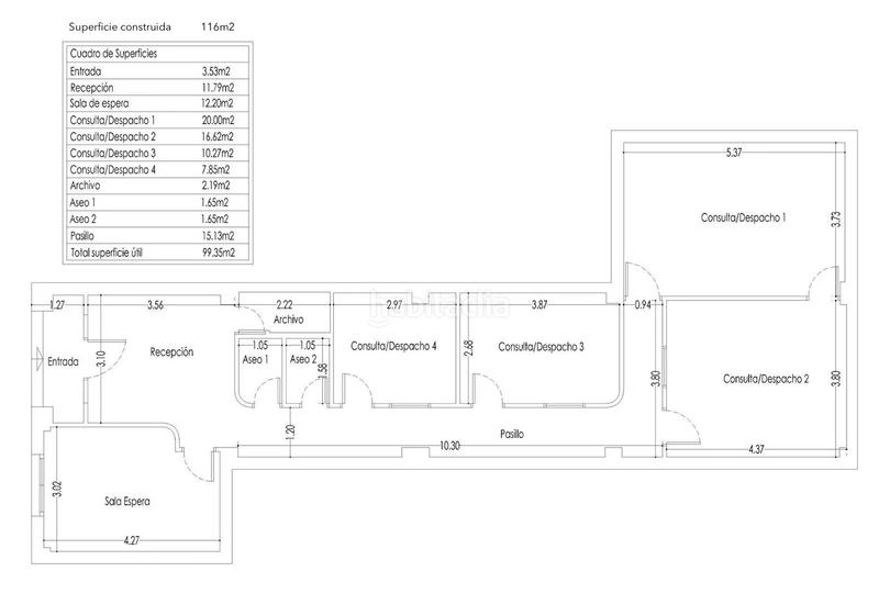
Venta Local clinica
En venta en el centro de Almoradí. usado como clínica, posibilidad de clinica veterinaria etc
Con 116m2, cuenta con cuatro despachos para consultas, una de ellas con agua corriente, sala de espera, recepción, dos aseos y trastero.
Reformado en los últimos 5 años, con un nuevo suelo e instalación de Aire Acondicionado.
En el centro de Almoradí, rodeado de negocios .
dernière modification
Distribution
- Surface 116 m2
Caractéristiques Générales
- Climatisation
- Année de construction 1983
Galerie
Lieu
Calle Nueve de Octubre 5
Naviguez sur la carte en cliquant dessus

habitaclia.com n´est nullement responsable des erreurs susceptibles d´être contenues dans les informations de ce plan. L´utilisateur sera responsable de l´utilisation qu´il fera desdites informations.
Nous vous prévenons lorsque nous aurons une annonce comme celle-ci ?
Créez votre alerte et nous vous préviendrons par courrier électronique dès qu´il y aura de nouvelles annonces ou lorsqu´elles seront modifiées