Favorito y comentario
Loft avec chauffage dans Sagunto - Edisol Córdoba
Caractéristiques principales
- 47 m2
- 1 hab.
- 1 salle de bain
- 1.949 €/m2
Informations détaillées
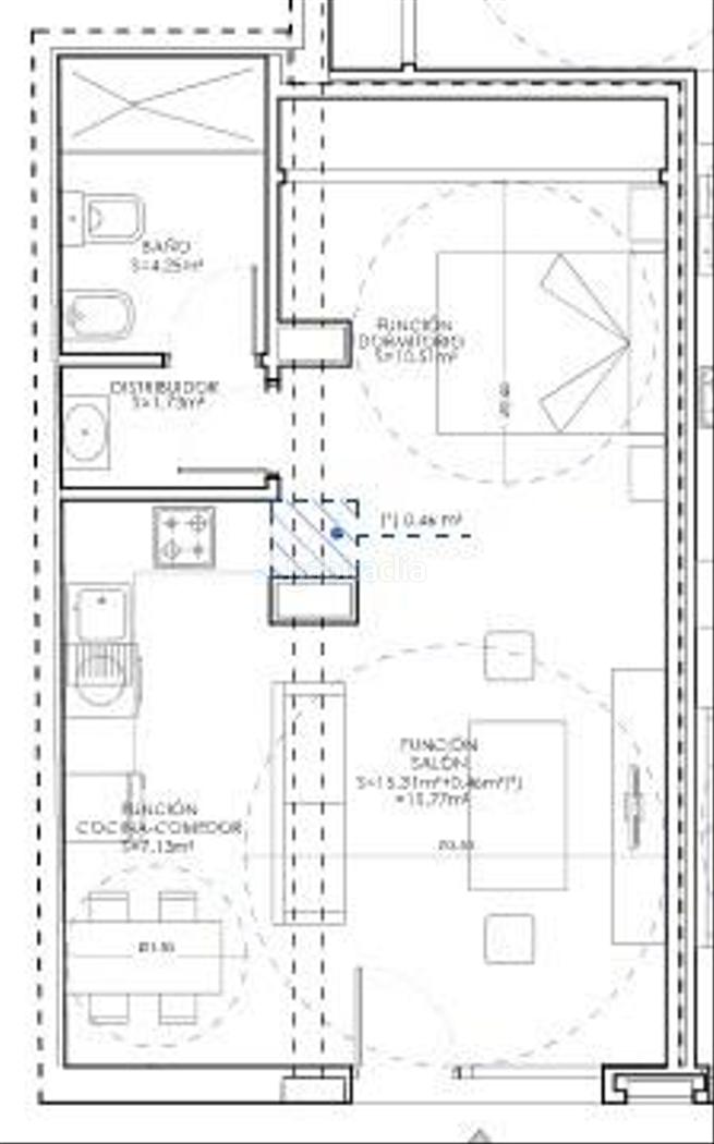
PARA INVERSORES. PROYECTO DE LOFT EN SAGUNTO
En la zona de Sagunto, a escasos metros de la Avda. Carlos III.
El proyecto de ejecución se encuentra en la fase de solicitada la licencia de obras en urbanismo. Es por lo que sin poder afirmar con total seguridad la fecha de obtención de licencia para poder comenzar la ejecución material, estimamos entre 8 y 10 meses, más 4 meses de obra, estaríamos hablando de fecha estimada de entrega y finalización en Diciembre 2025.
Para optar a la compra de este loft, se propone al inversor los siguiente forma de pago:
- 30% del PVP en el momento inicial (firma de contrato de ARRAS).
- 30% del PVP en el momento del inicio de las obras.
- 40% restante del PVP en el momento de la entrega de la vivienda.
La vivienda se entrega con la cocina amueblada con electrodomésticos. El resto del mobiliario incluido en el plano adjunto no está incluido en el precio, podría ofrecerse en presupuesto independiente. Los metros son aproximados por estar en fase de proyecto y pueden sufrir modificaciones.
Cabe la posibilidad de “entrega llave en mano”, esto consiste en la posibilidad de entregar al inversor las viviendas amuebladas, arrendadas (con seguro “Alquiler seguro”) y con una rentabilidad del 7,10 % aproximadamente.
El comprador tendrá un coste adicional de 3.600€ más impuestos, por el servicio de gestión, asesoramiento y formalización del proceso de compra, más el 10 % de IVA.
INFORMACIÓN ADICIONAL. Para cumplir con la normativa vigente tenemos a disposición del cliente el Documento de Información Abreviada D. I. A. Los precios indicados pueden sufrir alteraciones sin previo aviso. Los GASTOS DE LA COMPRA serán según ley (Notaria, Registro e Impuestos) y no están incluidos en el precio señalado.
dernière modification
Distribution
- 1 chambre
- Surface 47 m2
- 1 salle de bain
Caractéristiques Générales
- Chauffage
- Climatisation
- Année de construction 2024
- À proximité des transports en commun
- Exempter
Galerie
Lieu
Sagunto - Edisol Calle del Platero Pedro de Bares
