Évaluation sauvegardée !
Vous serrez le seul/la seule à le voir
Commentaire sauvegardé !
Ajoutez votre évaluation et/ou un commentaire pour cette annonce. Vous seul(e) le verrez

Maison 255m2 avec chauffage parking dans Canillo Canillo

  • depuis 255 m2
  • 4 hab.
  • 3 salles de bain
  • 4.902 €/m2
TERRA LLARGA
Appartient à la promotion

TERRA LLARGA

Esta promoción tiene 3 tipos de logements Voir promotion

Promoción de 8 casas adosadas en construcción en venta, situadas en el centro de la parroquia de Canillo.
Se encuentran en una de las zonas más prestigiosas, tranquilas y bonitas de la población, cerca de todos los servicios comunales, del Palacio de Hielo y del telecabina. Se trata de ocho casas con acabados de calidad, con unos diseños modernos y elegantes, rodeadas de naturaleza para los amantes de la montaña, con unas magníficas vistas panorámicas y sol durante todo el día.
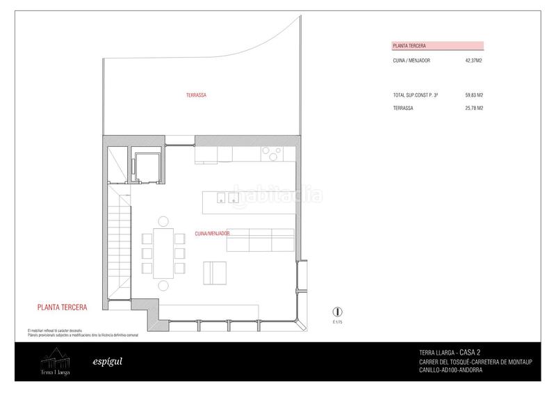
Planta baja con un gran parking para dos coches y una acogedora zona de vestíbulo. En la primera planta, dos amplios dormitorios dobles, un baño completo y un lavadero Segunda planta, magnífico dormitorio de tipo suite con baño completo, un dormitorio y un baño completo. Tercera planta, grande y luminoso salón-comedor con cocina abierta y con salida a la espectacular terraza. Los pavimentos son de gres imitación madera de roble. Las cocinas están equipadas con muebles acabados en laminados de color madera, azulejos y frentes de trabajos de mármol blanco reconfigurado, isla central y campana extractora de recirculación de filtro de carbón activo. Los baños están. En cuanto a la carpintería interior, las puertas interiores están acabadas en color madera. Los armarios empotrados con tiradores verticales refundidos en hojas, equipados con buques de cajones, barras de colgar y estantes según dimensiones, están acabados en color madera. Puertas corredizas ocultas en las paredes con sistema de cajones y guías. La calefacción por suelo radiante y el sistema de agua caliente, están alimentados mediante sistema de aerotermia.
Son unas propiedades idílicas para aquellos que buscan confort en una de las zonas más cotizadas del Principado de Andorra.
Forma de pago: · 25.000€ de reserva. · 25% + IGI (menos 25.000€ de reserva) Contrato de arras - junio 2024. · 25% + IGI Cubierta - junio 2025. · 50% + IGI Escritura pública - junio 2026.
Inicio de obra - junio 2024. · Finalización de obra - junio 202

dernière modification

Distribution

  • 4 Chambres
  • Surface 255 m2
  • 3 salles de bain
  • Cuisine Type Office: No

Caractéristiques Générales

  • Chauffage
  • Place parking
  • Sans climatisation
  • Certificat énergétique :
    Consumo:
    G
    999 kW h m2 / año
    Emisiones:
    G
    999 kg CO2 m2 / año
Annonce: 9706003069565

Lieu

Canillo Carrer del Tosqué

Naviguez sur la carte en cliquant dessus
1.250.000 € Prix de l´annonce
5.819 €/m2€/m2 población
4.902 €/m2€/m2 de l´annonce
16% moins cher que la moyenne*
Voir évolution €/m2 dans Canillo
Nous vous prévenons lorsque nous aurons une annonce comme celle-ci ? Créez votre alerte et nous vous préviendrons par courrier électronique dès qu´il y aura de nouvelles annonces ou lorsqu´elles seront modifiées
 

Appartient à la promotion TERRA LLARGA

Canillo - Carrer del Tosqué
Promoción TERRA LLARGA Canillo - Carrer del Tosqué depuis 1.250.000 € Voir promotion
Autres types de logement de cette promotion

Contacter IMMOBILIÀRIA SUPERIOR

Référence de l´annonce habitaclia/13744:

Vous verrez le numéro de téléphone après que vous ayez envoyé vos coordonnées à l´annonceur pour qu´il puisse vous répondre.
Le numéro de téléphone s´affichera après avoir contacté
Envoi en cours…