Évaluation sauvegardée !
Vous serrez le seul/la seule à le voir
Commentaire sauvegardé !
Ajoutez votre évaluation et/ou un commentaire pour cette annonce. Vous seul(e) le verrez

Maison avec piscine dans Desert Spring Golf Cuevas del Almanzora

  • 171 m2
  • 4 hab.
  • 3 salles de bain
  • 5.556 €/m2

Lujosas casas de 3 y 4 dormitorios de inspiración mediterránea con piscina en un prestigioso complejo de Almería
Estas casas de estilo mediterráneo con piscina privada se encuentran en un exclusivo complejo cerca de Playas de Vera en Almería, España. Playas de Vera es una hermosa y extensa playa conocida por su alta calidad. La playa se extiende desde los límites de la localidad de Garrucha.
Situadas a poca distancia de todos los servicios de la zona, estas amplias casas ofrecen un cómodo acceso a diversas instalaciones. Se encuentran a 5 km del centro de la ciudad de Vera, donde se puede encontrar una amplia gama de servicios, incluyendo un supermercado británico. La playa está a unos 7 km, y el aeropuerto internacional de Almería se encuentra a 90 km del complejo.
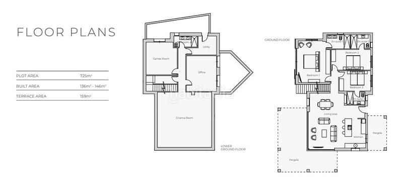
Las casas para comprar en Almería se construyen en parcelas de entre 725 y 775 metros cuadrados. Los compradores tienen la opción de incluir en su casa una piscina privada y aparcamiento exterior cerrado.
En el interior, las casas presentan una mezcla de estilo mediterráneo tradicional con elementos modernos, creando un interior ultramoderno y luminoso. En la planta baja, encontrará tres dormitorios dobles con armarios empotrados y baños en suite equipados con duchas. También hay una cocina y un comedor de planta abierta, así como un amplio salón con grandes ventanales de estilo francés que permiten que entre mucha luz natural en la casa.
Además, las casas tienen sótanos que ofrecen espacio y comodidades adicionales. Estos sótanos incluyen una sala de juegos, un despacho, un lavadero, una gran sala de cine y un cuarto de baño con ducha.
Tenga en cuenta que la construcción de la casa comenzará 18 meses después del pago inicial. LEI-00008

dernière modification

Distribution

  • 4 Chambres
  • Surface 171 m2
  • Terrain 775 m2
  • 3 salles de bain
  • débarras

Caractéristiques Générales

  • Piscine particulière
  • Climatisation
  • Certificat énergétique :
    Consumo:
    G
    999 kW h m2 / año
    Emisiones:
    G
    999 kg CO2 m2 / año
Annonce: 55825000001502

Lieu

Desert Spring Golf

Naviguez sur la carte en cliquant dessus
950.000 € Prix de l´annonce
1.835 €/m2€/m2 población
5.556 €/m2€/m2 de l´annonce
Voir évolution €/m2 dans Cuevas del Almanzora
Nous vous prévenons lorsque nous aurons une annonce comme celle-ci ? Créez votre alerte et nous vous préviendrons par courrier électronique dès qu´il y aura de nouvelles annonces ou lorsqu´elles seront modifiées
 

Contacter TEKCE

Référence de l´annonce habitaclia/LEI-00008-4-DetachedVilla:

Vous verrez le numéro de téléphone après que vous ayez envoyé vos coordonnées à l´annonceur pour qu´il puisse vous répondre.
Le numéro de téléphone s´affichera après avoir contacté
Envoi en cours…