Évaluation sauvegardée !
Vous serrez le seul/la seule à le voir
Commentaire sauvegardé !
Ajoutez votre évaluation et/ou un commentaire pour cette annonce. Vous seul(e) le verrez

Maison dans Centro Jerez de la Frontera

  • 526 m2
  • 8 hab.
  • 2 salles de bain
  • 597 €/m2

Casa amplia con historia y grandes posibilidades en Zona Centro San Miguel

Casa con historia y grandes posibilidades en Zona Centro – San Miguel

Encantadora casa ubicada a pocos metros de la emblemática Iglesia de San Miguel, en pleno corazón de Jerez. Construida en el año 1900, esta vivienda fue objeto de una importante renovación en 2003, durante la cual se puso en valor un elemento único: un horno centenario perteneciente a la antigua Panadería Santa Clara. Este detalle singular aporta carácter y autenticidad a la propiedad, convirtiéndola en una oportunidad ideal para quienes buscan un hogar con historia y encanto.

La vivienda se asienta sobre una amplia parcela de 347 m² y cuenta con estancias espaciosas, varios patios y múltiples posibilidades de redistribución. Además, gracias a su configuración y edificabilidad, existe la posibilidad de construir una tercera planta, lo que amplía considerablemente su potencial.

Aunque la casa necesita reformas, dispone de mejoras en fontanería y electricidad realizadas con posterioridad a la reforma principal.

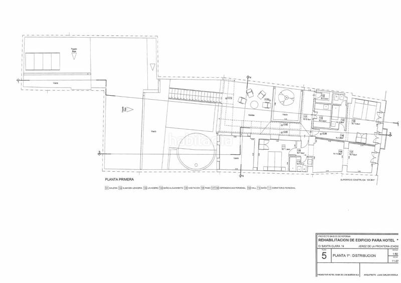
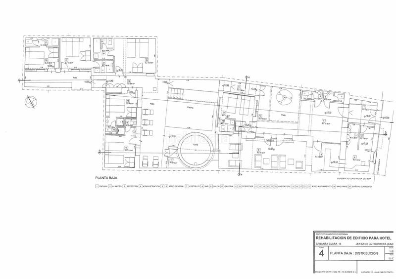
Como valor añadido, se conserva un proyecto de Hotel con encanto del año 2003, con planos disponibles que pueden servir de referencia o inspiración al nuevo propietario.

En cumplimiento del Decreto 218/2005 del 11 de Octubre, se informa al cliente que los gastos notariales, registrales, ITP, honorarios de intermediación, gastos financieros y otros gastos inherentes a la compraventa no están incluidos en el precio.

dernière modification

Distribution

  • 8 Chambres
  • Surface 526 m2
  • 2 salles de bain
  • débarras

Caractéristiques Générales

  • Certificat énergétique :
    Consumo:
    G
    999 kW h m2 / año
    Emisiones:
    G
    999 kg CO2 m2 / año
Annonce: 23285000001657

Lieu

Centro

Naviguez sur la carte en cliquant dessus
314.000 € Prix de l´annonce
1.947 €/m2€/m2 distrito
597 €/m2€/m2 de l´annonce
69% moins cher que la moyenne*
Voir évolution €/m2 dans Jerez de la Frontera (Centro)
Nous vous prévenons lorsque nous aurons une annonce comme celle-ci ? Créez votre alerte et nous vous préviendrons par courrier électronique dès qu´il y aura de nouvelles annonces ou lorsqu´elles seront modifiées
 

Contacter INMOBILIARIA ZAMBRANO

Référence de l´annonce habitaclia/Z9034:

Vous verrez le numéro de téléphone après que vous ayez envoyé vos coordonnées à l´annonceur pour qu´il puisse vous répondre.
Le numéro de téléphone s´affichera après avoir contacté
Envoi en cours…