Évaluation sauvegardée !
Vous serrez le seul/la seule à le voir
Commentaire sauvegardé !
Ajoutez votre évaluation et/ou un commentaire pour cette annonce. Vous seul(e) le verrez

Maison avec parking piscine dans Los Urrutias Cartagena

  • 120 m2
  • 3 hab.
  • 3 salles de bain
  • 3.200 €/m2

VILLAS DE OBRA NUEVA EN LOS URRUTIAS, MURCIA

Villa moderna de nueva construcción a 200m de la playa. El luminosa villa de una planta dispone de 2 dormitorios y 2 baños.

El salón da acceso a la terraza con piscina privada de 6m x 3m.

La cocina abierta está totalmente equipada con electrodomésticos y menaje estándar.

La villa también dispone de un sistema de aire acondicionado (frío/calor) y viene completamente amueblada con cortinas y ropa de cama.

El equilibrio entre precio, calidad y ubicación hace que la casa sea ideal como inversión para alquilar.

OBLIGATORIO PONER EN ALQUILER VACACIONAL!

Este proyecto a pequeña escala es la combinación ideal de propiedad vacacional y de inversión. Si busca tranquilidad y quiere estar a menos de 200 metros de la playa y del paseo marítimo, esta es su ubicación.

El proyecto está situado en Estrella de Mar, una urbanización idílica a las afueras del tranquilo pueblo pesquero de Los Urrutias, en el Mar Menor.
En esta urbanización encontrará varios restaurantes, un supermercado y bares. Y todos los demás servicios están disponibles en las inmediaciones (iglesia, farmacia, periódicos y mucho más).

Urbanización situada a 43 km de Murcia, 16 km de Cartagena y a sólo 10 minutos en coche de Los Alcázares, un típico pueblo costero español donde hay actividad tanto en invierno como en verano.

Los Urrutias es un municipio de la comunidad autónoma de Murcia y está situado en la Costa Cálida con vistas a La Manga, la estrecha franja de tierra (22 km de longitud y hasta 1,5 km de anchura) que separa el Mar Menor de las aguas abiertas del Mediterráneo.

dernière modification

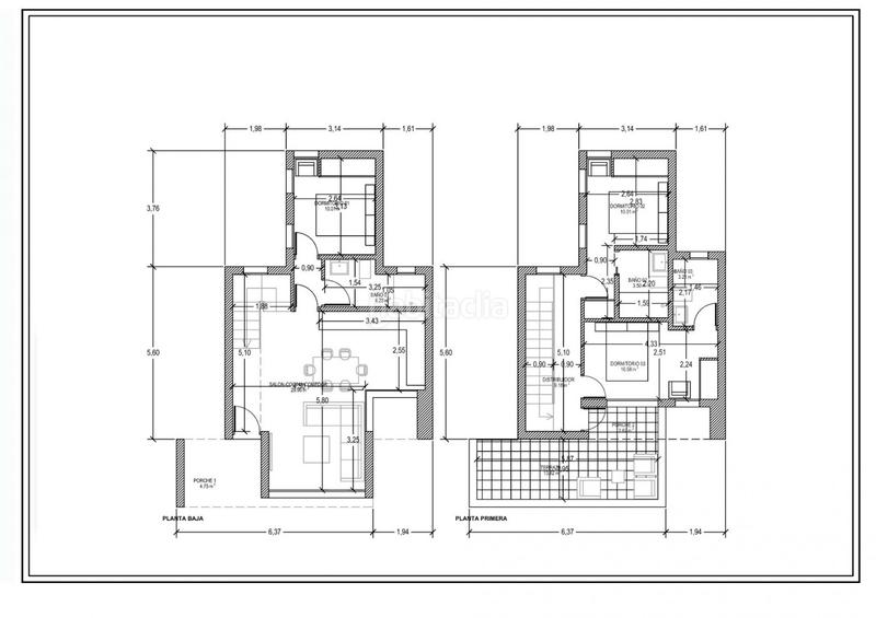
Distribution

  • 3 Chambres
  • Surface 120 m2
  • Terrain 195 m2
  • 3 salles de bain

Caractéristiques Générales

  • Piscine particulière
  • Place parking
  • Certificat énergétique :
    Consumo:
    G
    999 kW h m2 / año
    Emisiones:
    G
    999 kg CO2 m2 / año
Annonce: 39175000036917

Lieu

Los Urrutias

Naviguez sur la carte en cliquant dessus
384.000 € Prix de l´annonce
2.439 €/m2€/m2 distrito
3.200 €/m2€/m2 de l´annonce
Combien seriez-vous disposé à payer?
Voir évolution €/m2 dans Cartagena (Mar Menor de Cartagena - Cabo de Palos)
Nous vous prévenons lorsque nous aurons une annonce comme celle-ci ? Créez votre alerte et nous vous préviendrons par courrier électronique dès qu´il y aura de nouvelles annonces ou lorsqu´elles seront modifiées
 

Contacter MANSIONS.ES

Référence de l´annonce habitaclia/MRG78281L:

Vous verrez le numéro de téléphone après que vous ayez envoyé vos coordonnées à l´annonceur pour qu´il puisse vous répondre.
Le numéro de téléphone s´affichera après avoir contacté
Envoi en cours…