Visite virtuelle
Évaluation sauvegardée !
Vous serrez le seul/la seule à le voir
Commentaire sauvegardé !
Ajoutez votre évaluation et/ou un commentaire pour cette annonce. Vous seul(e) le verrez

Maison avec chauffage parking piscine dans Urbanitzacions de Llevant Tarragona

  • 591 m2
  • 10 hab.
  • 7 salles de bain
  • 2.115 €/m2

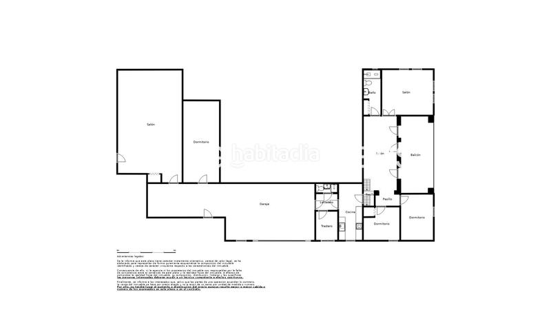
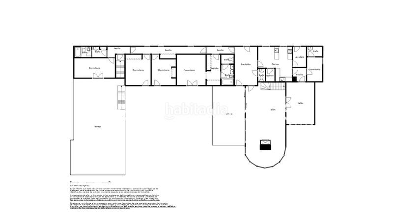
Casa Unifamiliar con Vistas Panorámicas y Casa de Invitados.

Engel & Völkers presenta esta magnífica casa, situada en una ubicación privilegiada, que nos ofrece unas vistas panorámicas al mar, rodeada de un paisaje natural que transforma cada rincón en un lugar único. Al entrar nos encontramos con un recibidor luminoso y espacioso, destacando por su diseño elegante y acogedor. El salón principal, de amplias dimensiones, cuenta con una cálida chimenea que crea el ambiente perfecto para disfrutar en familia. Desde aquí, se accede a un encantador porche donde relajarse mientras se contemplan las vistas impresionantes que ofrece la propiedad. Con 6 habitaciones y 4 baños, la casa está diseñada para ofrecer la máxima comodidad y privacidad. Las dos grandes terrazas, con vistas directas al mar, son ideales para disfrutar de los amaneceres y atardeceres en un entorno incomparable.El sótano de la propiedad alberga una bodega, ideal para los aficionados al vino, una amplia sala de juegos y una habitación tipo taller, como zona de trabajo y herramientas. Para los visitantes, hay una casa de invitados completamente independiente, que consta de 2 habitaciones, un baño y un porche, ofreciendo privacidad y confort. Además cada casa cuenta con una habitación de servicio y baño propio.
El jardín de 2000 metros cuadrados es un verdadero oasis, con zonas verdes y espacios para el disfrute familiar. En el exterior también se encuentra una espectacular piscina, perfecta para refrescarse durante el verano, y una cancha de batmington para los amantes del deporte.Esta propiedad, que combina lujo, funcionalidad y vistas inigualables, es el hogar ideal para aquellos que buscan vivir en un lugar tranquilo y exclusivo, sin renunciar a ninguna de las comodidades modernas y a 10 minutos de la ciudad.
La casa se encuentra en una urbanización rodeada de naturaleza, a escasos minutos de Tarragona centro y, junto a uno de los mejores barrios de Tarragona, donde podrás encontrar todos los servicios, supermercados, farmacias, médicos, colegios, restauración, transporte público. La ciudad tiene como escaparate principal el Mar Mediterráneo, y posee una historia milenaria, Tarragona declarada Patrimonio de la Humanidad por la UNESCO. Se caracteriza por ser una ciudad tranquila, pero con todos los beneficios de una gran ciudad, desde Tarragona podrás hacer rutas gastronómicas ó algunos de los más importantes viñedos de Cataluña, con reconocido nombre a nivel mundial, hacer ecoturismo y turismo rural. Aquí también podrás disfrutar de un clima suave y con mucho sol durante todo el año, disfrutarás de importantes eventos culturales y apasionantes fiestas locales. Además, cuenta con comercios especializados, los principales servicios de salud, educación y transporte urbano, largas distancias, tren regional y de alta velocidad, puerto marítimo y deportivo, aeropuerto. La ciudad está conectada con las principales redes de carreteras, AP7, A7 y N340 a 58 minutos del aeropuerto de Barcelona.

dernière modification

Distribution

  • 10 Chambres
  • Surface 591 m2
  • Terrain 3911 m2
  • 7 salles de bain
  • débarras

Caractéristiques Générales

  • Chauffage
  • Piscine particulière
  • Place parking
  • Sans climatisation
  • Année de construction 1977
  • Certificat énergétique :
    Consumo:
    D
    102 kW h m2 / año
    Emisiones:
    D
    25 kg CO2 m2 / año
Annonce: 8166003803198

Lieu

Urbanitzacions de Llevant

Naviguez sur la carte en cliquant dessus
1.250.000 € Prix de l´annonce
1.832 €/m2€/m2 población
2.115 €/m2€/m2 de l´annonce
Voir évolution €/m2 dans Tarragona
Nous vous prévenons lorsque nous aurons une annonce comme celle-ci ? Créez votre alerte et nous vous préviendrons par courrier électronique dès qu´il y aura de nouvelles annonces ou lorsqu´elles seront modifiées
 

Contacter ENGEL & VOELKERS

Référence de l´annonce habitaclia/I-00YV04-W-02XF20:

Vous verrez le numéro de téléphone après que vous ayez envoyé vos coordonnées à l´annonceur pour qu´il puisse vous répondre.
Le numéro de téléphone s´affichera après avoir contacté
Envoi en cours…