Visite virtuelle
Évaluation sauvegardée !
Vous serrez le seul/la seule à le voir
Commentaire sauvegardé !
Ajoutez votre évaluation et/ou un commentaire pour cette annonce. Vous seul(e) le verrez

Maison jumelée avec cheminée parking dans Nucli Urbà Argentona

  • 262 m2
  • 3 hab.
  • 2 salles de bain
  • 1.718 €/m2

Casa de pueblo con encanto en el corazón de Argentona.

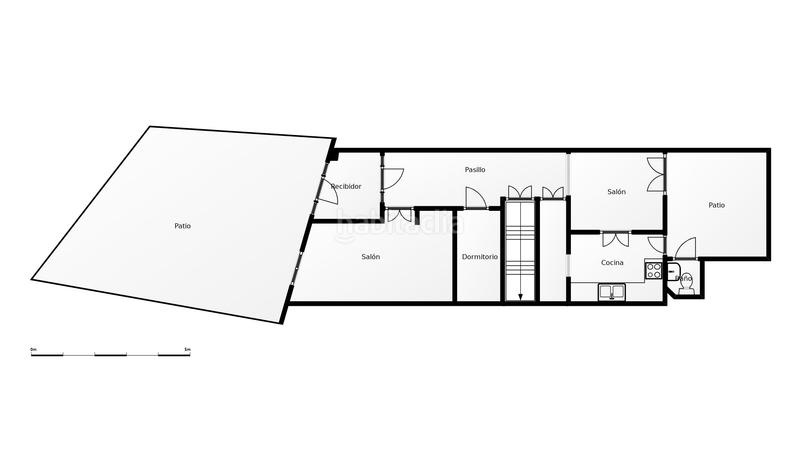
Ubicada en pleno centro de Argentona, en la Plaça de Vendre, esta casa de pueblo de 146 m² útiles, y una planta de alamacen de 116m², ofrece una excelente oportunidad para vivir en el centro de este bonito pueblo, con una mezcla perfecta de historia y comodidad. Con muchas posibilidades de actualización, esta vivienda permite a los compradores reformarla a su gusto, conservando sus características originales que le dan un carácter único.

Distribución y detalles:

Planta baja: Accede a una terraza con orientación sureste, que garantiza una excelente luminosidad natural. La casa cuenta con un dormitorio en esta planta, ideal para ser adaptado a tus necesidades. Además, un rincón trasero pequeño, pero lleno de encanto, puede convertirse en un espacio acogedor con algo de creatividad y gusto.

Planta superior: En esta planta encontrarás dos habitaciones dobles y un baño completo. Los techos altos en toda la casa proporcionan una sensación de amplitud y luminosidad.

Sótano: Un almacén histórico, utilizado antiguamente para la producción de vino, se encuentra en el sótano, brindando un toque único y lleno de carácter. También hay un garaje con acceso desde la calle lateral.

Estado de conservación:
La casa está muy bien conservada estructuralmente. Con una distribución versátil y techos altos que otorgan una gran sensación de espacio, esta vivienda tiene muchas posibilidades para ser reformada y adaptada a tus gustos personales, sin perder el encanto de sus detalles originales.

No dudes en solicitar una visita para conocer de primera mano todo lo que esta vivienda tiene para ofrecer. También puedes acceder a un tour virtual disponible en la misma publicación para ver más detalles de la propiedad.

Haz realidad tu hogar en el centro de Argentona
No dejes pasar la oportunidad de vivir en una casa única, llena de historia y con muchas posibilidades para convertirla en el hogar de tus sueños. ¡Ven a descubrir todo su potencial! Contáctanos para agendar una visita o acceder al tour virtual y empieza a imaginar cómo será tu nueva vida en una de las zonas más encantadoras de Argentona.

dernière modification

Distribution

  • 3 Chambres
  • Surface 262 m2
  • Terrasse 40 m2
  • Terrain 170 m2
  • 2 salles de bain
  • Cuisine Type Office: No

Caractéristiques Générales

  • Cheminée
  • Place parking
  • Sans climatisation
  • Année de construction 1915
  • À proximité des transports en commun
  • Certificat énergétique :
    Consumo:
    G
    999 kW h m2 / año
    Emisiones:
    G
    999 kg CO2 m2 / año
Annonce: 57097000000004

Lieu

Nucli Urbà

Naviguez sur la carte en cliquant dessus
450.000 € Prix de l´annonce
2.591 €/m2€/m2 población
1.718 €/m2€/m2 de l´annonce
34% moins cher que la moyenne*
Voir évolution €/m2 dans Argentona
Nous vous prévenons lorsque nous aurons une annonce comme celle-ci ? Créez votre alerte et nous vous préviendrons par courrier électronique dès qu´il y aura de nouvelles annonces ou lorsqu´elles seront modifiées
 

Contacter Propertly

Référence de l´annonce habitaclia/Plaça de vendre:

Vous verrez le numéro de téléphone après que vous ayez envoyé vos coordonnées à l´annonceur pour qu´il puisse vous répondre.
Le numéro de téléphone s´affichera après avoir contacté
Envoi en cours…