Évaluation sauvegardée !
Vous serrez le seul/la seule à le voir
Commentaire sauvegardé !
Ajoutez votre évaluation et/ou un commentaire pour cette annonce. Vous seul(e) le verrez

Mas avec chauffage parking piscine dans Casco Urbano Moraira

  • 460 m2
  • 4 hab.
  • 3 salles de bain
  • 3.902 €/m2

Descubra esta elegante villa de estilo mediterráneo, diseñada para ofrecer comodidad y privacidad en un entorno tranquilo de Moraira. La vivienda se desarrolla en tres plantas conectadas mediante una escalera interna, garantizando un flujo funcional entre los diferentes niveles.
En la planta principal, un amplio espacio abierto integra salón, comedor y cocina, creando un ambiente ideal para la vida familiar y el entretenimiento. La cocina está totalmente equipada e incluye una isla central, perfecta para cocinar y socializar al mismo tiempo. La propiedad cuenta con cuatro baños completos y un aseo de invitados, además de sótano y zona de lavadero, ofreciendo comodidad para toda la familia.
La villa dispone de aire acondicionado por conductos y calefacción central, asegurando confort durante todo el año. La entrada es privada, con puerta automática y acceso peatonal independiente con interfono, brindando seguridad y tranquilidad. En la misma planta principal se encuentra la piscina y una amplia terraza, ideales para disfrutar del sol mediterráneo y de momentos al aire libre.
Una propiedad ideal tanto como residencia permanente como casa de vacaciones, que combina espacio, confort y ubicación en una de las zonas más exclusivas de la Costa Blanca.

dernière modification

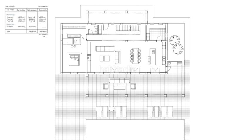
Distribution

  • 4 Chambres
  • Surface 460 m2
  • Terrain 13536 m2
  • 3 salles de bain

Caractéristiques Générales

  • Chauffage
  • Piscine particulière
  • Place parking
  • Climatisation
  • Certificat énergétique :
    Consumo:
    G
    999 kW h m2 / año
    Emisiones:
    G
    999 kg CO2 m2 / año
Annonce: 28548000002768

Lieu

Casco Urbano

Naviguez sur la carte en cliquant dessus
1.795.000 € Prix de l´annonce
4.311 €/m2€/m2 población
3.902 €/m2€/m2 de l´annonce
9% moins cher que la moyenne*
Combien seriez-vous disposé à payer?
Voir évolution €/m2 dans Moraira
Nous vous prévenons lorsque nous aurons une annonce comme celle-ci ? Créez votre alerte et nous vous préviendrons par courrier électronique dès qu´il y aura de nouvelles annonces ou lorsqu´elles seront modifiées
 

Contacter ARZUAGA INMOBILIAIRA

Référence de l´annonce habitaclia/AR56319:

Vous verrez le numéro de téléphone après que vous ayez envoyé vos coordonnées à l´annonceur pour qu´il puisse vous répondre.
Le numéro de téléphone s´affichera après avoir contacté
Envoi en cours…