Favorito y comentario
Mas avec chauffage parking dans Miraconcha Donostia - San Sebastián
Caractéristiques principales
- 277 m2
- 4 hab.
- 3 salles de bain
- 10.794 €/m2
Informations détaillées
La joya de la bahía de La Concha. Villa unifamiliar
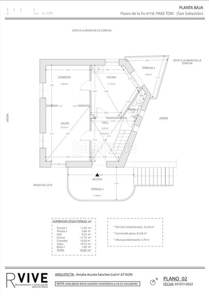
Descubre esta villa unifamiliar exenta, una auténtica joya ubicada en el prestigioso Paseo de la Fe en pleno corazón de Miraconcha, San Sebastián. Construida en 1957 actualmente situada en una urbanización diseñada por el renombrado arquitecto Peña Ganchegui, esta propiedad ofrece vistas incomparables a la Bahía de La Concha y un estilo de vida excepcional. Con una superficie total de 277 m² distribuidos en cuatro plantas de aproximadamente 45 m² útiles cada una, la villa combina un diseño distintivo con una ubicación envidiable.
La urbanización está equipada con un sistema de videovigilancia las 24 horas, garantizando la máxima seguridad. Además, cuenta con un ascensor que facilita un acceso directo y cómodo a Miraconcha. El acceso a la villa se realiza sin necesidad de atravesar el centro de la ciudad, asegurando una llegada rápida y sin complicaciones. También dispone de un garaje privado cerrado para un vehículo y una moto dentro de la urbanización, incluído en el precio.
En la planta principal, accesible mediante una escalera exterior, encontrará un amplio vestíbulo-distribuidor que da paso a un generoso salón-comedor y una cocina funcional con vistas al mar y acceso a una terraza, perfecta para disfrutar del entorno. Esta planta incluye un baño completo en el rellano de la escalera. En la primera planta se encuentran cuatro dormitorios y un baño completo, ofreciendo un espacio ideal para una familia o para recibir invitados.
La planta bajocubierta, actualmente no habilitada, presenta techos abuhardillados de gran altura y un gran potencial. Puede transformarse en un espectacular solárium, aprovechando las vistas panorámicas y la luz natural, creando así un espacio versátil para relajarse o entretenerse. Además, la villa dispone de una entrada independiente hacia la planta semisótano, que incluye un amplio txoko, un almacén y un baño adicional, proporcionando flexibilidad para almacenamiento o actividades recreativas.
A pesar de su antigüedad, la villa ha pasado recientemente la Inspección Técnica de Edificios (ITE) de forma totalmente satisfactoria, garantizando su buen estado estructural. Al no estar catalogada, ofrece la posibilidad de realizar reformas en la fachada y la cubierta, permitiendo abrir grandes ventanales para maximizar las vistas o adaptar el interior a sus preferencias. Se adjuntan fotos del estado actual y renders que muestran posibles transformaciones; estas imágenes son solo ilustrativas y no vinculantes.
No pierda la oportunidad de residir en una de las ubicaciones más codiciadas de San Sebastián. Contáctenos para obtener más información y para agendar una visita a esta impresionante villa, la auténtica joya de la Bahía de La Concha. ¡Descubra el hogar de sus sueños y disfrute de un estilo de vida inigualable!
Paseo de la Fe es una de las zonas más prestigiosas y buscadas de San Sebastián, ofreciendo un entorno residencial de lujo con unas vistas panorámicas inigualables de la Bahía de La Concha. Situado en una colina que domina el horizonte, este exclusivo barrio combina la elegancia de su arquitectura con la serenidad de su entorno natural.
Los residentes de Paseo de la Fe disfrutan de una ubicación privilegiada que proporciona acceso directo a la playa, ubicada a solo unos minutos a pie. La cercanía al mar permite disfrutar de relajantes paseos por la orilla y aprovechar las diversas actividades acuáticas que ofrece la bahía. Además, la zona está rodeada de espacios verdes, ideales para quienes buscan un estilo de vida activo y al aire libre.
dernière modification
Distribution
- 4 Chambres
- Surface 277 m2
- 3 salles de bain
- débarras
Caractéristiques Générales
- Chauffage
- Place parking
- Sans climatisation
- Année de construction 1957
Galerie
Lieu
Miraconcha Paseo de la Fe
