Évaluation sauvegardée !
Vous serrez le seul/la seule à le voir
Commentaire sauvegardé !
Ajoutez votre évaluation et/ou un commentaire pour cette annonce. Vous seul(e) le verrez
685.000 € Prévenez-moi si le prix baisse
a baissé 135.000 €

Mas avec chauffage parking dans Rupià

  • 342 m2
  • 4 hab.
  • 5 salles de bain
  • 2.003 €/m2

Gran casa rústica en venta en Rupià, Baix Empordà con bodega, patio y porche

VENTA DE CASA RÚSTICA REFORMADA EN RUPIÀ - BAIX EMPORDÀ, CON BODEGA, PATIO Y GARAJE. Ubicada en este encantador pueblo se encuentra esta espectacular casa rústica de 1900, completamente restaurada con un diseño que respeta su carácter original. Desde su fachada de piedra, se accede al cancel que da paso a una amplia entrada con impresionante chimenea a ras de suelo. A su lado, un salón luminoso con ventanas de medio arco y techos abovedados conecta con un lavabo y una generosa cocina-comedor, que a su vez tiene salida a un encantador patio con pozo y un porche. Desde este espacio, unas escaleras conducen al semi-sótano, donde encontramos una original bodega y dos acogedores espacios ideales para disfrutar de vinos y tapas.

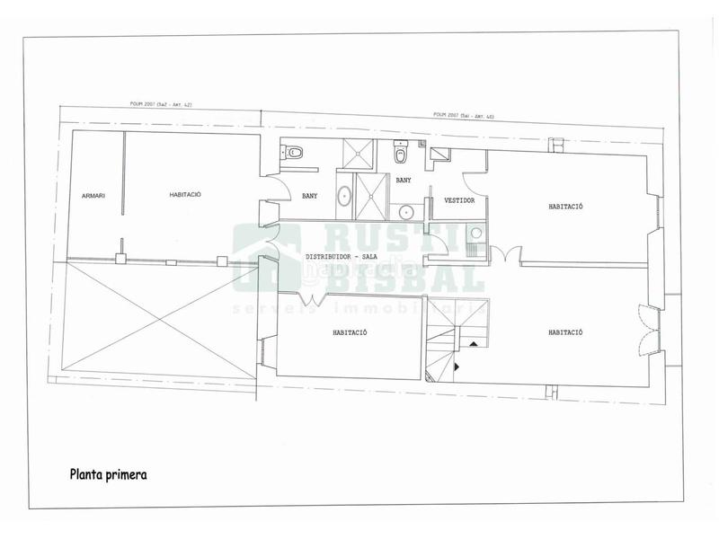
En la planta principal, un amplio distribuidor ideal como sala de estar da acceso a las habitaciones: una suite con inspiración árabe, vestidor y baño propio, una habitación individual, un baño adicional y otra suite con baño propio y un gran vestidor. La última planta es una zona polivalente con una gran sala, diáfana cocina comedor y una amplia suite con vestidor y baño privado. Todas las estancias de esta planta destacan por su generoso tamaño y la luz natural que inunda los espacios gracias a varias claraboyas.

Además, la propiedad cuenta con garaje situado en la calle posterior, calefacción central y aire acondicionado en algunas estancias. Los suelos de toba catalana, las paredes de piedra vista y los techos con vigas originales añaden un toque de autenticidad y encanto a esta preciosa casa, ideal para aquellos que buscan una vivienda con historia y todas las comodidades modernas en el corazón del Empordà.
¡No esperes más para descubrir todo lo que esta propiedad puede ofrecerte! Contáctanos y ven a visitarla.

dernière modification

Distribution

  • 4 Chambres
  • Surface 342 m2
  • Terrain 145 m2
  • 5 salles de bain

Caractéristiques Générales

  • Chauffage
  • Place parking
  • Climatisation
  • Année de construction 1900
  • Certificat énergétique :
    Consumo:
    D
    135 kW h m2 / año
    Emisiones:
    D
    31 kg CO2 m2 / año
Annonce: 1898002178549

Lieu

Naviguez sur la carte en cliquant dessus
685.000 € Prix de l´annonce
3.823 €/m2€/m2 comarca
2.003 €/m2€/m2 de l´annonce
48% moins cher que la moyenne*
Voir évolution €/m2 dans Rupià
Nous vous prévenons lorsque nous aurons une annonce comme celle-ci ? Créez votre alerte et nous vous préviendrons par courrier électronique dès qu´il y aura de nouvelles annonces ou lorsqu´elles seront modifiées
 

Contacter Rustic Bisbal

Référence de l´annonce habitaclia/000473:

Vous verrez le numéro de téléphone après que vous ayez envoyé vos coordonnées à l´annonceur pour qu´il puisse vous répondre.
Le numéro de téléphone s´affichera après avoir contacté
Envoi en cours…