Favorito y comentario
Mas dans Jesús Pobre Dénia
Caractéristiques principales
- 203 m2
- 4 hab.
- 1 salle de bain
- 1.552 €/m2
Informations détaillées
Casa de pueblo con licencia de obra y posibilidad de construir 3 alturas en venta en Jesús Pobre
Oportunidad única en el encantador pueblo de Jesús Pobre, a pocos minutos de las playas de Jávea y Dénia, del hospital de La Xara y del prestigioso Club de Golf La Sella. Ubicación tranquila, rodeada de naturaleza, con todos los servicios cerca.
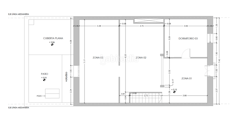
Esta vivienda de estilo tradicional conserva todo su encanto original y ofrece un gran potencial de reforma. Lo más destacado: ya cuenta con licencia de obra concedida y proyecto arquitectónico aprobado, lo que permite al nuevo propietario comenzar la reforma de inmediato. El proyecto incluye la posibilidad de construir hasta tres alturas, con una espectacular terraza en la azotea y vistas al campo y al Montgó.
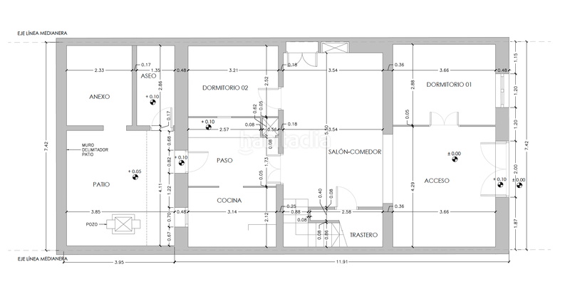
Actualmente, la casa se distribuye en dos plantas:
En planta baja: amplio recibidor, dormitorio principal, salón-comedor, otro dormitorio, cocina independiente, aseo exterior y un bonito patio interior de piedra con pozo tradicional y trastero con chimenea.En planta superior: espacio diáfano con techos abuhardillados y dos habitaciones muy luminosas.El proyecto aprobado propone una vivienda moderna y funcional con espacios abiertos, tres dormitorios con baños en suite, una suite principal en la tercera planta con acceso a terraza, y en la parte trasera, un jardín privado con espacio para piscina.
Una vivienda ideal para quienes buscan una casa con carácter y posibilidades, en una ubicación estratégica entre mar, montaña y golf.
dernière modification
Distribution
- 4 Chambres
- Surface 203 m2
- 1 salle de bain
- débarras
Caractéristiques Générales
- Sans place parking
- Sans climatisation
- Année de construction 1900
Galerie
Lieu
Jesús Pobre
