Favorito y comentario
Propriété dans Tueda Sant Feliu de Guíxols
Caractéristiques principales
- 9 m2
- 20.556 €/m2
Informations détaillées
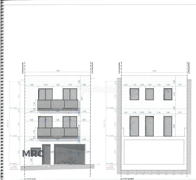
SOLAR EN EL CENTRO DE LA CIUDAD.SANT FELIU DE GUÍXOLS
Solar en el centro de Sant Feliu de Guíxols a la venta. Este solar está clasificado como suelo urbano consolidado y cualificado por el plan de ordenación urbanística municipal de Sant Feliu de Guíxols como subzona 6B (PB+2PP). La altura máxima permitida es de 9.90 metros y un habitáculo por cada 100m2. La superficie total de la parcela es de 334.68m2 (PB+2PP) y la superficie útil es de 268.07m2 (PB+2PP). En esta parcela se podría construir una planta baja con un garaje de 97.85m2 y hay la posibilidad de construir una habitación de 32.43m2. En la primera planta se puede construir una primera vivienda de 2 habitaciones dobles, 1 habitación individual y 1 baño completo, a parte de constar con un amplio balcón. En la segunda planta del edificio se podría construir otra vivienda de las misma dimensiones que la primera planta y la misma distribución.
dernière modification
Distribution
- Surface 9 m2
Galerie
Lieu
Tueda Bourg de Peage
