Évaluation sauvegardée !
Vous serrez le seul/la seule à le voir
Commentaire sauvegardé !
Ajoutez votre évaluation et/ou un commentaire pour cette annonce. Vous seul(e) le verrez
143.000 € Prévenez-moi si le prix baisse
a baissé 7.000 €

Propriété dans lugar perleta poligono 2 2113 dans Perleta - Maitino Elche / Elx

Lugar Perleta Poligono 2 2113

  • 15.133 m2
  • 9 €/m2

FANTASTICO TERRENO EDIFICABLE EN PERLETA (ZONA LAS LOMAS) DE 15.133m2, TU PROYECTO EMPIEZA AQUI !!!! - Ref. 8400D

¡Qué buena oportunidad! Este terreno en la partida de Perleta, en la hermosa ciudad de Elche, es realmente especial. Con sus 15.133 m² de terreno edificable, ofrece un espacio amplio y versátil, perfecto para construir ese chalet soñado en un entorno tranquilo y rodeado de vecinos durante todo el año. Además, su ubicación es inmejorable: a solo 5 minutos de Elche y a 10 minutos de las maravillosas playas de Arenales del Sol, lo que combina la vida urbana con el relax costero.

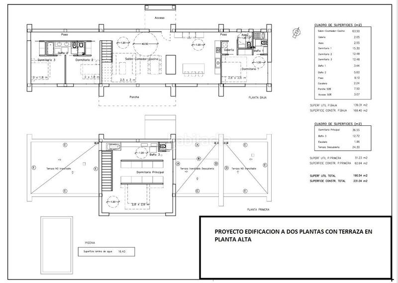
La finca cuenta con estudios y proyectos técnicos ya realizados, incluyendo un informe geotécnico y un proyecto de edificación, lo que facilita mucho el proceso de construcción. También dispone de agua potable a pie de finca, solo pendiente de la conexión, y los trámites de licencia de obra ya están en marcha en el ayuntamiento, lo que significa que está todo listo para comenzar a construir.

Es una oportunidad perfecta para quienes buscan un espacio amplio en una ubicación privilegiada, con todos los permisos y estudios en orden. ¡Una inversión que combina comodidad, naturaleza y cercanía a la ciudad y la playa!

EXTRAS:
15.133m2
Proyecto Vivienda Unifamiliar Aislada
Estudio Geotécnico
Estudio Topográfico
Prolongación de Red de Agua potable a pie de parcela
Solicitudes de Licencias de Obra y permisos Iniciados

* ESTA PUBLICACION CONTIENE FOTOGRAFIAS NO ORIGINALES, REALIZADAS MEDANTE PROGRAMA DE DISEÑO PARA UN POSIBLE PROYECTO DE VIVIENDA.

Agencia Registrada con el Nº 0815 en el Registro Obligatorio de Agentes Inmobiliarios de la Comunitat Valenciana. Puede consultar en la web de la GVA:

/es/registres-en-materia-habitatge

El precio no incluye lo siguiente: impuestos ( ITP) y otros gastos de la Compraventa (notaria, gestoría y registro). La oferta está sujeta a cambios de precio o retirada del mercado sin previo aviso. Este anuncio en su conjunto, incluyendo textos, fotos, imágenes o cualquier otro contenido del mismo, no es vinculante dado que la información es ofrecida por terceros y puede contener errores. Se muestra a título informativo y no contractual.

dernière modification

Distribution

  • Surface 15133 m2
Annonce: 33889000000834

Lieu

Perleta - Maitino Lugar Perleta Poligono 2 2113

Naviguez sur la carte en cliquant dessus
Nous vous prévenons lorsque nous aurons une annonce comme celle-ci ? Créez votre alerte et nous vous préviendrons par courrier électronique dès qu´il y aura de nouvelles annonces ou lorsqu´elles seront modifiées
 

Contacter VIVIENDA PLUS ELCHE

Référence de l´annonce habitaclia/8400D:

Vous verrez le numéro de téléphone après que vous ayez envoyé vos coordonnées à l´annonceur pour qu´il puisse vous répondre.
Le numéro de téléphone s´affichera après avoir contacté
Envoi en cours…