Évaluation sauvegardée !
Vous serrez le seul/la seule à le voir
Commentaire sauvegardé !
Ajoutez votre évaluation et/ou un commentaire pour cette annonce. Vous seul(e) le verrez

Terrain résidentiel dans Alaró

  • 17.400 m2
  • 44 €/m2

Terreno al lado de la estación de tren con licencia de obra y vistas a las montañas de Alaró

Este amplio terreno de 17.400 m2 ofrece una oportunidad exclusiva para desarrollar una propiedad a medida en una ubicación privilegiada. El terreno ofrece vistas impresionantes de las montañas gemelas cercanas y crea un ambiente tranquilo y natural.

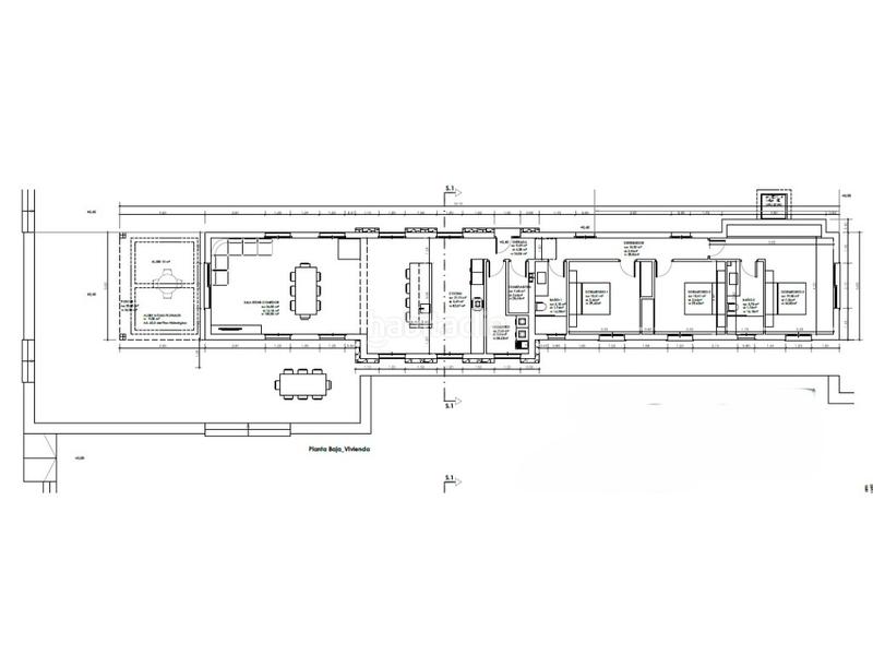
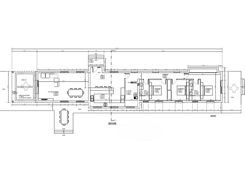
Una licencia de construcción ya ha sido concedida, lo que permite comenzar las obras de inmediato. Es posible construir una vivienda de aproximadamente 280 m2 con tres dormitorios, una piscina, un garaje que también puede servir como casa de invitados y un sótano parcial. Un permiso para un pozo propio también está en proceso.

El tamaño de la propiedad puede ser ampliado hasta un máximo de 500 m2. Gracias a la licencia existente y a los trabajos preparatorios, la construcción puede comenzar de inmediato para crear su hogar soñado en un entorno verdaderamente único.
#ref:6770

dernière modification

Distribution

  • Surface 17400 m2
Annonce: 46408000001741

Lieu

Naviguez sur la carte en cliquant dessus
Nous vous prévenons lorsque nous aurons une annonce comme celle-ci ? Créez votre alerte et nous vous préviendrons par courrier électronique dès qu´il y aura de nouvelles annonces ou lorsqu´elles seront modifiées
 

Contacter Living Blue Mallorca

Référence de l´annonce habitaclia/6770:

Vous verrez le numéro de téléphone après que vous ayez envoyé vos coordonnées à l´annonceur pour qu´il puisse vous répondre.
Le numéro de téléphone s´affichera après avoir contacté
Envoi en cours…