Évaluation sauvegardée !
Vous serrez le seul/la seule à le voir
Commentaire sauvegardé !
Ajoutez votre évaluation et/ou un commentaire pour cette annonce. Vous seul(e) le verrez
220.000 € Prévenez-moi si le prix baisse
a baissé 25.000 €

Terrain résidentiel dans port d´Alcúdia-platja dálcúdia Alcúdia

  • 326 m2
  • 675 €/m2

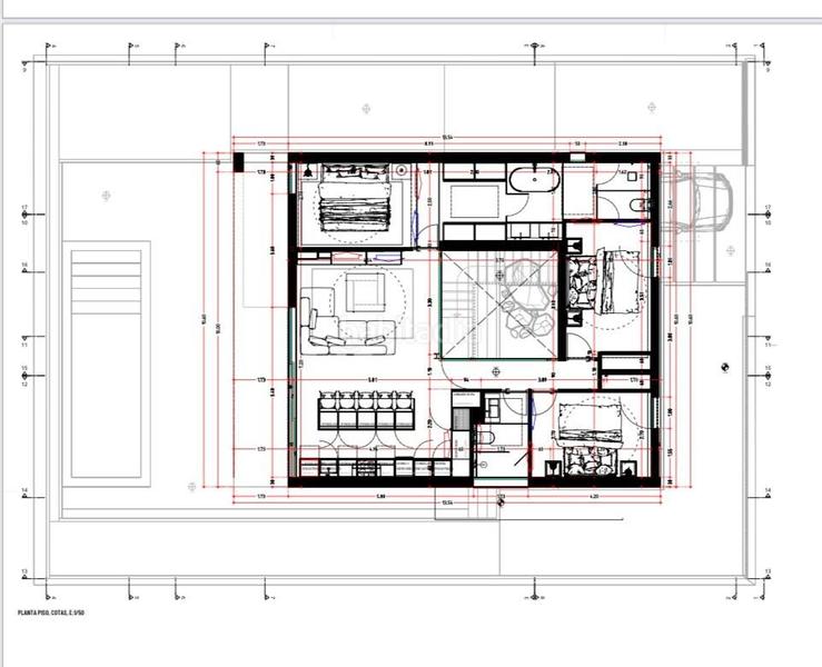
TERRENO CON PROYECTO CHALET Y PISCINA

Este exclusivo terreno, situado a escasos metros de la renombrada Playa de Alcúdia y Muro, se convierte en una oportunidad única para construir el chalet de tus sueños. Con un área total de 362 m2, cuenta con un proyecto diseñado que abarca 145 m2 construidos. El diseño incluye tres amplios dormitorios; uno ofrece baño en suite para mayor comodidad familiar. La vivienda incorpora una claraboya central que inunda todas las estancias con luz natural, creando ambientes cálidos y acogedores.

En la planta baja se encuentran espacios funcionales como un lavadero y aseo adicional; además del atractivo exterior donde destaca una hermosa piscina rodeada por terraza y porche ideal para disfrutar al aire libre. En la primera planta se aloja el corazón del hogar: comedor-cocina abierto junto a los tres cómodos dormitorios más otro baño completo.

Un proyecto pensado meticulosamente que promete convertirse en tu refugio perfecto cerca del mar mediterráneo.
PLOT WITH PROJECT FOR A CHALET AND POOL

This exclusive plot, located just a few meters from the renowned Alcudia and Muro beaches, offers a unique opportunity to build the villa of your dreams. With a total area of 362 m2, it features a designed project that encompasses 145 m2. The design includes three spacious bedrooms; one offers an en-suite bathroom for greater family comfort. The home incorporates a central skylight that floods all rooms with natural light, creating warm and welcoming atmospheres.
The ground floor features functional spaces such as a laundry room and an additional toilet; in addition to the attractive exterior, featuring a beautiful pool surrounded by a terrace and porch, ideal for enjoying the outdoors. The first floor houses the heart of the home: an open-plan kitchen-dining room next to the three comfortable bedrooms and another full bathroom.
A meticulously thought-out project that promises to become your perfect retreat near the Mediterranean Sea.

dernière modification

Distribution

  • Surface 326 m2
Annonce: 56735000000003

Lieu

Port d´Alcúdia-Platja dÁlcúdia Carrer Carrer de Río de Janeiro

Naviguez sur la carte en cliquant dessus
Nous vous prévenons lorsque nous aurons une annonce comme celle-ci ? Créez votre alerte et nous vous préviendrons par courrier électronique dès qu´il y aura de nouvelles annonces ou lorsqu´elles seront modifiées
 

Contacter Topay Inmobiliaria

Référence de l´annonce habitaclia/00031:

Vous verrez le numéro de téléphone après que vous ayez envoyé vos coordonnées à l´annonceur pour qu´il puisse vous répondre.
Le numéro de téléphone s´affichera après avoir contacté
Envoi en cours…