Favorito y comentario
Terrain résidentiel dans La Salut Badalona
Caractéristiques principales
- 65 m2
- 3.438 €/m2
Informations détaillées
Solar edificable en Badalona!!!
Loft Serveis Inmobiliaris presenta este excepcional solar edificable ubicado en Badalona.
Este solar se encuentra situado a solo 2 minutos a pie de la estación de metro La Salud, de la línea L10, lo que garantiza una excelente conectividad con Barcelona.
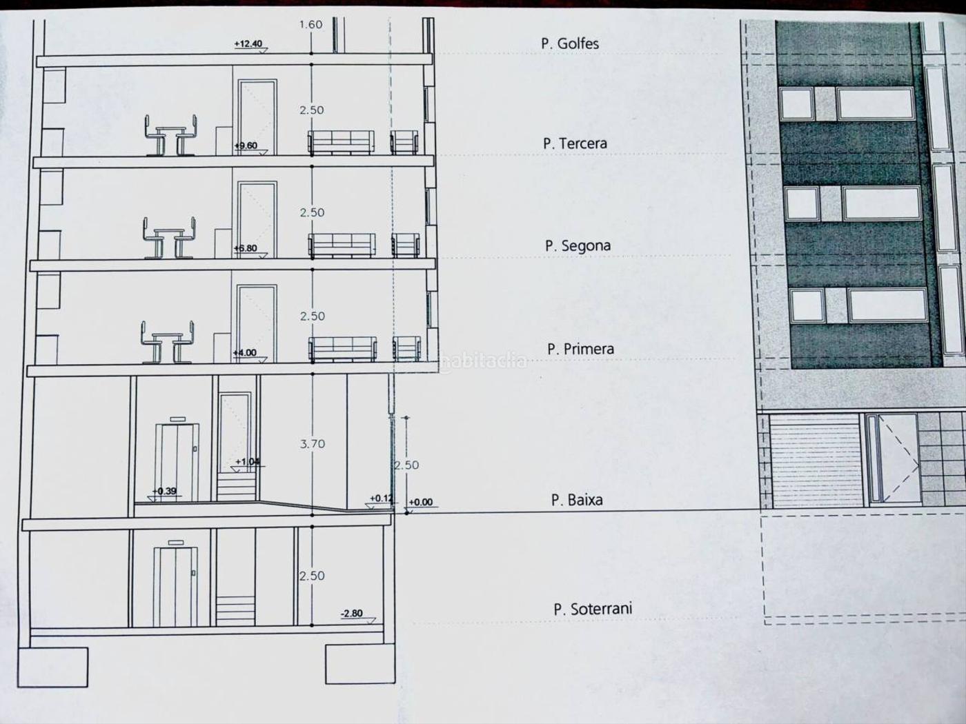
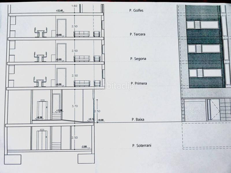
Lo más destacado de esta oportunidad es que ya cuenta con un proyecto de edificación de viviendas completamente desarrollado. Este proyecto ofrece la posibilidad de construir una estructura de varias plantas, incluyendo planta baja, planta primera, segunda, tercera y un sótano, lo que permite maximizar el potencial de desarrollo y satisfacer las necesidades de diversas tipologías de vivienda.
Además de su ubicación privilegiada y el proyecto de edificación existente, este solar ofrece una amplia gama de posibilidades para desarrollar un proyecto inmobiliario que se adapte a las demandas del mercado actual.
No pierda la oportunidad de invertir en este prometedor proyecto inmobiliario en Badalona. ¡Contáctenos hoy mismo para obtener más información y comenzar a dar forma a su próximo éxito en el sector inmobiliario!
dernière modification
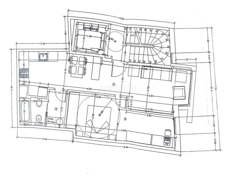
Distribution
- Surface 65 m2
Galerie
Lieu
La Salut
