Évaluation sauvegardée !
Vous serrez le seul/la seule à le voir
Commentaire sauvegardé !
Ajoutez votre évaluation et/ou un commentaire pour cette annonce. Vous seul(e) le verrez
179.550 € Prévenez-moi si le prix baisse
a baissé 10.450 €

Terrain résidentiel dans El Palo Málaga

  • 160 m2
  • 1.122 €/m2

ZONA CANDADO, SOLAR URBANO CON PROYECTO PARA 2 VIVIENDAS

ZONA CANDADO, SOLAR URBANO CON PROYECTO PARA 2 VIVIENDAS.

Situada a poca distancia andando del Paseo Marítimo del Palo. Zona residencial consolidada con todo tipo de servicios, colegios prestigiosos, autobuses públicos, zonas comerciales y fácil acceso a la autovía.

El solar tiene forma casi triangular, de 75,69 m² de planta, presentando dos fachadas al vial público con unas dimensiones de 9,56m a la Carretera principal Sur y 13,06m a Calle lateral Este. La parcela no tiene desnivel.

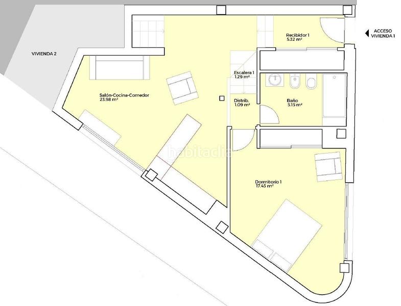
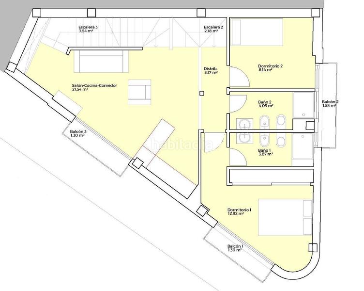
Se vende con proyecto para 2 viviendas con una superficie construida total de 157,52 m² sobre rasante y 75,69 m² bajo rasante, distribuidos:

• Vivienda 1: Planta Baja y Planta semisótano.
• Vivienda 2: Acceso por planta Baja, Planta Primera y Solarium de 64,75 m²

El solar TIENE LICENCIA DE OBRAS, por lo que está listo para el inicio de las obras.

>>>>>> En cumplimiento del Decreto de la Junta de Andalucía 218/2005 del 11 de Octubre, informamos que el IVA, AJD y gastos de Notaría y Registro regulados por arancel no están incluidos en el precio. Si están incluidos los honorarios profesionales de la Agencia. Contamos en nuestro equipo con Abogado (Colegiado 6208), Administrador de Fincas (Colegiado 2307) y Agente de la Propiedad Inmobiliaria (Colegiado 813) que le asesorará en todo el proceso de compra. We Speak English. On Parle FranÇais. [IW]

dernière modification

Distribution

  • Surface 160 m2
Annonce: 25331000000555

Lieu

El Palo DE OLIAS

Naviguez sur la carte en cliquant dessus
Nous vous prévenons lorsque nous aurons une annonce comme celle-ci ? Créez votre alerte et nous vous préviendrons par courrier électronique dès qu´il y aura de nouvelles annonces ou lorsqu´elles seront modifiées
 

Contacter Delparque inmobiliaria

Référence de l´annonce habitaclia/SOL0797:

Vous verrez le numéro de téléphone après que vous ayez envoyé vos coordonnées à l´annonceur pour qu´il puisse vous répondre.
Le numéro de téléphone s´affichera après avoir contacté
Envoi en cours…