Favorito y comentario
Terrain résidentiel dans Manacor centre Manacor
Caractéristiques principales
- 255 m2
- 4.204 €/m2
Informations détaillées
Terreno en Sa Vall Manacor de 27156m2 con proyecto de vivienda unifamiliar de 255m2 y piscina. Con Puro Estate
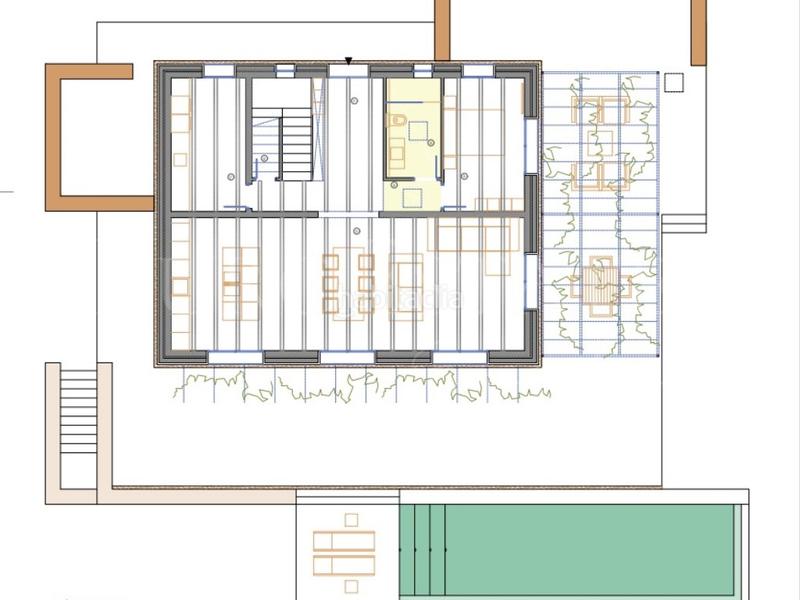
Precioso terreno urbanizable de 27156m2, en venta junto a un proyecto pendiente de ejecución, que incluye una vivienda unifamiliar de dos plantas con 255m2 construidos y piscina.
El terreno contiene una parte del proyecto ya construido en su primera fase con licencia de obra solicitada hace un año. La vivienda, comenzada siguiendo el proyecto, se distribuye en 2 plantas con 4 habitaciones, 3 baños y una gran terraza con porche que rodea la casa con espectaculares vistas y una gran piscina. El proyecto dispone de electricidad, cisterna y pozo de agua.
El proyecto preliminar aprobado consta de una preciosa vivienda mediante la siguiente distribución:
Planta baja de 133m2 que incluye recibidor ,distribuidor, trastero, Salón comedor y cocina, 1 habitación, 1 baño, lavandería, terraza y porche cubierto y la escalera de acceso a la planta.
Primera planta con 121m2 incluye distribuidor, 3 dormitorios dobles con balcón, 1 estudio, 2 baños, vestidor y su gran terraza superior con espectaculares vistas.
Los exteriores de la vivienda cuenta con su pozo de agua, aljibe, jardín y una preciosa piscina descubierta de 33m2 con su correspondiente zona subterránea para maquinaria.
El precio incluye el terreno vallado con muro de piedra, la edificación en su actual estado y el proyecto aprobado en el ayuntamiento y pendiente de ejecución.
La finca está situada en una loma elevada en la zona de Son Pere Andreu a unos 8 minutos de Manacor, en la privilegiada zona de Sa Vall, un lugar mágico debido a su micro-clima, su gran cantidad de agua, preciosas vistas y donde se encuentran varios de los hoteles rurales, restaurantes, y fincas más conocidas de Mallorca como Rotana y su conocido campo de golf Rotana greens.
Todo ello ofrece a este proyecto un atractivo muy especial gracias a sus magníficas vistas, tranquilidad y climatología.
Manacor, capital de la zona de Llevant de Mallorca, se encuentra a 10 minutos de Porto-Cristo y a 15 de otras maravillosas playas o calas, a 35 minutos del aeropuerto y cuenta con múltiples atractivos naturales, culturales y deportivos, como el Rafa Nadal Center/ Academy. Todo ello convierte a este terreno en el mejor lugar donde residir gracias a su gran demanda actual.
Más ofertas de propiedades en Puroestate.com
Hablamos inglés, español, alemán, sueco, catalán, francés entre otros idiomas, así que no dude en ponerse en contacto con nosotros para solicitarnos información.
#ref:MM-217
dernière modification
Distribution
- Surface 255 m2
Galerie
Lieu
Manacor Centre
