Évaluation sauvegardée !
Vous serrez le seul/la seule à le voir
Commentaire sauvegardé !
Ajoutez votre évaluation et/ou un commentaire pour cette annonce. Vous seul(e) le verrez

Terrain résidentiel dans Roda de Ter

General Carbó

  • 313 m2
  • 319 €/m2

Parcela en venta en Roda de Ter

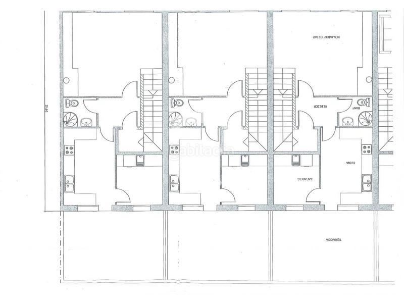
Parcela en Venta esquinera en Roda de Ter, con una superficie de 313 m2, donde se pueden construir cuatro casas adosadas, con una superficie total de construcción de 777,81 m2, Espacios para vivir.

Demander davantage de renseignements à l´annonceur

dernière modification

Distribution

  • Surface 313 m2
Annonce: 3874004398420

Lieu

General Carbó

Naviguez sur la carte en cliquant dessus
Nous vous prévenons lorsque nous aurons une annonce comme celle-ci ? Créez votre alerte et nous vous préviendrons par courrier électronique dès qu´il y aura de nouvelles annonces ou lorsqu´elles seront modifiées
 

Contacter IMMOACASA.CAT

Référence de l´annonce habitaclia/09340:

Vous verrez le numéro de téléphone après que vous ayez envoyé vos coordonnées à l´annonceur pour qu´il puisse vous répondre.
Le numéro de téléphone s´affichera après avoir contacté
Envoi en cours…