Évaluation sauvegardée !
Vous serrez le seul/la seule à le voir
Commentaire sauvegardé !
Ajoutez votre évaluation et/ou un commentaire pour cette annonce. Vous seul(e) le verrez

Terrain résidentiel dans Casablanca - Calvario Vigo

  • 510 m2
  • 882 €/m2

¡Invierte hoy en uno de los barrios con más vida y proyección de Vigo!
En Rúa Barrio Ribadavia, muy próximo al Mercadona de Pizarro, te presentamos este solar urbano consolidado con todo listo para comenzar a construir.
Detalles clave:
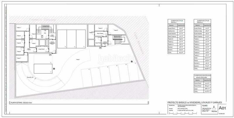
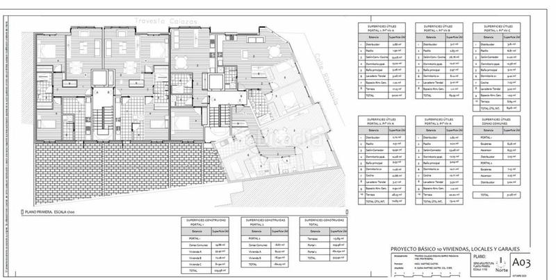
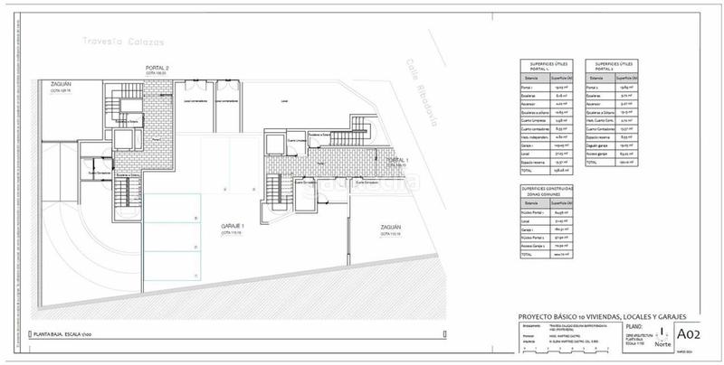
Uso residencial
Edificabilidad sobre rasante: 1.728 m² construibles
Proyecto Básico de Ejecución aprobado y Licencia concedida
Distribución prevista:
10 viviendas (5 de ellas en formato dúplex)
1 local comercial en planta baja
16 plazas de garaje
10 trasteros
¿Por qué esta ubicación?
Ubicado en el barrio del Calvario, una de las zonas con más carácter, servicios y movimiento comercial de Vigo, con excelentes conexiones y alta demanda residencial. Rodeado de todo lo que tus futuros compradores o inquilinos buscan: comercios, colegios, transporte público y una vida de barrio vibrante.

¿Quieres más detalles o una visita a pie de parcela? ¡Estamos a tu disposición! Haz realidad tu próxima promoción sin esperas ni incertidumbres.

¡No lo puedes dejar escapar! Sí lo que quieres es información no dudes en ponerte en contacto con nosotros a través de nuestra página web o también puedes visitarnos en nuestras oficinas ubicadas en Avda de Buenos Aires 58 Bajo esquina (Ourense) y en avenida García Barbón nº 97 entreplanta 9 Vigo (Pontevedra).
Si prefieres llamanos al (Ourense) o (Vigo) estaremos encantados de atenderle.
En inmobiliaria FLY también podemos hacerle un presupuesto de lo que costaría su reforma y darle asesoramiento desde el principio hasta el final. Contamos también con un equipo de abogado, asesores financieros, tasación, arquitectos y asesores comerciales altamente cualificado. INMOBILIARIA FLY DESDE EL PRINCIPIO HASTA EL FINAL A SU LADO. '' SI LO PUEDES SOÑAR, LO PUEDES LOGRAR''. Esta información es solo orientativa del inmueble.

dernière modification

Distribution

  • Surface 510 m2
Annonce: 33634000003114

Lieu

Casablanca - Calvario Rúa do Barrio Ribadavia

Naviguez sur la carte en cliquant dessus
Nous vous prévenons lorsque nous aurons une annonce comme celle-ci ? Créez votre alerte et nous vous préviendrons par courrier électronique dès qu´il y aura de nouvelles annonces ou lorsqu´elles seront modifiées
 

Contacter INMOBILIARIA FLY

Référence de l´annonce habitaclia/S002294:

Vous verrez le numéro de téléphone après que vous ayez envoyé vos coordonnées à l´annonceur pour qu´il puisse vous répondre.
Le numéro de téléphone s´affichera après avoir contacté
Envoi en cours…