Favorito y comentario
Terrain résidentiel dans calle de escateret 10 dans Vinaròs
Caractéristiques principales
- 4.560 m2
- 123 €/m2
Informations détaillées
VINAROZ Solar edificable para 10 chalets pareados con parking construido cerca del mar
A menudo dedicamos nuestros esfuerzos a hacer realidad los sueños de los demás. Nos limitamos a aceptar lo que se nos viene dado, por mera comodidad, renunciando así a lo que realmente complace nuestras necesidades.
Tomar la decisión de emprender un proyecto propio es arriesgado, ¡pero a la vez extremadamente gratificante! Y aún más partiendo de una base con magníficas características que garantizan alcanzar tus sueños más ambiciosos.
Un claro ejemplo es el solar urbanizado que ofrecemos a la venta: una fantástica oportunidad donde inversores, promotores y constructores pueden llevar a cabo su propio proyecto edificatorio, contando con varias ventajas y una localización privilegiada.
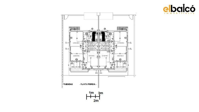
El espacio edificable en cuestión, con capacidad para 10 chalets pareados, cuenta con las zonas comunitarias ya construidas, como son el pavimento exterior que hace la función de distribuidor y acceso a los diversos hogares así como un extenso parking subterráneo con garajes privados. Despreocúpate de la excavadora, ¡porque aquí sólo se ha de construir del suelo hacia arriba!
Visto que las ventajas de las que te hablábamos han quedado más que demostradas, ahora es hora de sorprenderte con su espléndida ubicación. Y es que la zona no sólo destaca por su tranquilidad y ambiente agradable y residencial, ¡sino que el entorno no deja nada que desear!
A tocar de extensiones rurales y campos de cultivo, y entre una gran afluencia de vegetación, llegamos a la Playa del Triador o la Cala del Pinar con menos de 10 minutos andando. ¡Y es que son sólo 100 metros los que separan el solar del mar! Mientras tanto, todos los servicios y lugares de interés que te puedas imaginar los encontrarás en el núcleo de Vinaroz, a sólo 5 kilómetros de distancia.Deja de dedicar tus esfuerzos a alcanzar los sueños ajenos: ¡es hora de hacer realidad los tuyos! Si eres un inversor, promotor o constructor, aprovecha esta oportunidad única y haz que tu proyecto edificatorio se convierta en el hogar de diez familias con todas las comodidades. ¡Contáctanos!
dernière modification
Distribution
- Surface 4560 m2
Galerie
Lieu
Costa Norte Calle de Escateret 10
