Évaluation sauvegardée !
Vous serrez le seul/la seule à le voir
Commentaire sauvegardé !
Ajoutez votre évaluation et/ou un commentaire pour cette annonce. Vous seul(e) le verrez

Terrain résidentiel dans carretera carretera de la playa 19 dans Almuñécar

  • 2.644 m2
  • 488 €/m2

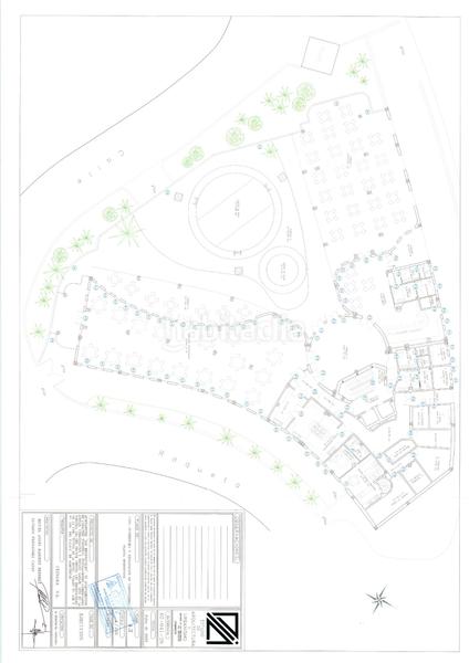
PROYECTO DE 32 APARTAMENTOS TURÍSTICOS EN MARINA DEL ESTE

Presentamos un magnifico proyecto de 32 apartamentos turísticos, 48 plazas de garaje, 15 trasteros y piscinas, zonas comunes y zona de servicios. Está distribuido en 5 plantas con vistas al mar, fácil acceso y está ubicado en el término de Almuñécar en Urb. Marina del Este de Granada.
Tiene licencia de obras pagada, proyecto básico y de ejecución, rebaje y parte de cimentación, declaración de obra nueva en construcción y división horizontal.

¡Invierte en la zona premium de la costa!

"El PVP indicado no incluye impuestos ni gastos de escritura. Honorarios de agencia no incluidos". "Las superficies expresadas en esta página tiene carácter descriptivo y son aproximadas. Los precios puedes ser susceptibles de modificación sin previo aviso." Ref. 14490

dernière modification

Distribution

  • Surface 2644 m2
Annonce: 22593000018459

Lieu

La Herradura Carretera CARRETERA DE LA PLAYA 19

Naviguez sur la carte en cliquant dessus
Nous vous prévenons lorsque nous aurons une annonce comme celle-ci ? Créez votre alerte et nous vous préviendrons par courrier électronique dès qu´il y aura de nouvelles annonces ou lorsqu´elles seront modifiées
 

Contacter GRUPO TORRES

Référence de l´annonce habitaclia/14490 :

Vous verrez le numéro de téléphone après que vous ayez envoyé vos coordonnées à l´annonceur pour qu´il puisse vous répondre.
Le numéro de téléphone s´affichera après avoir contacté
Envoi en cours…