Favorito y comentario
Location bâtiment à usage industriel dans Sant Andreu de Palomar Barcelona
Caractéristiques principales
- 3.180 m2
- 5 salles de bain
- 9,43 €/m2
Informations détaillées
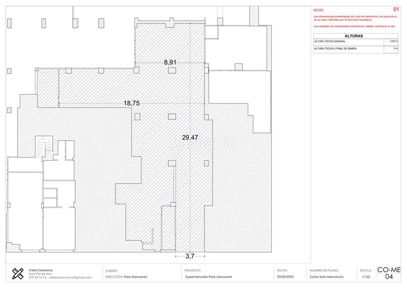
Se Alquila Local Comercial en La Sagrera Ideal para Supermercado de Gran Superficie
Te gustará saber:
· Local comercial en alquiler en Sant Andreu, Barcelona, con una gran superficie y amplia fachada.
· Situado a pie de calle, muy cerca de la futura estación del AVE de La Sagrera y del futuro parque lineal.
· Cuenta con una superficie diáfana de 3180 m², una fachada de 49 metros lineales y una altura de más de 6 metros.
· Ha sido adaptado para funcionar como un supermercado de gran superficie, lo que lo convierte en una opción ideal para empresas del sector.
· Sala para abastecimiento de mercancías, almacenamiento y bodega de productos.
· Entrada y salida para vehículo de carga y descarga con rampa de acceso.
· Sala para adaptar cámaras de frío.
· Área para empleados con baños (hombres y mujeres).
· Superficie diáfana para la venta de productos.
· Sala de climatización.
· Sala donde están ubicados los paneles eléctricos.
· En el altillo hay dos despachos con baños.
Es especial por:
· Situado en un barrio en constante crecimiento y transformación.
· Cuenta con buenas conexiones de transporte público, incluyendo metro y autobuses.
· La cercanía a colegios, oficinas y residencias asegura un flujo constante de clientes a lo largo del día.
· La zona está experimentando cambios significativos gracias a estación de Barcelona-Sagrera, que dará servicio a los trenes de alta velocidad (AVE).
Condiciones:
· Fianza de 2 meses + garantía adicional a valorar por la propiedad según solvencia económica demostrada.
· Disponible a partir del 1 de junio.
· Contrato de 10 años o como convengan las partes.
· Honorarios: Un mes + 21 % de IVA.
· Al precio del alquiler se le habrá de incrementar el 21 % de IVA menos 19 % de IRPF.
dernière modification
Distribution
- Surface 3180 m2
Caractéristiques Générales
- Année de construction 1970
Galerie
Lieu
Sant Andreu de Palomar Pare Manyanet
