Évaluation sauvegardée !
Vous serrez le seul/la seule à le voir
Commentaire sauvegardé !
Ajoutez votre évaluation et/ou un commentaire pour cette annonce. Vous seul(e) le verrez

Location bâtiment à usage industriel dans Sant Josep Hospitalet de Llobregat (L´)

  • 420 m2
  • 7,00 €/m2

Local con mucha luz en planta semiindustrial

Local de 420 m2 situado en la 4ª planta de un edificio semi-industrial en alquiler en L'Hospitalet. En el polígono industrial de la Carretera del Mig.
El local se encuentra en perfecto estado.
Posibles usos: oficinas, taller, laboratorio, almacén.
Su última actividad fue un laboratorio, por lo que se podrían aprovechar las instalaciones o dejarlo vacío.
Carpintería de aluminio con doble vidrio y baños nuevos.
Local con mucha luz natural.
Pavimento de terrazo.
Climatización.
Servicios dados de alta.
Potencia eléctrica 15 kW.
Altura de techos: 2,95 m
Resistencia del forjado: 1.000 kg/m2.
2 aseos completos, uno de ellos adaptado.
Instalación de una boca de incendio y extintores.
1 ascensor y 2 montacargas de 1.000 y 2.000 Kg respectivamente.
Muelle de carga para dos camiones con acceso directo a los montacargas.
Entrada al local por puerta de 3 x 2 m.
Edificio muy bien comunicado, estando muy cerca a la Gran Vía y a la Ronda de Dalt y del Litoral.
Las estaciones de metro de Bellvitge y Avinguda del Carrilet se encuentran a 10 minutos andando.

English

420 m2 premises on the 4th floor of a semi-industrial building for rent in L'Hospitalet, in the Carretera del Mig industrial estate.
The premises are in perfect condition.
Aluminum carpentry with double glazing and new bathrooms.
Its last activity was a laboratory, so the facilities could be used or left empty.
Possible uses: offices, workshop, laboratory, warehouse.
Premises with lots of natural light.
Terrazzo flooring.
Complete electrical installation 10 kW.
Height: 2.95 m
Forging resistance: 1,000 kg/m2.
2 complete toilets.
Installation of a fire hydrant and fire extinguishers.
1 elevator and 2 forklifts of 1,000 and 2,000 kg respectively.
Loading dock for two trucks with direct access to the forklifts.
Entrance to the premises through a 3 x 2 m door.
The building is very well connected, being very close to Gran Via and Ronda de Dalt and the Litoral.
The metro stations of Bellvitge and Avinguda del Carrilet are a 10-minute walk away.

Français

Local de 420 m2 au 4ème étage d'un immeuble semi-industriel à louer à L'Hospitalet, dans la zone industrielle Carretera del Mig.
Les locaux sont en parfait état.
Menuiserie en aluminium avec double vitrage et salles de bains neuves.
Sa dernière activité était un laboratoire, les installations pouvaient donc être utilisées ou laissées vides.
Utilisations possibles : bureaux, atelier, laboratoire, entrepôt.
Local avec beaucoup de lumière naturelle.
Revêtement de sol en terrazzo.
Installation électrique complète 10 kW.
Hauteur : 2,95 m
Résistance au forgeage : 1 000 kg/m2.
2 salles de bain complètes.
Installation d'une borne d'incendie et d'extincteurs.
1 ascenseur et 2 monte-charges de respectivement 1 000 et 2 000 kg.
Quai de chargement pour deux camions avec accès direct aux chariots élévateurs.
Entrée dans les lieux par une porte de 3 x 2 m.
Bâtiment très bien relié, très proche de la Gran Via et de la Ronda de Dalt et du Litoral.
Les stations de métro Bellvitge et Avinguda del Carrilet se trouvent à 10 minutes à pied.

dernière modification

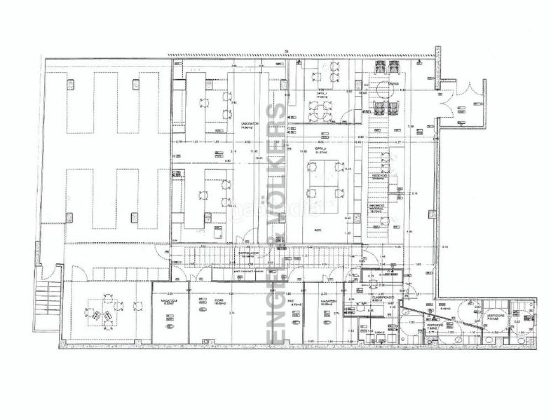
Distribution

  • Surface 420 m2
Annonce: 1772002714254

Lieu

Sant Josep

Naviguez sur la carte en cliquant dessus
Nous vous prévenons lorsque nous aurons une annonce comme celle-ci ? Créez votre alerte et nous vous préviendrons par courrier électronique dès qu´il y aura de nouvelles annonces ou lorsqu´elles seront modifiées
 

Contacter ENGEL & VÖLKERS

Référence de l´annonce habitaclia/BCN-IND-014774:

Vous verrez le numéro de téléphone après que vous ayez envoyé vos coordonnées à l´annonceur pour qu´il puisse vous répondre.
Le numéro de téléphone s´affichera après avoir contacté
Envoi en cours…