Évaluation sauvegardée !
Vous serrez le seul/la seule à le voir
Commentaire sauvegardé !
Ajoutez votre évaluation et/ou un commentaire pour cette annonce. Vous seul(e) le verrez

Location bureau dans Sagrada Família Barcelona

  • 121 m2
  • 40,50 €/m2

Espacio corporativo único con piscina y vistas Listo para entrar

Espacio premium con terraza y piscina privada para sede corporativa única en el corazón de Barcelona. Cerca de la Sagrada Familia, en una calle tranquila.
La renta incluye mobiliario, adaptacion del espacio, look and feel de la empresa y ajustes tecnicos necesarios.
Espectacular espacio de trabajo para empresas que valoran el diseño, la comodidad, la flexibilidad y la inspiración. Ubicado a pocos pasos de la Sagrada
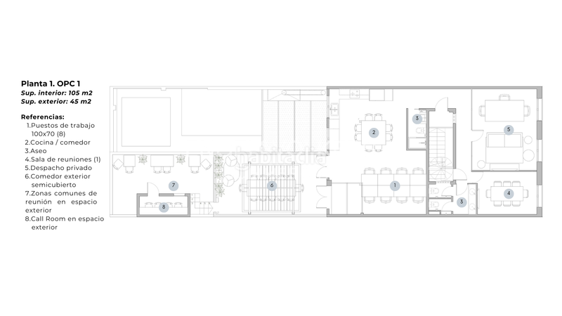
Distribución: 1 sala de reuniones + 1 despacho privado + open space. hasta 20 puestos de trabajo. Diferentes configuraciones posibles
Zonas colaborativas y exteriores para reuniones informales. Call room exterior
Doble terraza con comedor exterior semicubierto.
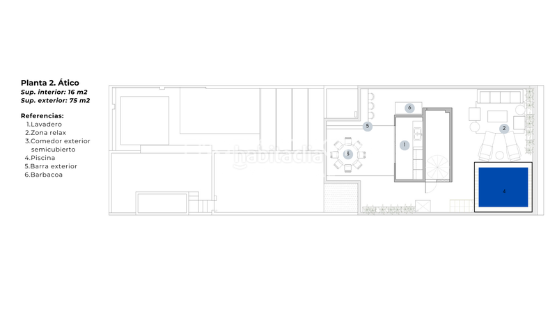
Ático exclusivo con zona social: 16 m² interiores + 75 m² exteriores. Piscina privada. Zona relax y comedor al aire libre. Barra exterior y barbacoa
Metro L2 y L5 – "Sagrada Familia". Varios autobuses, Aparcamientos de bicicletas
Flexibilidad contractual y previsibilidad de costes. Imagen corporativa sólida y moderna.
Superficie total: 121 m² interiores + 120 m² exteriores
Renta: 4.900€ + IVA.
Servicios a parte (mantenimiento, limpieza, suministros).

ENG
Premium space with a terrace and private pool for a unique corporate headquarters in the heart of Barcelona. Near the Sagrada Familia, on a quiet street.
The rental includes furniture, space adaptation, company look and feel, and necessary technical adjustments.
Spectacular workspace for companies that value design, comfort, flexibility, and inspiration. Located just steps from the Sagrada Familia.
Layout: 1 meeting room + 1 private office + open space. Up to 20 workstations. Various configurations possible.
Collaborative and outdoor areas for informal meetings. Outdoor call room.
Double terrace with semi-covered outdoor dining area.
Exclusive penthouse with social area: 16 m² indoor + 75 m² outdoor. Private pool. Relaxation and outdoor dining area. Outdoor bar and barbecue.
Quiet and accessible street.
Metro Lines 2 and 5 – "Sagrada Familia". Several buses. Bicycle parking.
Contractual flexibility and cost predictability. Solid and modern corporate image.
Total area: 121 m² interior + 120 m² exterior
Rent: €4,900 + VAT. I
Services not included (maintenance, cleaning, supplies).
CATALÀ
Espai premium amb terrassa i piscina privada per a seu corporativa única al cor de Barcelona.
La renda inclou mobiliari, adaptacio de l'espai, look and feel de l'empresa i ajustaments tecnics necessaris. A prop de la Sagrada Família, en un carrer tranquil.
Espectacular espai de treball per a empreses que valoren el disseny, la comoditat, la flexibilitat i la inspiració. Ubicat a poca distància de la Sagrada
Distribució: 1 sala de reunions + 1 despatx privat + open space. fins a 20 llocs de treball. Diferents configuracions possibles
Zones col·laboratives i exteriors per a reunions informals. Call room exterior
Doble terrassa amb menjador exterior semicobert.
Àtic exclusiu amb zona social: 16m ² interiors + 75m ² exteriors. Piscina privada. Zona relax i menjador exterior. Barra exterior i barbacoa
Carrer tranquil i accessible
Metre L2 i L5 – "Sagrada Família". Diversos autobusos, Aparcaments de bicicletes
Flexibilitat contractual i previsibilitat de costos. Imatge corporativa sòlida i moderna.
Superfície total: 121m² interiors + 120m² exteriors
Renda: 4.900€ + IVA. Inclou
Serveis a banda (manteniment, neteja, subministraments).

dernière modification

Distribution

  • Surface 121 m2

Caractéristiques Générales

  • meublé
  • Climatisation
  • Année de construction 1974
  • Certificat énergétique :
    Consumo:
    G
    362 kW h m2 / año
    Emisiones:
    G
    76 kg CO2 m2 / año
Annonce: 1772002714607

Lieu

Sagrada Família

Naviguez sur la carte en cliquant dessus
Nous vous prévenons lorsque nous aurons une annonce comme celle-ci ? Créez votre alerte et nous vous préviendrons par courrier électronique dès qu´il y aura de nouvelles annonces ou lorsqu´elles seront modifiées
 

Contacter ENGEL & VÖLKERS

Référence de l´annonce habitaclia/BCN-OS-015453:

Vous verrez le numéro de téléphone après que vous ayez envoyé vos coordonnées à l´annonceur pour qu´il puisse vous répondre.
Le numéro de téléphone s´affichera après avoir contacté
Envoi en cours…