Favorito y comentario
Location bureau avec chauffage dans Dreta de l´Eixample Barcelona
Caractéristiques principales
- 228 m2
- 12,04 €/m2
Informations détaillées
Oficina en chaflán soleado de Gran Via de les Corts Catalanes
En Eixample- El Fort Pienc, Oficina, Showroom de 200m2 distribuidos en 6 amplias salas, con techos altos de 4 metros y con 5 balcones a la esquina de Gran Via de les Corts Catalanes con Roger de Flor.
Se trata de un edificio mixto de orientación sureste, con ascensores, acceso adaptado, servicio de conserjería y fibra óptica.
El espacio tiene 200 m² útiles y se distribuye en 3-4 amplias salas con 5 balcones a Gran Via y otras 3 salas También dispone de 2 baños y 2 aseos y de espacio office con mobiliario sin electrodomésticos.
Las características esenciales de la propiedad son que es exterior a chaflán con la mejor orientación soleada sureste de Barcelona, con 5 balcones a Gran Via y casi 200m2 útiles.
Sus altos techos, la calefacción de época de gas por radiadores XL, los balcones y la ubicación en el corazón del Eixample-El Fort Pienc, hacen que esta propiedad tenga carácter y representación.
Se trata del emplazamiento perfecto para cualquier profesional o empresa en el centro del Eixample- El Fort Pienc.
Operación: Alquiler de Oficina-Estudio.
Precio: 12,02€/m2 x 228 m2 2.744€/mes de Renta + Gastos comunes: 2€ m² / mes. 456€ Total: 3.200€/mes (14,04€/m2)
Fianza: 2 mensualidades y garantías adicionales a negociar.
Disponibilidad: inmediata.
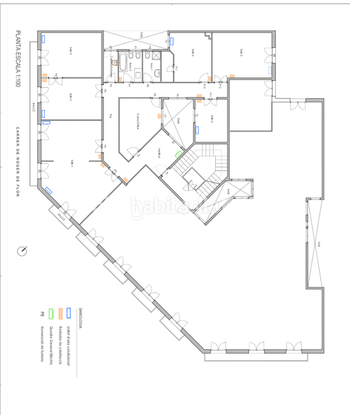
Plano: Disponible.
Información adicional: previa petición.
Engel & Völkers Commercial Barcelona comercializa este inmueble. Nota: La oferta se sujeta a errores, cambios de precio, omisión y/o retirada del mercado sin aviso previo. Los Honorarios de la Agencia a cargo arrendatario consultar.
** English:
In Eixample-El Fort Pienc, Office, Showroom, Stately Home, 200m² distributed across 6 spacious rooms, with 4-meter high ceilings and 5 balconies on the corner of Gran Via de les Corts Catalanes and Roger de Flor.
This is a southeast-facing mixed-use building with elevators, accessible access, concierge service, and fiber optics.
The space has 200m² usable area and is distributed across 3-4 spacious rooms with 5 balconies overlooking Gran Via and 3 other rooms. It also has 2 bathrooms and 2 toilets, and a furnished office space without appliances.
The key features of the property are its exterior, corner-shaped layout, with the best sunny southeast orientation in Barcelona, ??with 5 balconies overlooking Gran Via and almost 176m² usable area.
Its high ceilings, period gas heating with XL radiators, balconies, and location in the heart of Eixample-El Fort Pienc give this property character and presence.
This is the perfect location for any professional or business in the center of Eixample-El Fort Pienc.
Operation: Office-Studio Rental.
Price: €12.02/m2 x 228 m2 €2,744/month Rent + Utility Expenses: €2 m²/month. €456 Total: €3,200/month (€14.04/m2)
Deposit: 2 monthly installments and additional guarantees to be negotiated.
Availability: Immediate.
Floor Plan: Available.
Additional information: Upon request.
Engel&Völkers Commercial Barcelona is marketing this property. Note: This offer is subject to errors, price changes, omissions, and/or withdrawal from the market without prior notice. Please consult the Agency Fees charged to the tenant.
+++ Català
A Eixample-El Fort Pienc, Oficina, Showroom, Habitatge senyorial, de 200m2 distribuïts en 6 àmplies sales, amb sostres alts de 4 metres i amb 5 balcons a la cantonada de Gran Via de les Corts Catalanes amb Roger de Flor.
Es tracta d´un edifici mixt d´orientació sud-est, amb ascensors, accés adaptat, servei de consergeria i fibra òptica.
L'espai té 200 m² útils i es distribueix en 3-4 àmplies sales amb 5 balcons a Gran Via i 3 sales més. També disposa de 2 banys i 2 lavabos i d'espai office amb mobiliari sense electrodomèstics.
Les característiques essencials de la propietat són que és exterior a xamfrà amb la millor orientació assolellada sud-est de Barcelona, ??amb 5 balcons a Gran Via i gairebé 176m2 útils.
Els seus sostres alts, la calefacció d'època de gas per radiadors XL, els balcons i la ubicació al cor de l'Eixample-El Fort Pienc, fan que aquesta propietat tingui caràcter i representació.
Es tracta de l'emplaçament perfecte per a qualsevol professional o empresa al centre de l'Eixample-El Fort Pienc.
Operació: Lloguer d'Oficina-Estudi.
Preu: 12,02€/m2 x 228 m2 2.744€/mes de Renda + Despeses comunes: 2€ m²/mes. 456€ Total: 3.200€/mes (14,04€/m2)
Fiança: 2 mensualitats i garanties addicionals a negociar.
Disponibilitat: immediata.
Plànol: Disponible.
Informació addicional: prèvia petició.
Engel&Völkers Commercial Barcelona comercialitza aquest immoble. Nota: L'oferta se subjecta a errors, canvis de preu, omissió i/o retirada del mercat sense previ avís. Els Honoraris de l'Agència a càrrec llogater consultar.
dernière modification
Distribution
- Surface 228 m2
Caractéristiques Générales
- Chauffage
- Climatisation
- Année de construction 1925
Équipement communautaire
- Ascenseur
Galerie
Lieu
Dreta de l´Eixample
