Favorito y comentario
Location bureau dans Dreta de l´Eixample Barcelona
Caractéristiques principales
- 445 m2
- 22,00 €/m2
Informations détaillées
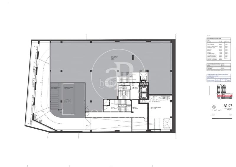
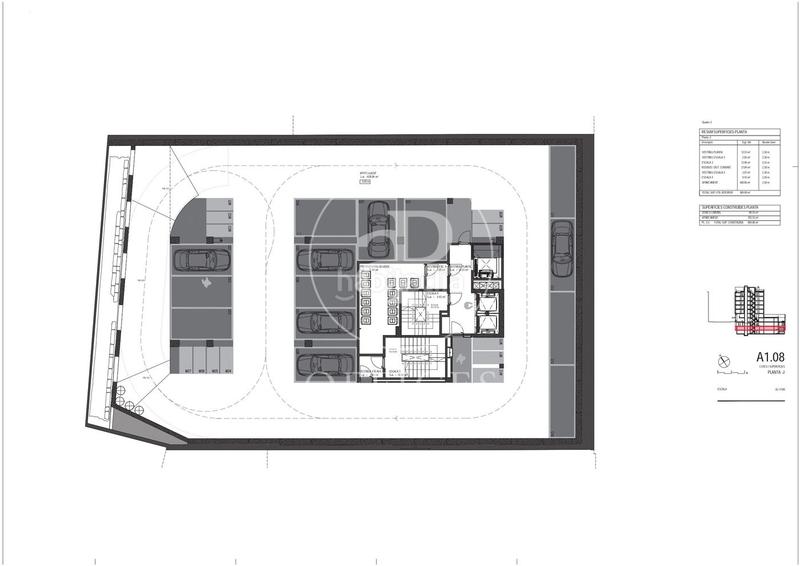
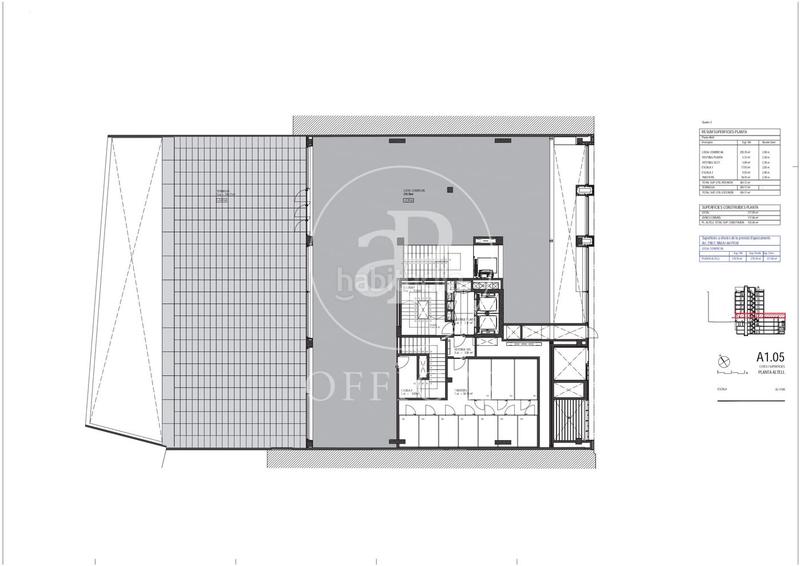
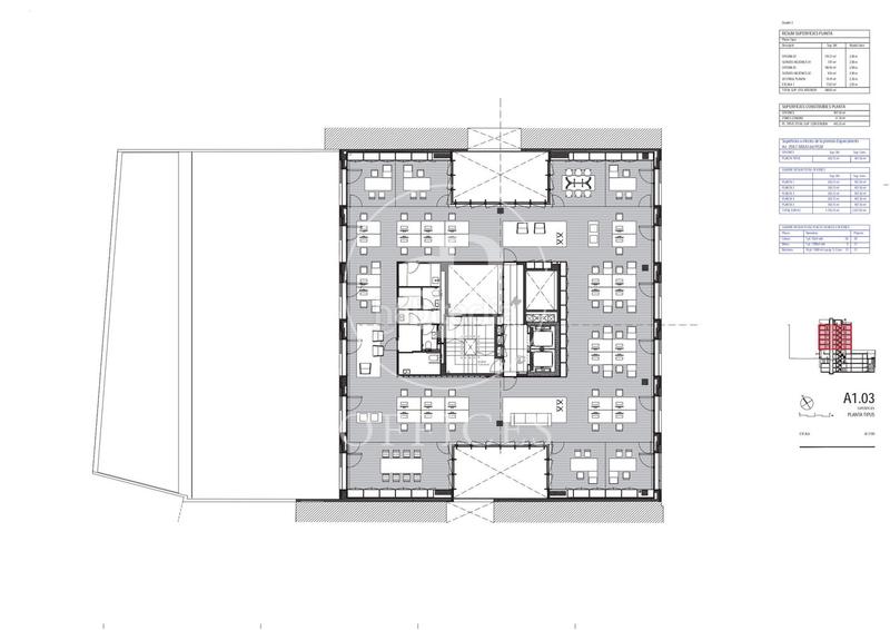
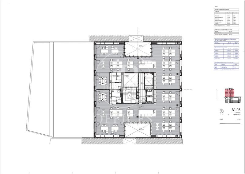
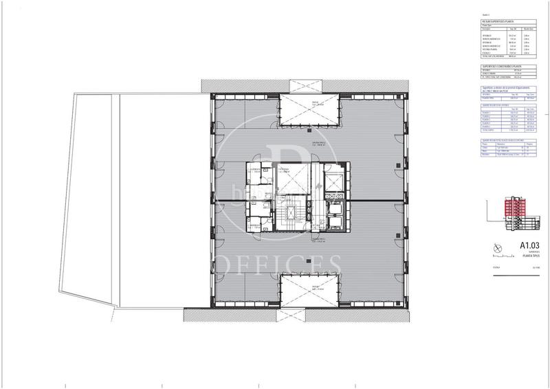
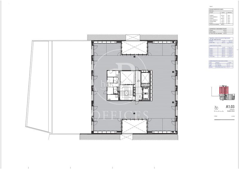
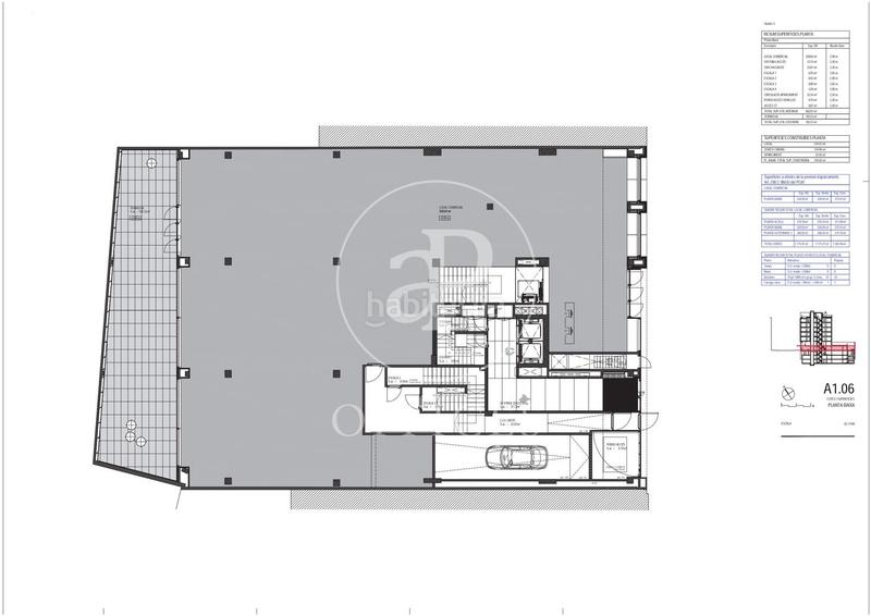
Oficinas en alquiler junto a Plaza Catalunya
EDIFICIO EXCLUSIVO DE NUEVA CONSTRUCCIÓN
Edificio exclusivo de oficinas en construcción. Dispone de 4 plantas de oficinas + local en planta baja destinado aRetail.
Se compone de plantas diáfanas muy luminosas con núcleo de aseos en el interior.
La reforma se está llevando a cabo con materiales y acabados de calidad, dotando a sus usuarios de gran imagen corporativa.
Situado a pocos metros de Plaza Catalunya, uno de los epicentros comerciales y de negocios de la ciudad, ofrece todo tipo de servicios alrededor y buenas comunicaciones por transporte público.
Metro: L1, L3, L6 (Plaça de Catalunya). Bus:
No dude en contactarnos para ampliar información y organizar una visita.
* En cumplimiento de la Ley 12/2023 y la Llei 18/2007 informamos que:
Ref. AOB
dernière modification
Distribution
- Surface 445 m2
Caractéristiques Générales
- Sans place parking
- Sans climatisation
Équipement communautaire
- Sans ascenseur
Galerie
Lieu
Dreta de l´Eixample C/ de Fontanella
